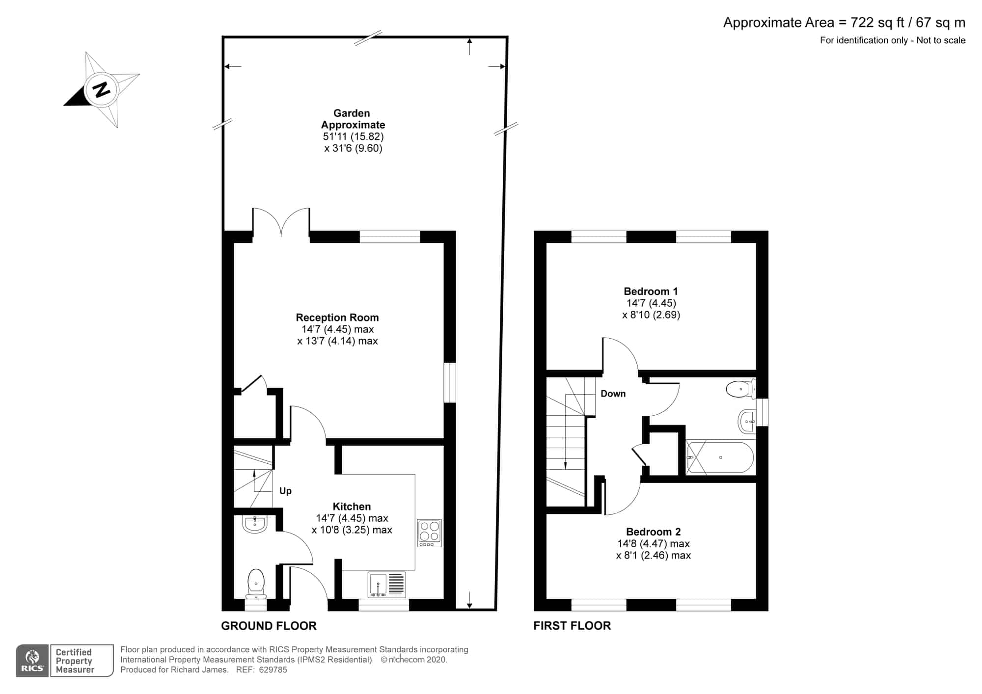
14 Cosway Court

Plot 13, is a two bedroom semi-detached home with off street parking. Arranged over approx. 719 sq ft of living space, the plot offers a modern kitchen to the front, an open living room with double doors leading to the garden and a separate W/C. Upstairs, there are two generous bedrooms with a family bathroom.

2 Bedrooms

1 Bathrooms

719 SQ/FT

Off Street Parking

Floorplans

£220,000

Sold STC

Interested? Contact us today

Compare listings

Compare

Book a valuation with us

Please fill in the simple form and we will contact you to arrange a no-obligation valuation on your property as soon as we receive the details.

Not quite ready for a valuation? 

Thank you for signing up and referring a friend

Your details have been submitted successfully.