Plot 1

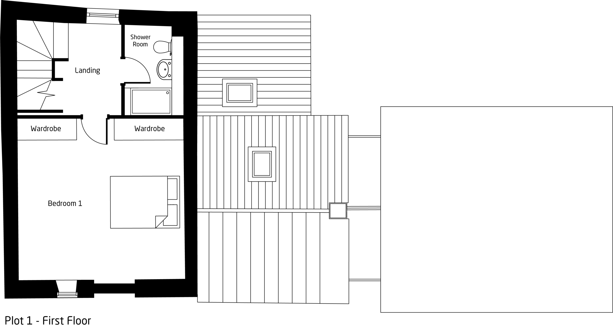
A thoughtfully designed renovation of a Grade II listed home offering spacious, flexible living across two floors. Computer Generated Images (CGIs) are for illustrative purposes only. This two-bedroom home will combine the historic charm of the site with contemporary design and modern technology to create the perfect Cotswold home. The ground floor features a wellproportioned living room and a generous open-plan kitchen/dining or entertaining space with access to the garden. A second double bedroom and family bathroom complete the layout. Upstairs, the principal bedroom occupies the entire first floor, with twin fitted wardrobes and a private shower room. Plot 1 comes with a good-sized outbuilding, which would be the perfect space to make into a studio, home office, gym or workshop.

2 Bedrooms

2 Bathrooms

1,342 SQ/FT

Garage & Parking

Interested? Contact us today

Compare listings

Compare

Book a valuation with us

Please fill in the simple form and we will contact you to arrange a no-obligation valuation on your property as soon as we receive the details.

Not quite ready for a valuation? 

Thank you for signing up and referring a friend

Your details have been submitted successfully.