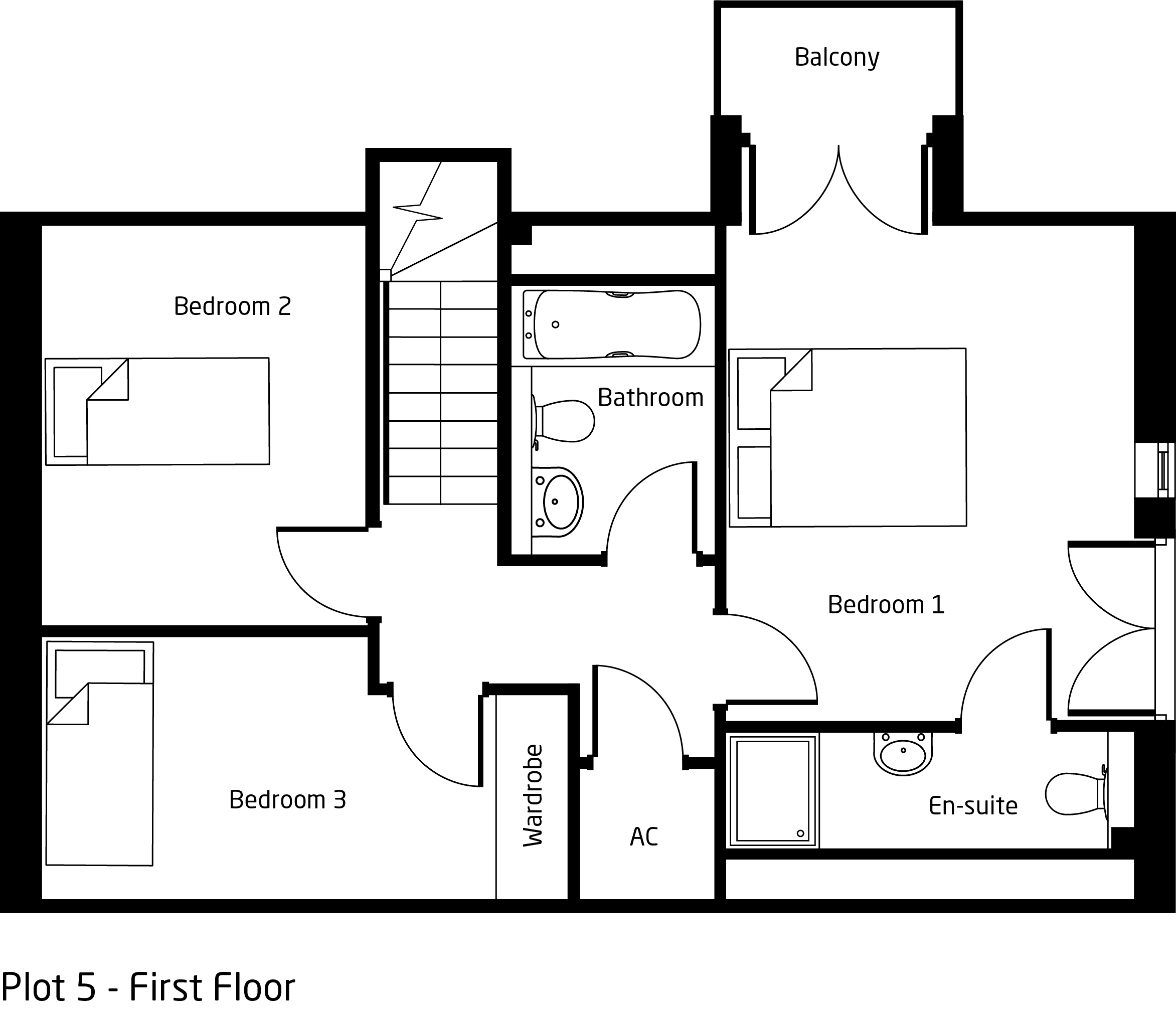
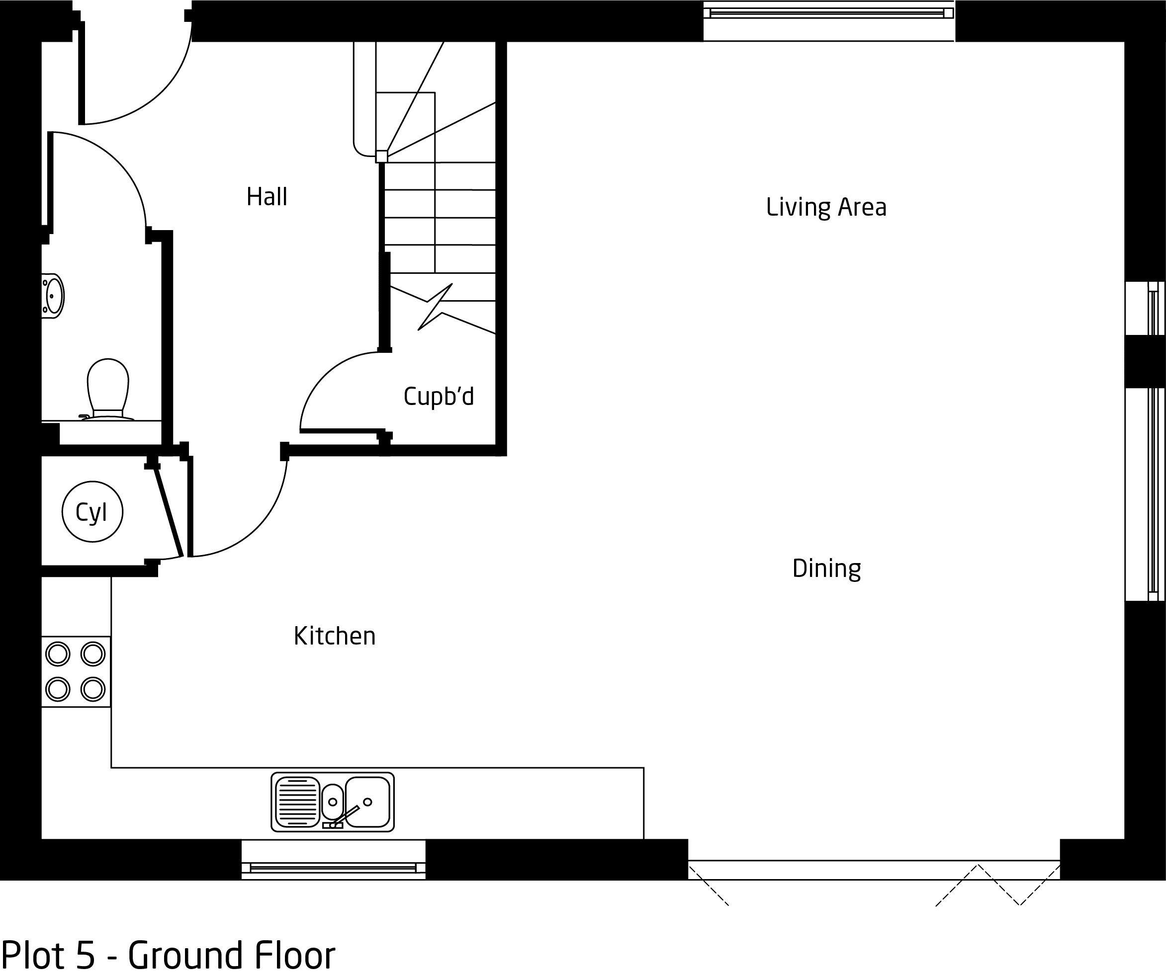
Plot 5

These beautifully designed three-bedroom homes offer charm, natural light, and flexibility across mirrored layouts. On the ground floor, the open-plan kitchen, dining, and living areas flow effortlessly into the private garden—perfect for both relaxing and entertaining. A cloakroom and built-in storage provide added convenience. Upstairs, the principal bedrooms are a standout feature, each with access to a private balcony—an ideal spot to enjoy peaceful mornings or unwind at the end of the day. The main bedrooms also include stylish en-suites. Two additional bedrooms, a contemporary family bathroom, and a useful airing cupboard complete the first floor. Plot 5 further benefits from its own carport, offering private and practical parking.

3 Bedrooms

2 Bathrooms

1148 SQ/FT

Garage & Carport

Interested? Contact us today

Compare listings

Compare

Book a valuation with us

Please fill in the simple form and we will contact you to arrange a no-obligation valuation on your property as soon as we receive the details.

Not quite ready for a valuation? 

Thank you for signing up and referring a friend

Your details have been submitted successfully.