Argus Green, Swindon, SN2

  • Guide Price £375,000
Argus Green, Swindon, SN2
For Sale East Swindon
Argus Green, Swindon, SN2
Argus Green, Swindon, SN2
  • Guide Price £375,000

Overview

  • House
  • Property Type
  • 4
  • Bedrooms
  • 2
  • Bathrooms

what3words Logowhat3words Property Location: urgent.hamsters.herring

Description

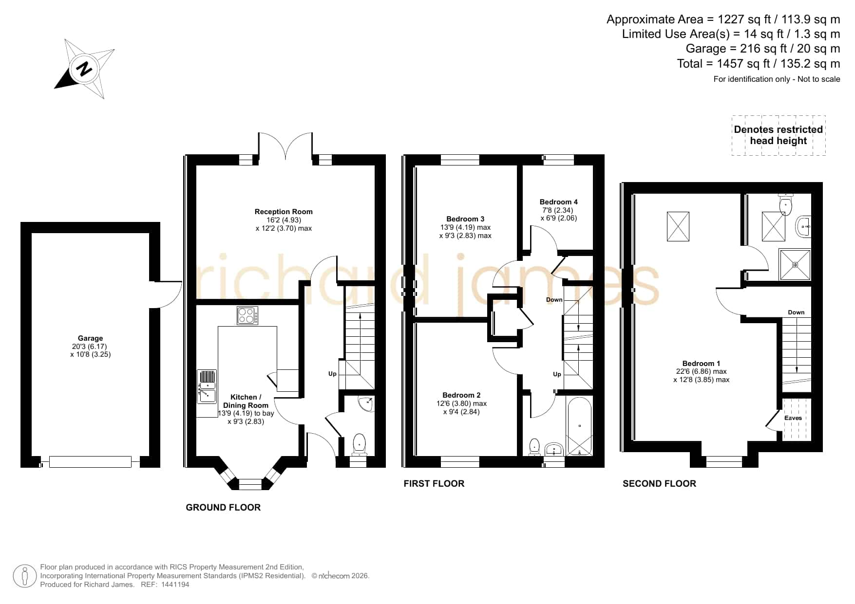
Tucked away within the ever popular Liberty Park development in Upper Stratton, this spacious four bedroom home offers generous proportions throughout and a layout that works perfectly for modern living.

Set over three floors, the property stands out for its particularly large bedrooms, something that’s not always easy to find. As you enter, a hallway leads through to a well sized kitchen breakfast room, ideal for day to day living, while to the rear of the house there is a full width lounge, giving a great sense of space and plenty of room for both relaxing and entertaining. A downstairs cloakroom completes the ground floor.

On the first floor, you’ll find three bedrooms, including two impressive double rooms, along with a further room currently used as a home office, ideal for anyone needing to work from home. The top floor is entirely dedicated to the master bedroom, and it really is a standout feature. Exceptionally large, it offers more than enough space for a dressing area or workspace, alongside a generous ensuite shower room.

Outside, the property benefits from a larger than average garden for the style of house, thanks to its end terrace position. The garden is mainly laid to patio, making it low maintenance and perfect for outdoor seating and entertaining. There is also a driveway and single garage, with the added convenience of rear access via a side door.

A great opportunity to secure a well proportioned home in a small, sought after development where properties rarely stay available for long.

Call now to arrange your viewing!


Council Tax Band: D

Floor Plans

Floorplan
image

Description:

Contact Information

View Listings
Isobel Bowles

Enquire About This Property

Mortgage Calculator

Monthly
  • Deposit
  • Loan Amount
  • Monthly Mortgage Payment
£
%
%

Similar Listings

Compare listings

Compare
Isobel Bowles
  • Isobel Bowles

Book a valuation with us

Please fill in the simple form and we will contact you to arrange a no-obligation valuation on your property as soon as we receive the details.

Not quite ready for a valuation? 

Thank you for signing up and referring a friend

Your details have been submitted successfully.