Ascham Road, Grange Park

  • Guide Price £240,000
Ascham Road, Grange Park
Sold STC West Swindon
Ascham Road, Grange Park
Ascham Road, Grange Park
  • Guide Price £240,000

Overview

  • House
  • Property Type
  • 2
  • Bedrooms
  • 1
  • Bathroom

what3words Logowhat3words Property Location: cyclones.paint.gashes

Description

This delightful end-of-terrace house, nestled in a quiet cul-de-sac. It features a cozy living room, a kitchen with dining space, a rear conservatory, family bathroom, and two bedrooms upstairs. Outside, enjoy a private rear garden and allocated parking. Situated in a prime location near local parks, schools, and shops, with easy access to Junction 16 and the M4. Ideal for small families or couples seeking a convenient home.

Nestled at the end of a quiet cul-de-sac, this delightful two-bedroom end-of-terrace home offers both comfort and convenience. The property is beautifully presented and in good condition throughout, making it an ideal choice for first-time buyers or those seeking to downsize. Upon entering, you are welcomed into a spacious living room that serves as a perfect space for relaxation. The kitchen is generously proportioned, providing room for dining, which is perfect for family meals or entertaining guests. At the rear, a bright conservatory offers an additional reception room, seamlessly connecting the indoors with the outdoors and creating a cozy spot for unwinding while enjoying views of the garden.

Upstairs, the property features two well-sized bedrooms, each designed to offer comfort. The family bathroom is tastefully fitted, offering all the conveniences required for modern living. The overall layout of this home is thoughtfully arranged. The house maintains a sense of space and openness, aided by ample natural light throughout, making every room feel bright and airy. This charming home provides an ideal balance of space and functionality, suited to both singles and young families alike.

Externally, the property boasts a lovely private rear garden, perfect for enjoying sunny afternoons or hosting summer gatherings. An impressive feature of this home is its allocated parking space at the front, ensuring convenience and ease for homeowners and guests. Its location is enviable, with local parks offering plenty of recreational opportunities nearby. Families will appreciate the proximity to local schools and shops, all within a short distance, ensuring all amenities are easily accessible. Transport connections are excellent, with easy access to Junction 16 and the M4, making commutes straightforward and stress-free. This end-of-terrace house is ideally situated, combining the peace of a cul-de-sac setting with the vibrancy and convenience of local amenities within reach.


Council Tax Band: TBC

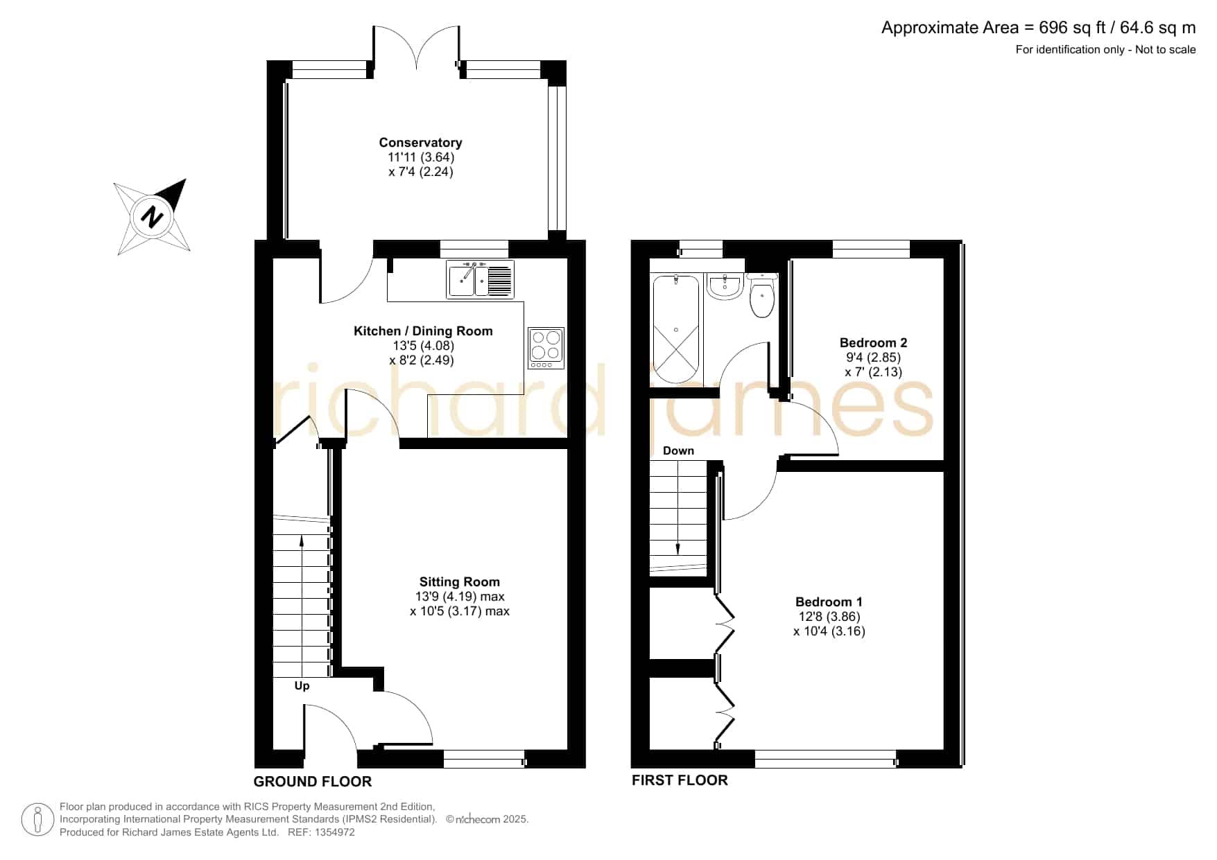
Floor Plans

Floorplan
image

Description:

Contact Information

View Listings

Enquire About This Property

This property has now sold subject to contract. To view my other listings, click here.

Mortgage Calculator

Monthly
  • Deposit
  • Loan Amount
  • Monthly Mortgage Payment
£
%
%

Similar Listings

Compare listings

Compare
Luke Boles
  • Luke Boles

Book a valuation with us

Please fill in the simple form and we will contact you to arrange a no-obligation valuation on your property as soon as we receive the details.

Not quite ready for a valuation? 

Thank you for signing up and referring a friend

Your details have been submitted successfully.