Bayleaf Avenue, Woodhall Park, Swindon, SN2

  • Guide Price £250,000
Bayleaf Avenue, Woodhall Park, Swindon, SN2
For Sale North Swindon
Bayleaf Avenue, Woodhall Park, Swindon, SN2
Bayleaf Avenue, Woodhall Park, Swindon, SN2
  • Guide Price £250,000

Overview

  • House
  • Property Type
  • 2
  • Bedrooms
  • 1
  • Bathroom

what3words Logowhat3words Property Location: clarifies.rider.summer

Description

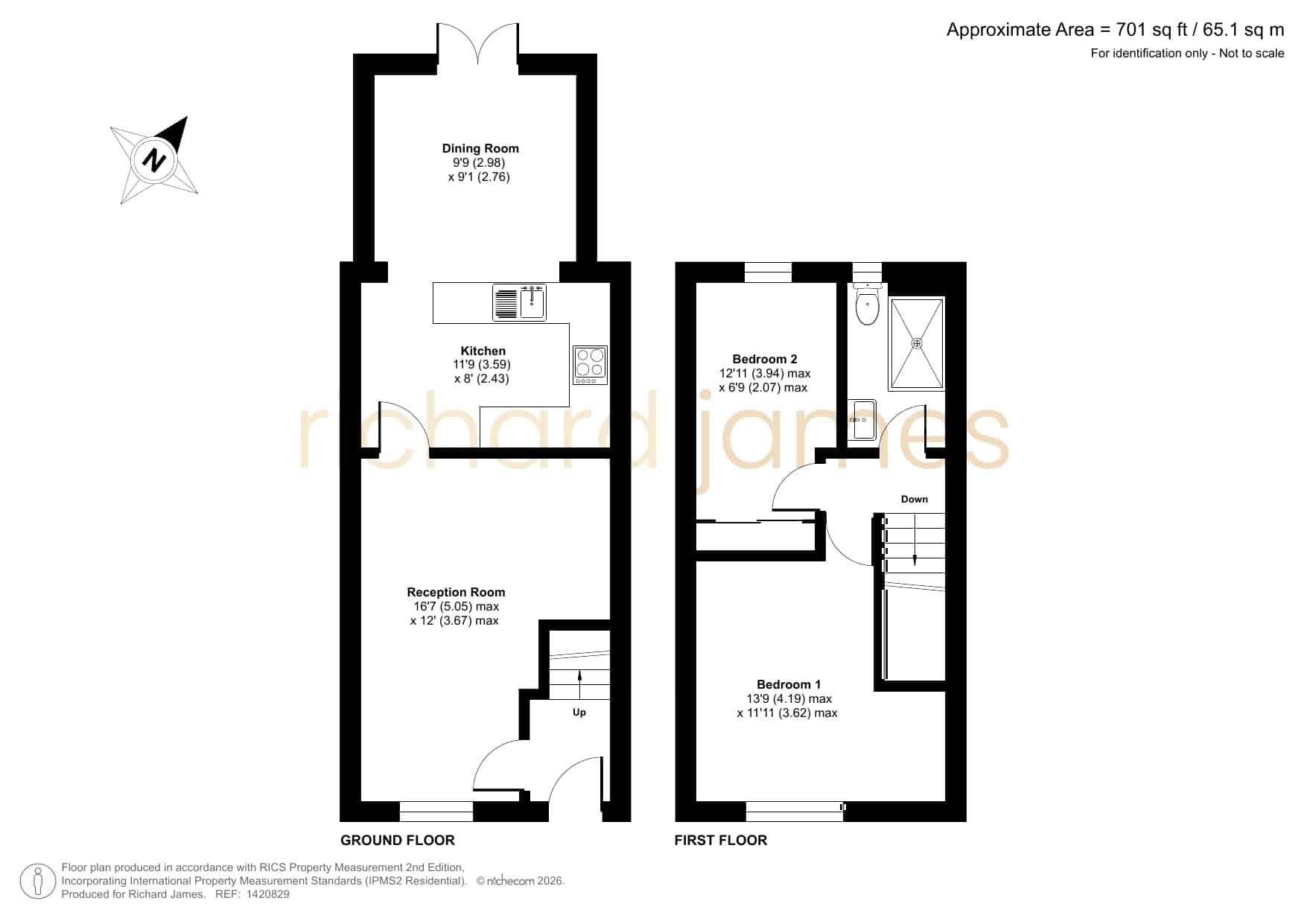
An extended two-bedroom home on Bayleaf Avenue offering well-balanced accommodation across two floors. The property includes a rear extension creating a separate dining area, a recently refitted bathroom, and a landscaped rear garden designed for low maintenance. Additional features include a front reception room, kitchen leading through to the dining space, and two bedrooms on the first floor. Positioned within an established residential area with access to local amenities, schools, and transport links.

Located on Bayleaf Avenue, this extended two-bedroom home provides well-balanced accommodation across two floors, with the benefit of a rear addition and updated internal features.

The ground floor comprises an entrance leading into a reception room positioned at the front of the property, offering a clearly defined living space. To the rear, the kitchen connects through to a dining area created via the extension, providing additional room for day-to-day use as well as access to the garden.

On the first floor, there are two bedrooms, including a larger principal room and a second bedroom suitable for a range of uses such as a guest room, nursery, or home office. The bathroom has been recently refitted and includes modern fixtures and fittings.

Externally, the rear garden has been landscaped to provide a low-maintenance outdoor space, with a practical layout suited to general use throughout the year.

Bayleaf Avenue is positioned within an established residential area, with a range of local amenities nearby including shops, schools, and open green spaces. There are also regular transport links providing access to the town centre and surrounding areas, making the location practical for both day-to-day living and commuting.


Council Tax Band: TBC

Property Documents

epc.png

Floor Plans

Floorplan
image

Description:

Contact Information

View Listings

Enquire About This Property

Mortgage Calculator

Monthly
  • Deposit
  • Loan Amount
  • Monthly Mortgage Payment
£
%
%

Similar Listings

Compare listings

Compare
Rocky Redman
  • Rocky Redman

Book a valuation with us

Please fill in the simple form and we will contact you to arrange a no-obligation valuation on your property as soon as we receive the details.

Not quite ready for a valuation? 

Thank you for signing up and referring a friend

Your details have been submitted successfully.