Bettertons Close, Fairford, GL7

  • Guide Price £350,000
Bettertons Close, Fairford, GL7

Overview

  • Bungalow
  • Property Type
  • 3
  • Bedrooms
  • 2
  • Bathrooms

what3words Logowhat3words Property Location: plunger.wanting.swerving

Description

A Charming Three-Bedroom Bungalow in the Heart of Fairford

Nestled in the highly sought-after town of Fairford, this delightful three-bedroom semi-detached bungalow offers versatile living space, perfect for a range of buyers.

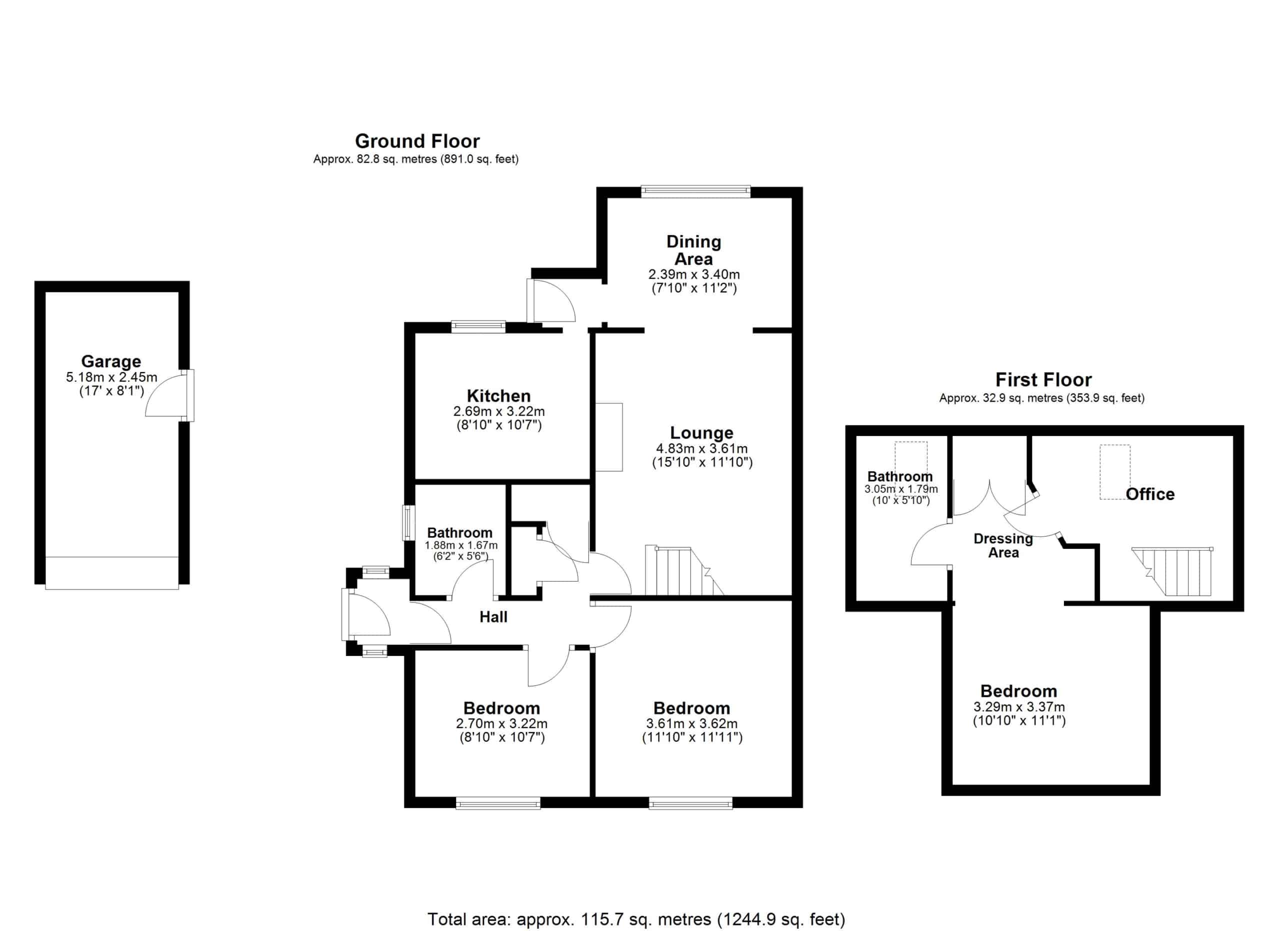
Upon entering, a welcoming porch leads into a spacious hallway, providing access to a bright and airy lounge, a dining area, a well-appointed modern kitchen, and a shower room. The ground floor also boasts two generously sized double bedrooms

A Charming Three-Bedroom Bungalow in the Heart of Fairford

Guide Price £350,000 to £375,000

Nestled in the highly sought-after town of Fairford, this delightful three-bedroom semi-detached bungalow offers versatile living space, perfect for a range of buyers.

Upon entering, a welcoming porch leads into a spacious hallway, providing access to a bright and airy lounge, a dining area, a well-appointed modern kitchen, and a shower room. The ground floor also boasts two generously sized double bedrooms.

Upstairs, a superbly designed first-floor space includes a further double bedroom, a bathroom, a home office, and a dressing area, ideal for those seeking additional flexibility.

Externally, the property benefits from a private driveway leading to a garage, while the low-maintenance rear garden provides a tranquil retreat for outdoor relaxation. A further benefit is the inclusion of the 12 solar panels..

A rare opportunity to acquire a fantastic home in a prime location – early viewing is highly recommended.

Nestled in the heart of the Cotswolds, the charming market town of Fairford is renowned for its stunning natural beauty, rich history, and vibrant community. Situated on the banks of the River Coln, Fairford offers an idyllic blend of countryside tranquillity and modern convenience, making it a highly desirable location for families, professionals, and retirees alike.

The town boasts an array of local amenities, including independent shops, traditional pubs, cosy cafés, and essential services, all set against a backdrop of picturesque Cotswold stone buildings. Fairford’s thriving weekly market and annual events, such as the famous Royal International Air Tattoo at nearby RAF Fairford, contribute to the town’s strong sense of community.

For those who enjoy the outdoors, Fairford offers scenic riverside walks, nature trails, and easy access to the wider Cotswolds countryside. Excellent transport links provide convenient connections to Cirencester, Swindon, and Oxford, while well-regarded schools make the area particularly appealing to families.

With its combination of historic charm, excellent local facilities, and a friendly atmosphere, Fairford is a truly special place to call home.


Council Tax Band: C

Property Documents

39bettertonsclosefairford3

Floor Plans

Floorplan
image

Description:

Contact Information

View Listings
Highworth Estate Agents

Enquire About This Property

Mortgage Calculator

Monthly
  • Deposit
  • Loan Amount
  • Monthly Mortgage Payment
£
%
%

Compare listings

Compare
Highworth Estate Agents
  • Highworth Estate Agents

Book a valuation with us

Please fill in the simple form and we will contact you to arrange a no-obligation valuation on your property as soon as we receive the details.

Not quite ready for a valuation? 

Thank you for signing up and referring a friend

Your details have been submitted successfully.