Brickworth Place, Swindon, SN3

  • Guide Price £290,000
Brickworth Place, Swindon, SN3
For Sale Old Town Swindon
Brickworth Place, Swindon, SN3
Brickworth Place, Swindon, SN3
  • Guide Price £290,000

Overview

  • House
  • Property Type
  • 3
  • Bedrooms
  • 1
  • Bathroom

what3words Logowhat3words Property Location: finely.hype.cake

Description

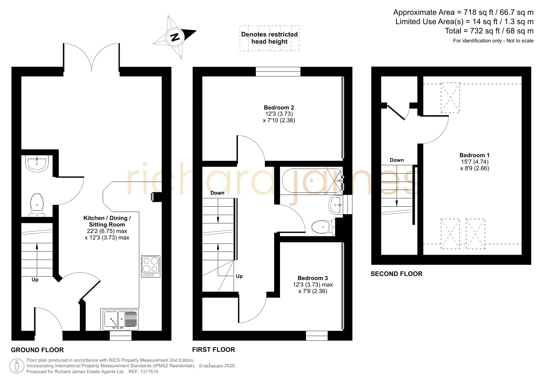
This three bedroom, three storey semi-detached home is well located in a quiet cul-de-sac in Badbury Park and is offered for sale with NO ONWARD CHAIN! This well maintained property would suit a couple or young family and is just a short distance from Great Western Hospital.

The ground floor living accomodation comprises; Entrance hall, a modern and open plan living/dining room/kitchen with french doors leading and giving views of the rear garden plus a W.C.

The first floor offers; first floor landing, a large second bedroom, bedroom three which is a good size and a modern family bathroom.

The second floor comprises; first floor landing and a large main bedroom.

To the rear is an enclosed rear garden with a patio seating area leading to a lawn, there is also gated side access.

This property offers allocated parking for multiple vehicles.


Council Tax Band: TBC

Floor Plans

Floorplan
image

Description:

Contact Information

View Listings

Enquire About This Property

Mortgage Calculator

Monthly
  • Deposit
  • Loan Amount
  • Monthly Mortgage Payment
£
%
%

Similar Listings

Compare listings

Compare
Jack Rogers
  • Jack Rogers

Book a valuation with us

Please fill in the simple form and we will contact you to arrange a no-obligation valuation on your property as soon as we receive the details.

Not quite ready for a valuation? 

Thank you for signing up and referring a friend

Your details have been submitted successfully.