Buller Street, Gorse Hill, Swindon, SN2

  • Fixed Price £230,000
Buller Street, Gorse Hill, Swindon, SN2
For Sale Swindon Town Centre
Buller Street, Gorse Hill, Swindon, SN2
Buller Street, Gorse Hill, Swindon, SN2
  • Fixed Price £230,000

Overview

  • House
  • Property Type
  • 2
  • Bedrooms
  • 2
  • Bathrooms

what3words Logowhat3words Property Location: league.vines.scuba

Description

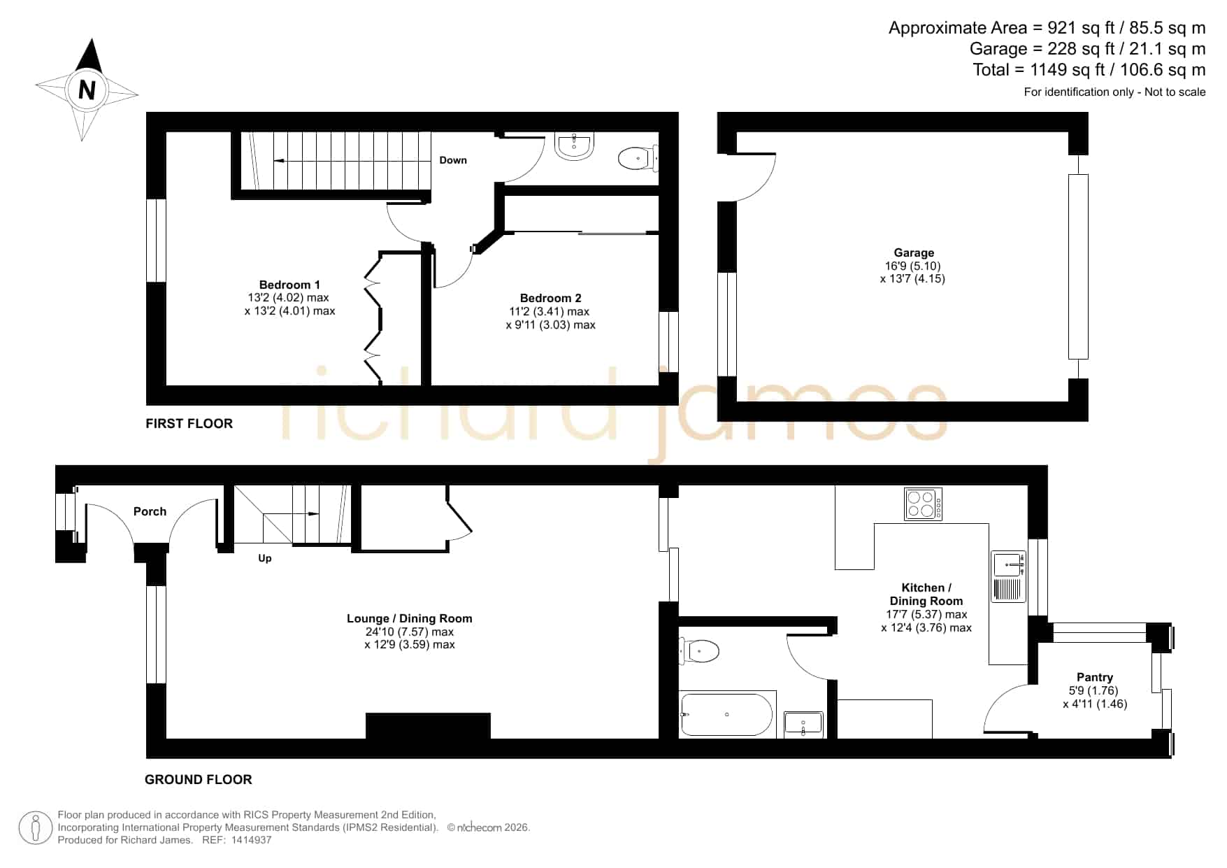
Set in the heart of ever-popular Gorse Hill, this delightful two-bedroom terrace home offers the perfect blend of space, comfort, and convenience. Ideal for first‑time buyers, couples, or small families, the property enjoys an enviable position overlooking a large green field, complete with a children’s play park—a wonderful extension of your outdoor space.

Step through the entrance porch into a bright and spacious open‑plan living and dining area, the perfect setting for relaxing evenings and hosting friends. The room flows effortlessly into the extended kitchen/dining room, offering plenty of countertop space and natural light—ideal for those who love to cook or entertain.
To the rear sits a modern, well-presented bathroom and a super-handy pantry, providing excellent additional storage.

Upstairs, the home continues to impress. The generous landing leads to: a large main bedroom complete with a fitted wardrobe
a comfortable second bedroom. a convenient first-floor W.C., adding great practicality to the layout

The rear of the property boasts a fully enclosed garden, featuring a patio seating area that’s perfect for summer barbecues, with steps leading down to a neat lawn. A standout bonus is the garage to the rear, accessed via a private lane—ideal for secure parking or extra storage.


Council Tax Band: TBC

Property Documents

epc.png

Floor Plans

Floorplan
image

Description:

Contact Information

View Listings

Enquire About This Property

Mortgage Calculator

Monthly
  • Deposit
  • Loan Amount
  • Monthly Mortgage Payment
£
%
%

Similar Listings

Compare listings

Compare
Jack Rogers
  • Jack Rogers

Book a valuation with us

Please fill in the simple form and we will contact you to arrange a no-obligation valuation on your property as soon as we receive the details.

Not quite ready for a valuation? 

Thank you for signing up and referring a friend

Your details have been submitted successfully.