Burford Road, Brize Norton, Carterton, OX18

  • Guide Price £600,000
Burford Road, Brize Norton, Carterton, OX18
For Sale Village & Country Homes Faringdon and Surrounding Villages
Burford Road, Brize Norton, Carterton, OX18
Burford Road, Brize Norton, Carterton, OX18
  • Guide Price £600,000

Overview

  • House
  • Property Type
  • 3
  • Bedrooms
  • 4
  • Bathrooms

what3words Logowhat3words Property Location: hampers.toward.openly

Description

Guide Price: £600,000 – £650,000

Charming stone-built semi-detached cottage in Carterton offering 3 bedrooms, stunning kitchen, character features, spacious living areas, private gardens, garage, and a peaceful yet central location.

Guide Price: £600,000 – £650,000

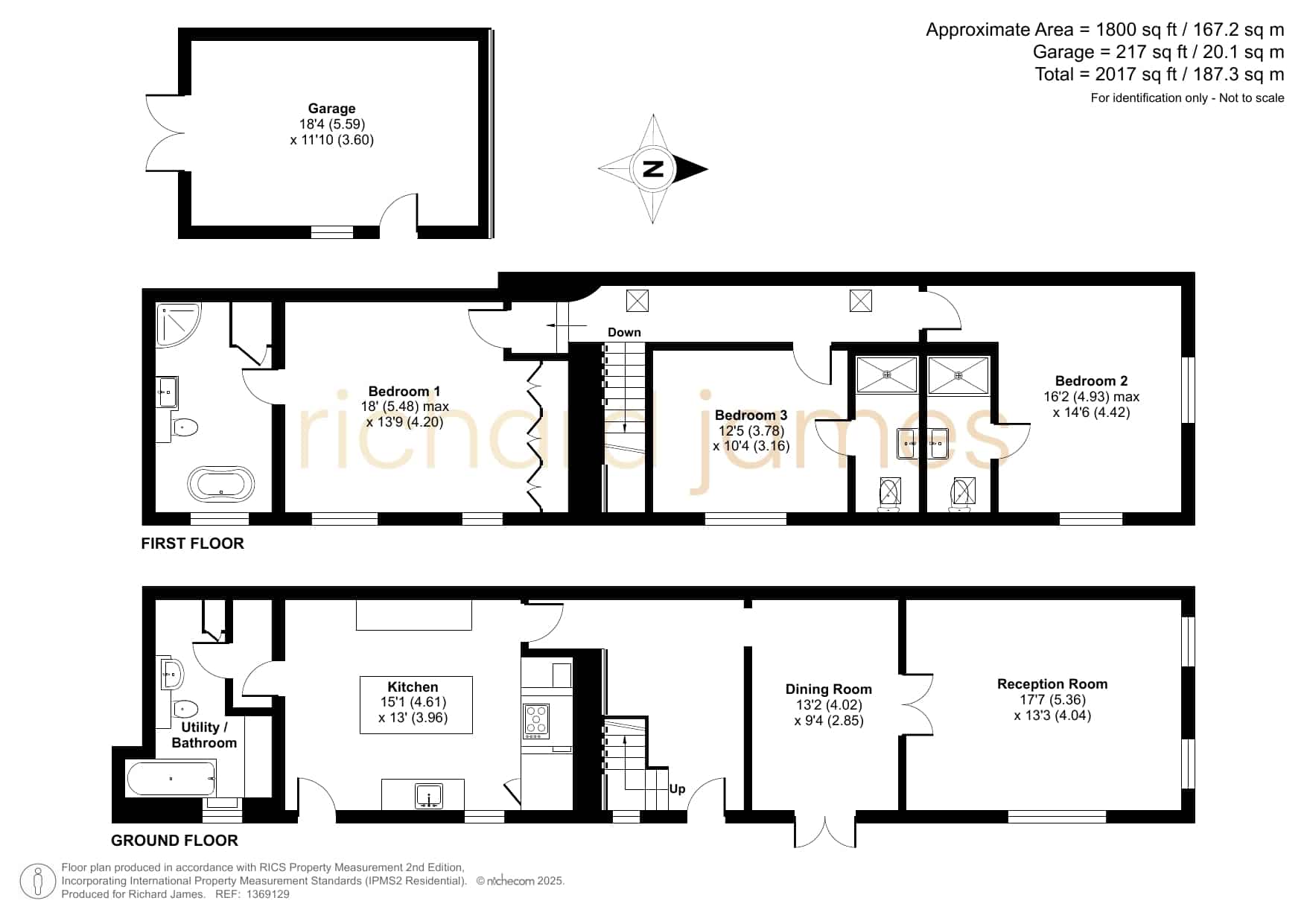
Nestled behind a private gravel driveway and framed by mature greenery, this charming three-bedroom semi-detached cottage offers over 2,000 sq ft of well-arranged accommodation, including a detached garage and generous gardens. Peacefully positioned within a quiet pocket of Carterton, the home combines traditional character with modern comfort.

The ground floor is thoughtfully laid out, beginning with a welcoming entrance hall that leads into a spacious kitchen—the natural hub of the home. Measuring an impressive 15’1 x 13′, the kitchen provides ample room for cooking and informal dining, with direct access to a practical utility/bathroom. From the hall, stairs rise to the first floor and opens into a bright dining room. This in turn flows through to a generous reception room, ideal for relaxed living or hosting guests, with windows bringing in plenty of natural light.

Upstairs, the first floor features three well-proportioned bedrooms. The principal bedroom extends to 18′ in length and includes a private ensuite bathroom. Bedroom 2 also benefits from its own ensuite facilities, as does Bedroom 3—making the layout particularly convenient for families or visiting guests.

Outside, the property enjoys a beautifully established garden offering privacy and a tranquil setting for outdoor dining or relaxation. The gravelled driveway provides excellent parking and leads to a detached garage, presenting useful storage or potential for future adaptation (subject to consents).

Blending period charm, generous room sizes and a calm, tucked-away location, this lovely home sits within easy reach of Carterton’s amenities, schools and transport links to Witney, Oxford and the wider Cotswolds.

About Carterton, Oxfordshire:

Carterton offers a welcoming community with a blend of modern facilities and small-town appeal. Residents enjoy well-regarded schools, leisure amenities including Carterton Leisure Centre, and a lively town centre with cafés, shops and a weekly market. Its proximity to RAF Brize Norton and convenient access to Oxford, Witney and scenic countryside walks make it an attractive and connected place to live.


Council Tax Band: E

Property Documents

epc.png

Floor Plans

Floorplan
image

Description:

Contact Information

View Listings
Chloe Train

Enquire About This Property

Mortgage Calculator

Monthly
  • Deposit
  • Loan Amount
  • Monthly Mortgage Payment
£
%
%

Compare listings

Compare
Chloe Train
  • Chloe Train

Book a valuation with us

Please fill in the simple form and we will contact you to arrange a no-obligation valuation on your property as soon as we receive the details.

Not quite ready for a valuation? 

Thank you for signing up and referring a friend

Your details have been submitted successfully.