Callow Hill, Brinkworth, SN15

  • Guide Price £625,000
Callow Hill, Brinkworth, SN15

Overview

  • Bungalow
  • Property Type
  • 4
  • Bedrooms
  • 2
  • Bathrooms

what3words Logowhat3words Property Location: generated.cookie.scope

Description

A beautiful modernised village home ready to move into. Stunning throughout with great sized rooms, ample parking and gardens and a beautiful feeling of space. Offered for sale with NO CHAIN!..

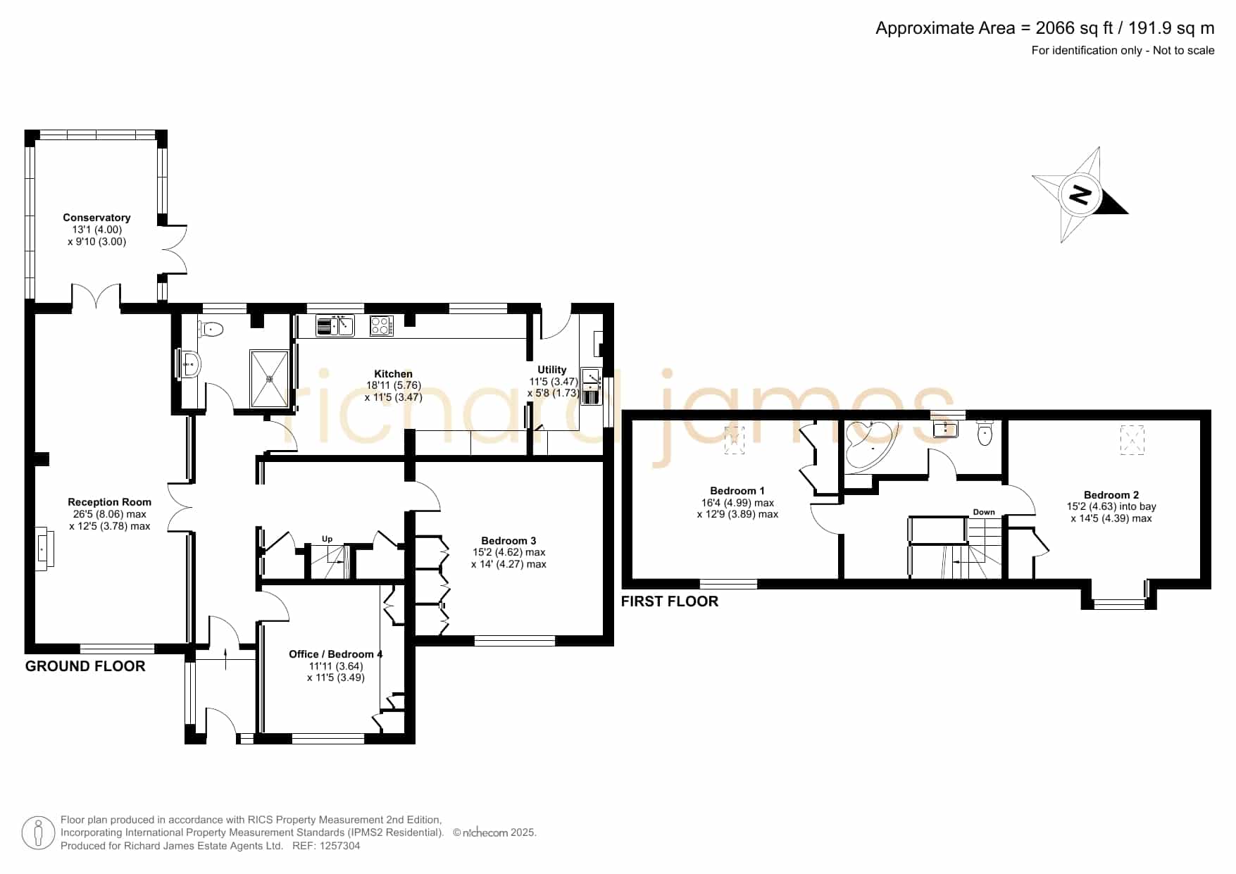
Nestled in the charming countryside of Brinkworth, Enkhabi offers an exceptional blend of space, character, and modern comfort. This beautifully designed four-bedroom detached home boasts a generous 2,066 sq ft of living space, thoughtfully arranged to create a sense of openness while maintaining a warm and inviting atmosphere. The Property is also offered with NO ONWARD CHAIN.

Spacious & Versatile Living Areas
Upon entering, you are welcomed into an expansive 26’6″ (8.06m) reception room, flooded with natural light and providing ample space for both relaxation and entertaining. The conservatory, seamlessly connected to the home, offers a tranquil retreat with garden views, making it the perfect spot to unwind.

The heart of the home is the stylish and well-appointed kitchen, featuring generous workspace and direct access to a utility room. This practical addition enhances functionality while keeping the main living areas sleek and uncluttered.

Flexible Accommodation for Modern Living
With four bedrooms, this home offers versatility to suit a range of needs. Bedroom 1, situated on the ground floor, is spacious and well-proportioned, while the additional room on this level could serve as either a fourth bedroom or a dedicated office, ideal for remote work or a quiet study space.

Upstairs, bedroom two is a true sanctuary, complete with generous proportions (16’4” x 12’9” max) and a serene outlook. A third large bay-fronted bedroom enjoys an abundance of natural light, creating an airy and inviting space. A well-equipped family bathroom completes the upper level, ensuring convenience and comfort for all residents.

A Picturesque Setting with Great Connectivity
Positioned in the desirable Callow Hill area of Brinkworth, this property enjoys the best of both worlds—peaceful rural surroundings with excellent access to nearby amenities. The village of Brinkworth, known as England’s longest village, offers a welcoming community, local pub, and primary school, while the bustling market towns of Malmesbury and Royal Wootton Bassett are within easy reach for additional shops, dining, and leisure options.

Renowned schools such as St Margaret’s, St Mary’s, Calne, Pinewood, and Marlborough College are within easy reach. The property has a bus stop at the end of the Road and offering school bus links to Malmesbury and Royal Wootton Bassett plus it provides excellent transport links, including regular train services to London Paddington and easy access to the M4 (Junction 16).

A Home That Adapts to Your Lifestyle
With its spacious interior, flexible layout, and idyllic countryside setting, Enkhabi is a home that truly caters to modern family life. Whether you are looking for ample living space, work-from-home options, or a peaceful retreat with excellent access to amenities, this property delivers on every front.

Viewings are highly recommended to fully appreciate the space, character, and prime location this exceptional home has to offer.


Council Tax Band: E

Floor Plans

Floorplan
image

Description:

Contact Information

View Listings
Royal Wootton Bassett Estate Agents

Enquire About This Property

Mortgage Calculator

Monthly
  • Deposit
  • Loan Amount
  • Monthly Mortgage Payment
£
%
%

Similar Listings

Compare listings

Compare
Royal Wootton Bassett Estate Agents
  • Royal Wootton Bassett Estate Agents

Book a valuation with us

Please fill in the simple form and we will contact you to arrange a no-obligation valuation on your property as soon as we receive the details.

Not quite ready for a valuation? 

Thank you for signing up and referring a friend

Your details have been submitted successfully.