Cantors Way, Minety, Malmesbury, SN16

  • Guide Price £475,000
Cantors Way, Minety, Malmesbury, SN16
For Sale Village & Country Homes Brinkworth and Surrounding Villages
Cantors Way, Minety, Malmesbury, SN16
Cantors Way, Minety, Malmesbury, SN16
  • Guide Price £475,000

Overview

  • House
  • Property Type
  • 4
  • Bedrooms
  • 2
  • Bathrooms

what3words Logowhat3words Property Location: resonates.honey.camcorder

Description

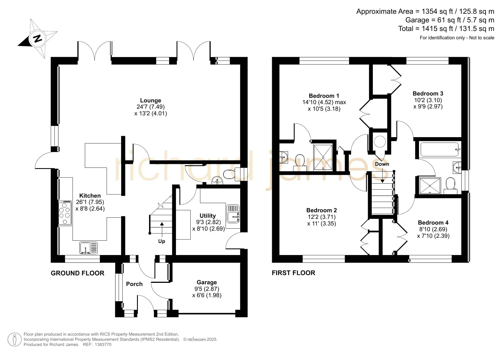
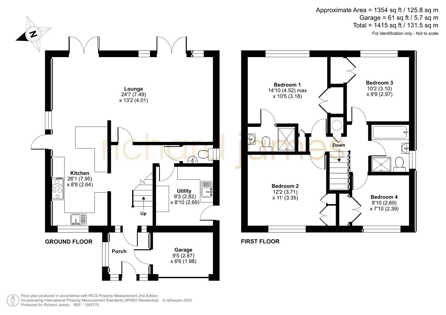
A well-proportioned family home enhanced by a thoughtful extension at ground floor level giving a generous L-shaped open-plan living/dining/kitchen space which creates a bright and sociable hub for everyday life and entertaining. The conversion of part of the garage to create a utility room adds practical value while retaining the original external garage door and remaining storage space — so you still enjoy useful store or bike/car space, without losing floorplan flexibility. The property also boasts four good sized bedrooms with the master having ensuite shower room and a family bathroom.

A well-proportioned family home enhanced by a thoughtful extension at ground floor level giving a generous L-shaped open-plan living/dining/kitchen space which creates a bright and sociable hub for everyday life and entertaining. The conversion of part of the garage to create a utility room adds practical value while retaining the original external garage door and remaining storage space — so you still enjoy useful store or bike/car space, without losing floorplan flexibility. The property also boasts four good sized bedrooms with the master having a refitted ensute shower room and a family bathroom. Outside you have a good sized rear garden which wraps round to the front of side of the house and to the front driveway parking.

Minety itself is a desirable and well-connected village between the historic market towns of Malmesbury and Cirencester — both about eight miles away — which provide full shopping, leisure and secondary schooling options. Locally the village maintains a strong sense of community, with a well-regarded Primary School, a community-run shop, a village hall, and active sports and social clubs.

Transport links are good: the nearby mainline station at Kemble railway station (approximately 6–7 miles) provides services to London Paddington, while the M4 motorway (Junction 16) is around 9 miles away — offering easy road access to Bath, Bristol or Swindon. For leisure and outdoor pursuits, the nearby Cotswold Water Park and surrounding countryside offer walking, water-sport and countryside opportunities, while local communities host village events and clubs which contribute to a friendly, rural-village lifestyle.

Overall, this exquisite home combines contemporary family-friendly living space with the pleasures of village life and excellent access to commuter and transport links — making it an appealing choice for those wanting the balance of rural calm and connectivity.


Council Tax Band: D

Property Documents

epc.png

Floor Plans

Floorplan
image

Description:

Contact Information

View Listings

Enquire About This Property

Mortgage Calculator

Monthly
  • Deposit
  • Loan Amount
  • Monthly Mortgage Payment
£
%
%

Compare listings

Compare
Alex Brown
  • Alex Brown

Book a valuation with us

Please fill in the simple form and we will contact you to arrange a no-obligation valuation on your property as soon as we receive the details.

Not quite ready for a valuation? 

Thank you for signing up and referring a friend

Your details have been submitted successfully.