Clarke Drive, Shaw, Wiltshire, SN5

  • Offers In Excess Of £440,000
Clarke Drive, Shaw, Wiltshire, SN5
Sold STC West Swindon
Clarke Drive, Shaw, Wiltshire, SN5
Clarke Drive, Shaw, Wiltshire, SN5
  • Offers In Excess Of £440,000

Overview

  • House
  • Property Type
  • 4
  • Bedrooms
  • 2
  • Bathrooms

what3words Logowhat3words Property Location: wins.downs.loudness

Description

A four bedroom detached family home located in the sought after area of Shaw and within a short walk from local schools.

This four bedroom detached home is well located in the sought after area of Shaw in West Swindon and would be perfect for a family due to its good condition throughout, its generous room sizes plus its superb location just a short walk from local schools, shops and amenities as well as offering easy access to J16 of the M4 and Lydiard Park.

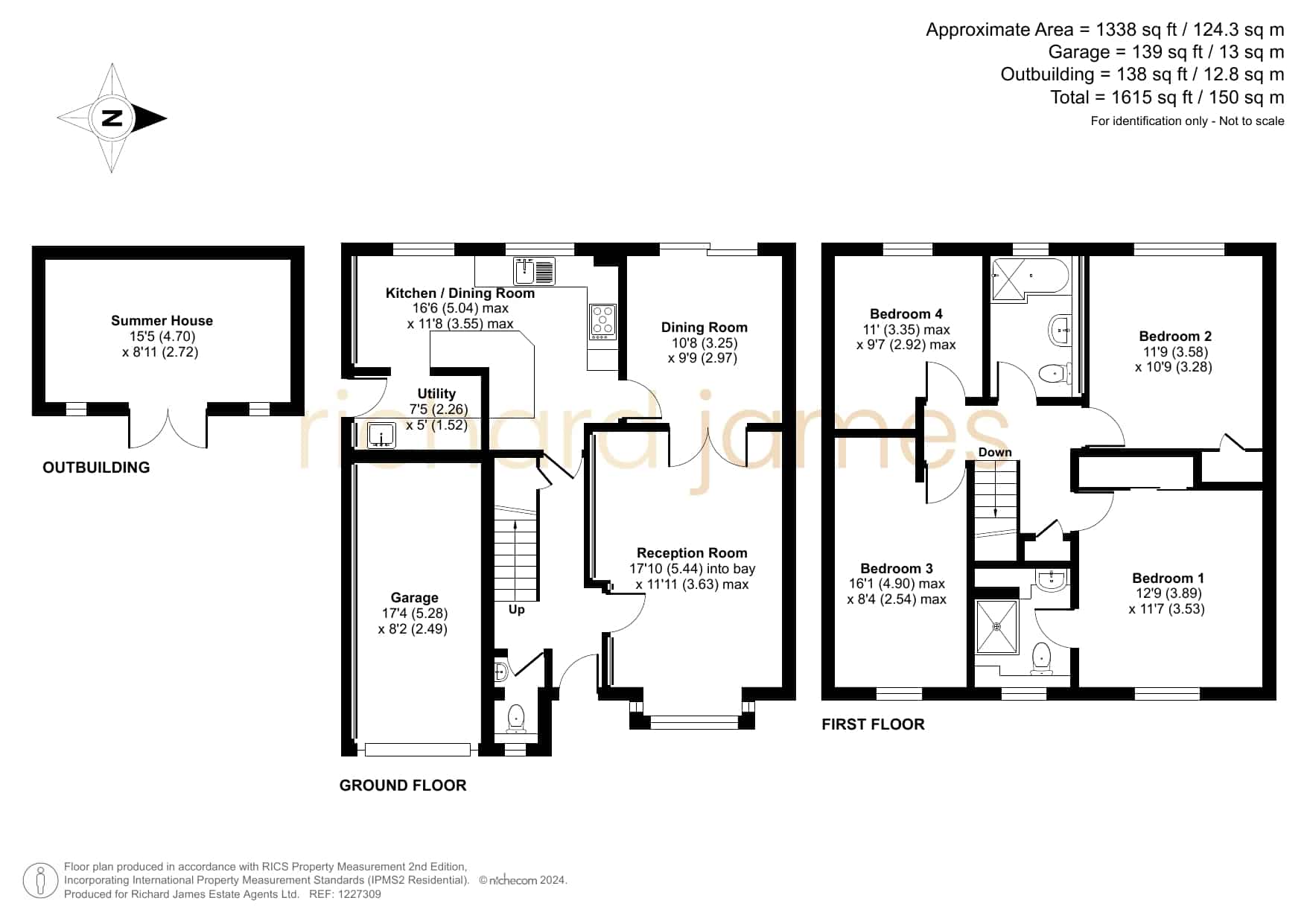
The ground floor living accomodation comprises; Entrance hall, W.C, a generous bay fronted living room with double doors leading to the dining room,a good sized modern kitchen/dining room plus the utility room.

The first floor offers; first floor landing, a generous main bedroom with en-suite shower room and fitted wardrobes, a second bedroom that also offers fitted wardrobes, bedroom three, bedroom four plus the family bathroom.

To the rear is an enclosed and landscaped rear garden with a patio seating area leading to an artifically turfed lawn a further decked seating area plus a large summerhouse with full power and lighting that is currently being used as an office.

To the front is a generous driveway with parking for multiple vehicles plus access to the garage via up and over door.


Council Tax Band: TBC

Property Documents

656b65964de670e9602a2e70a82e609b

Floor Plans

Floorplan
image

Description:

Contact Information

View Listings

Enquire About This Property

This property has now sold subject to contract. To view my other listings, click here.

Mortgage Calculator

Monthly
  • Deposit
  • Loan Amount
  • Monthly Mortgage Payment
£
%
%

Similar Listings

Compare listings

Compare
James Sargeant
  • James Sargeant

Book a valuation with us

Please fill in the simple form and we will contact you to arrange a no-obligation valuation on your property as soon as we receive the details.

Not quite ready for a valuation? 

Thank you for signing up and referring a friend

Your details have been submitted successfully.