Clifton Street, Old Town, Swindon, SN1

  • Guide Price £350,000
Clifton Street, Old Town, Swindon, SN1
Sold STC Old Town Swindon
Clifton Street, Old Town, Swindon, SN1
Clifton Street, Old Town, Swindon, SN1
  • Guide Price £350,000

Overview

  • House
  • Property Type
  • 4
  • Bedrooms
  • 1
  • Bathroom

what3words Logowhat3words Property Location: lime.motel.herb

Description

Guide Price £350,000-£375,000

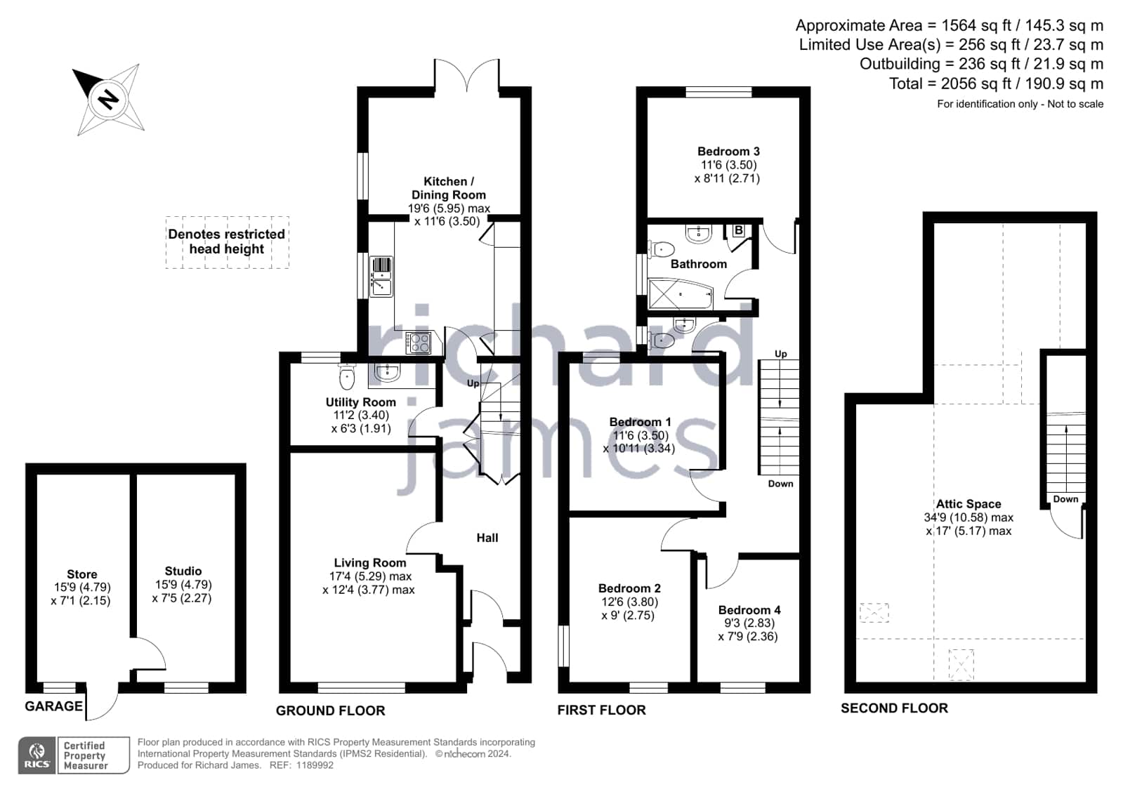
We are delighted to be selling this spacious stunning, character home, located on the
popular Clifton Street in Old Town. The property is very well prented throughout and is larger than average for the area. With the added benefit of a Studio/Office and Store Room, to the rear of the garden which also provides two useful off road parking spaces.

The property retains much original charm and comprises: Entrance Porch, impressive Hallway, 17′ Sitting Room, Utility/Cloakroom and generous 19′ fitted Kitchen/Dining Room, with integrated appliances and PVCu double glazed patio doors opening into the private Rear Garden. With the Four Bedrooms, Family Bathroom and additional WC, to the first floor. With staircase rising to the 34′ Attic Room with velux windows and offering potential for conversions into Master Bedroom etc. (subject to building regs)

Further features include the mature private and enclosed Rear Garden with full width patio area, opening to lawn with well stocked flower and shrub borders, giving access to the the 15′ Store Room and 15′ Studio. Additional benefits include Double Glazing and Gas Radiator Heating.

The property is ideally located for access to Old Towns many amenities and is within walking distance to the areas fantastic schools, both primary and secondary. Viewing is considered a must to appreciate!


Council Tax Band: TBC

Floor Plans

Floorplan
image

Description:

Floorplan
image

Description:

Floorplan
image

Description:

Floorplan
image

Description:

Contact Information

View Listings

Enquire About This Property

This property has now sold subject to contract. To view my other listings, click here.

Mortgage Calculator

Monthly
  • Deposit
  • Loan Amount
  • Monthly Mortgage Payment
£
%
%

Similar Listings

Compare listings

Compare
Alex Hudson
  • Alex Hudson

Book a valuation with us

Please fill in the simple form and we will contact you to arrange a no-obligation valuation on your property as soon as we receive the details.

Not quite ready for a valuation? 

Thank you for signing up and referring a friend

Your details have been submitted successfully.