Cumberland Road, Old Walcot, Swindon, SN3

  • Guide Price £375,000
Cumberland Road, Old Walcot, Swindon, SN3
Sold STC Old Town Swindon
Cumberland Road, Old Walcot, Swindon, SN3
Cumberland Road, Old Walcot, Swindon, SN3
  • Guide Price £375,000

Overview

  • House
  • Property Type
  • 4
  • Bedrooms
  • 2
  • Bathrooms

what3words Logowhat3words Property Location: racing.pepper.stress

Description

***Guide Price £375,000-£400,000***

This four bedroom detached family home is nestled away in a private spot in Old Walcot fronting onto a large green area. This property would suit a range of buyers from couples to families and is in a prime location within walking distance to local schools, shops, churches and a short distance from Old Town.

This extended home has been lovingly maintained by its current owner and has a large kitchen/dining room, generous bedrooms plus a huge driveway offering plenty of parking.

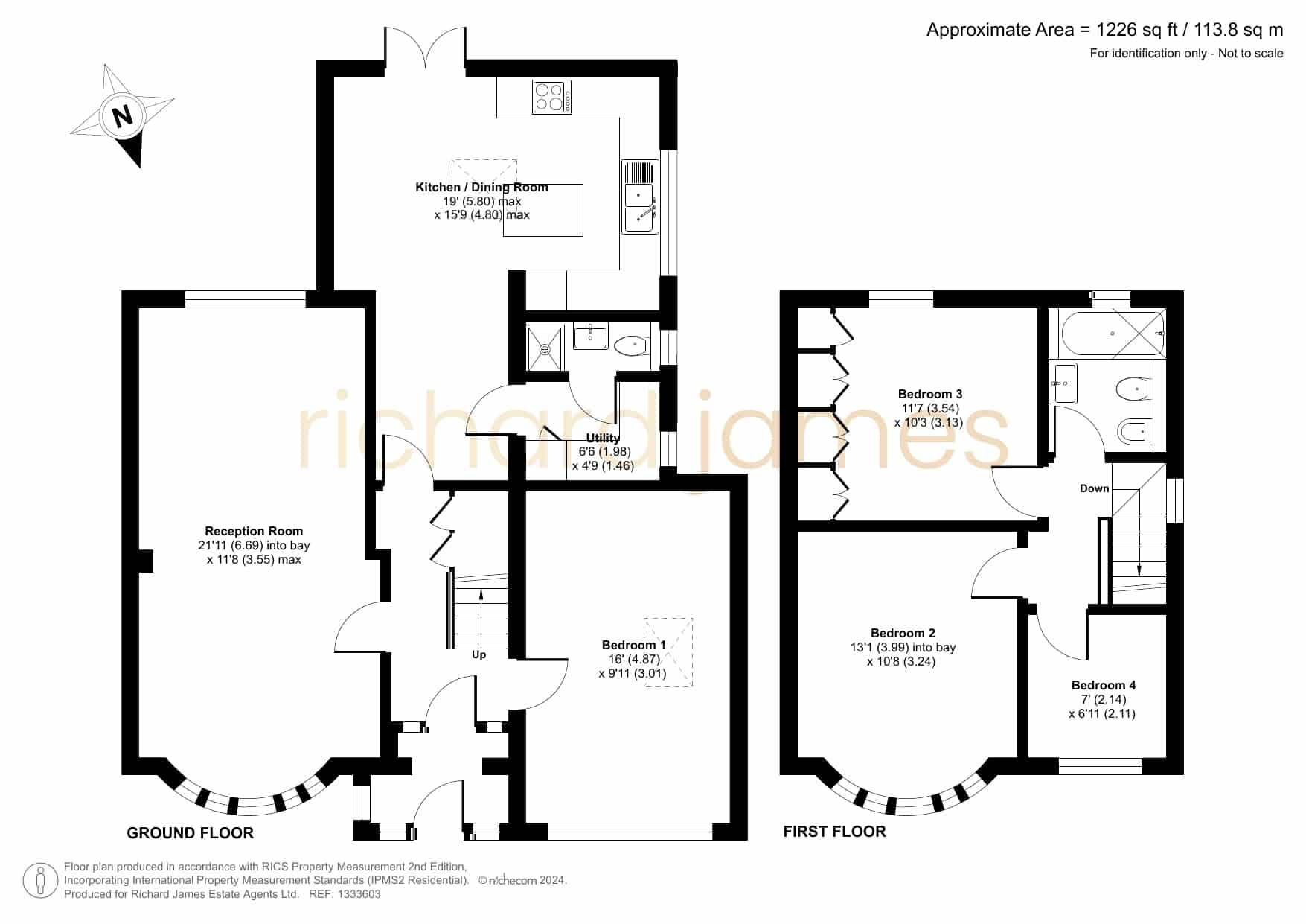
The ground floor living accommodation comprises; Entrance porch, entrance hall, a bay fronted open plan lounge/dining room, a ground floor main bedroom, a large kitchen/dining room with skylight plus the utility room and W.C.

The first floor offers; first floor landing, a bay fronted second bedroom, bedroom three which is a good sized double bedroom and fitted wardrobes, bedroom four plus a modern family bathroom.

To the rear is a small enclosed private rear garden with a patio leading to an artiticial lawn, there is gated side access and a shed.

To the front is a large private driveway laid to stone chippings offering easy access parking for multiple vehicles.


Council Tax Band: TBC

Property Documents

epc.png

Floor Plans

Floorplan
image

Description:

Contact Information

View Listings

Enquire About This Property

This property has now sold subject to contract. To view my other listings, click here.

Mortgage Calculator

Monthly
  • Deposit
  • Loan Amount
  • Monthly Mortgage Payment
£
%
%

Similar Listings

Compare listings

Compare
Jack Rogers
  • Jack Rogers

Book a valuation with us

Please fill in the simple form and we will contact you to arrange a no-obligation valuation on your property as soon as we receive the details.

Not quite ready for a valuation? 

Thank you for signing up and referring a friend

Your details have been submitted successfully.