Devizes Road, Swindon, SN1

  • £480,000
Devizes Road, Swindon, SN1

Description

An exceptional and highly adaptable Grade II listed commercial property, prominently positioned in the very heart of Old Town on Devizes Road.

An exceptional and highly adaptable Grade II listed commercial property, prominently positioned in the very heart of Old Town on Devizes Road — one of Swindon’s most established and prestigious business addresses. The property is presented in excellent order, having been mostly recently redecorated and offers the rare advantage that, all furniture can be included.
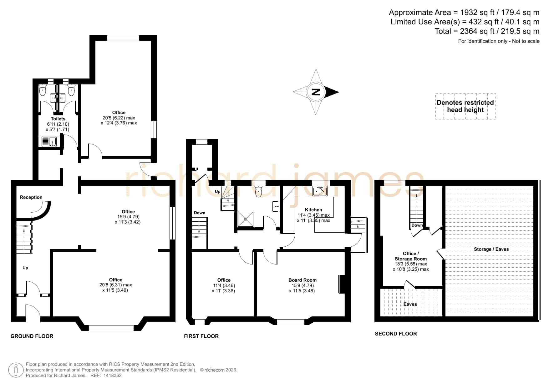
Extending to approximately 2,364 sq ft and arranged over three well-proportioned floors, this impressive period building combines architectural character with practical, modern workspace.

The flexible layout lends itself perfectly to occupation by a single business seeking a distinguished headquarters, or multiple smaller occupiers desiring an inspiring shared environment.

Ground Floor: A welcoming and professional reception area, complemented by staircase access to the upper floors. Three generous offices and WC facilities complete the floor, offering an ideal arrangement for client-facing businesses including professional services, consultancy practices, medical or therapy providers, and boutique agencies.

First Floor: This bright and thoughtfully configured level provides a substantial boardroom, or two further private offices, a well-appointed kitchen and additional shower/WC facilities, creating self-contained working environment ideal for teams or departmental use.

Second Floor: Further office accommodation is available on the top floor, together with a dedicated office/store room and valuable eaves storage, enhancing practicality without compromising character.

Externally, the property is enhanced by four private parking spaces — a significant asset within central Old Town — along with a charming rear courtyard garden. This rare outdoor amenity provides breakout space seldom found in town-centre commercial premises.

Rich in period charm and architectural integrity consistent with its listed status, the building has been carefully maintained and is ready for immediate occupation. With the option to include furniture and the benefit of recent redecoration, it represents an outstanding opportunity for a growing enterprise, satellite office, or multiple occupiers seeking a prominent and characterful base in a prime Old Town location.

For further information or to arrange a viewing, please contact Ellis Smith.


Council Tax Band: TBC

Floor Plans

Floorplan
image

Description:

Contact Information

View Listings

Enquire About This Property

Mortgage Calculator

Monthly
  • Deposit
  • Loan Amount
  • Monthly Mortgage Payment
£
%
%

Compare listings

Compare
Ellis Smith
  • Ellis Smith

Book a valuation with us

Please fill in the simple form and we will contact you to arrange a no-obligation valuation on your property as soon as we receive the details.

Not quite ready for a valuation? 

Thank you for signing up and referring a friend

Your details have been submitted successfully.