Dores Road, Upper Stratton, Swindon, SN2

  • Guide Price £270,000
Dores Road, Upper Stratton, Swindon, SN2
Sold STC North Swindon
Dores Road, Upper Stratton, Swindon, SN2
Dores Road, Upper Stratton, Swindon, SN2
  • Guide Price £270,000

Overview

  • House
  • Property Type
  • 3
  • Bedrooms
  • 1
  • Bathroom

what3words Logowhat3words Property Location: mediate.printout.bakers

Description

* GUIDE PRICE £270,000 – £280,000 *

This charming three-bedroom property, located in the sought-after area of Upper Stratton, Swindon, offers spacious living across two floors.

* GUIDE PRICE £270,000 – £280,000 *
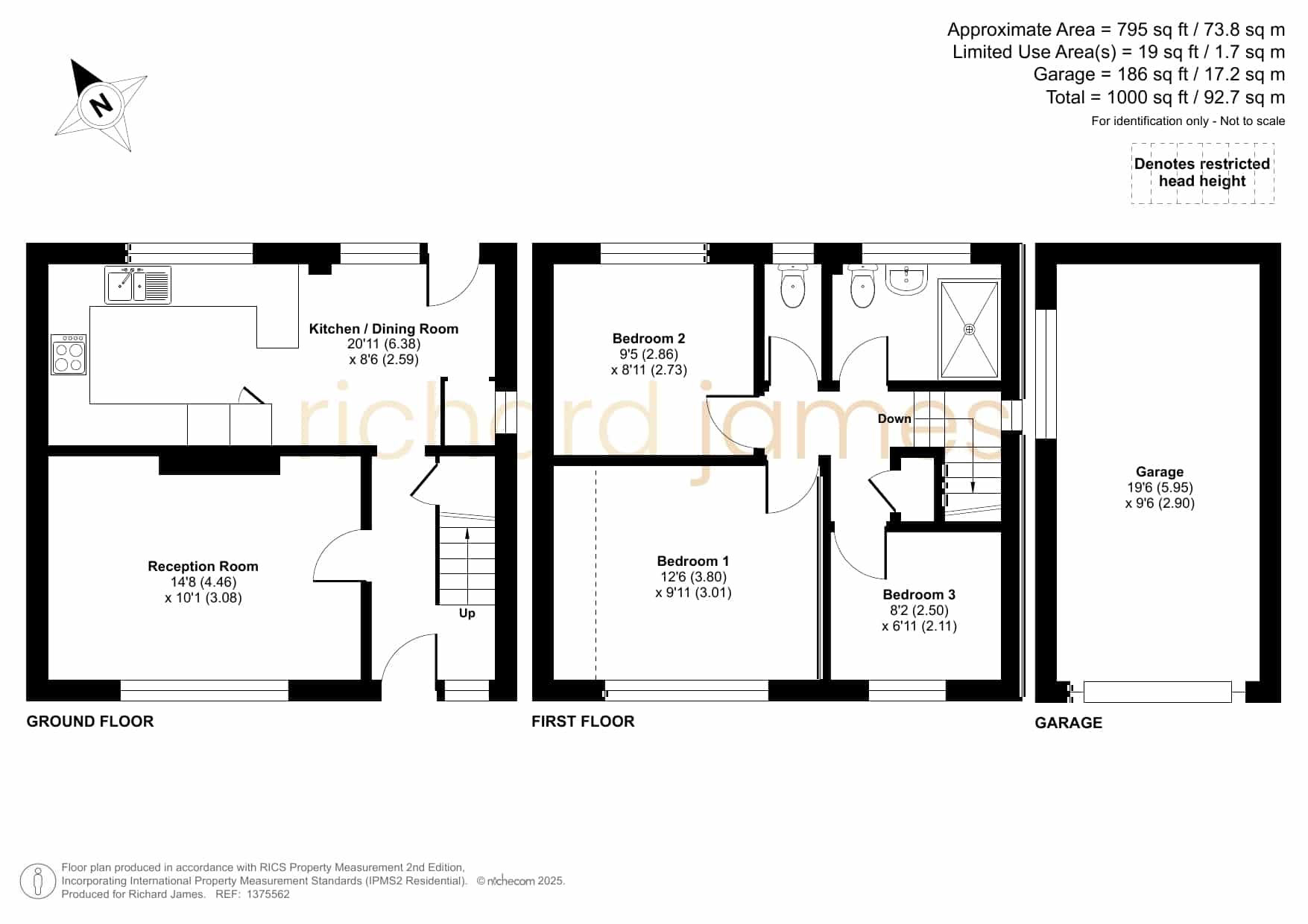
This charming three-bedroom property, located in the sought-after area of Upper Stratton, Swindon, offers spacious living across two floors. The ground floor features a generous reception room, perfect for family gatherings, and a well-equipped kitchen/dining room with ample space for entertaining. Upstairs, you’ll find three well-sized bedrooms, including a master bedroom , along with a family bathroom and second WC. The property also benefits from a separate garage for additional storage or parking. With a total area of 1,000 sq ft, this home offers comfortable living in a convenient location, close to local amenities and transport links. Ideal for first-time buyers or growing families, early viewing is highly recommended.


Council Tax Band: TBC

Property Documents

Floor Plans

Floorplan
image

Description:

Contact Information

View Listings
North Swindon Estate Agents

Enquire About This Property

This property has now sold subject to contract. To view my other listings, click here.

Mortgage Calculator

Monthly
  • Deposit
  • Loan Amount
  • Monthly Mortgage Payment
£
%
%

Similar Listings

Compare listings

Compare
North Swindon Estate Agents
  • North Swindon Estate Agents

Book a valuation with us

Please fill in the simple form and we will contact you to arrange a no-obligation valuation on your property as soon as we receive the details.

Not quite ready for a valuation? 

Thank you for signing up and referring a friend

Your details have been submitted successfully.