East End, Brinkworth, SN15

  • Guide Price £800,000
East End, Brinkworth, SN15

Overview

  • House
  • Property Type
  • 4
  • Bedrooms
  • 2
  • Bathrooms

what3words Logowhat3words Property Location: reddish.jumps.circulate

Description

A substantial detached home with WORKSHOP WITH INSPECTION PIT – TRIPLE GARAGE, offering exceptional flexibility for family living, hobbies, or business use, all set within a generous plot.

A substantial detached home with WORKSHOP WITH INSPECTION PIT AND TRIPLE GARAGE extensive outbuildings, offering exceptional flexibility for family living, hobbies, or business use, all set within a generous plot.

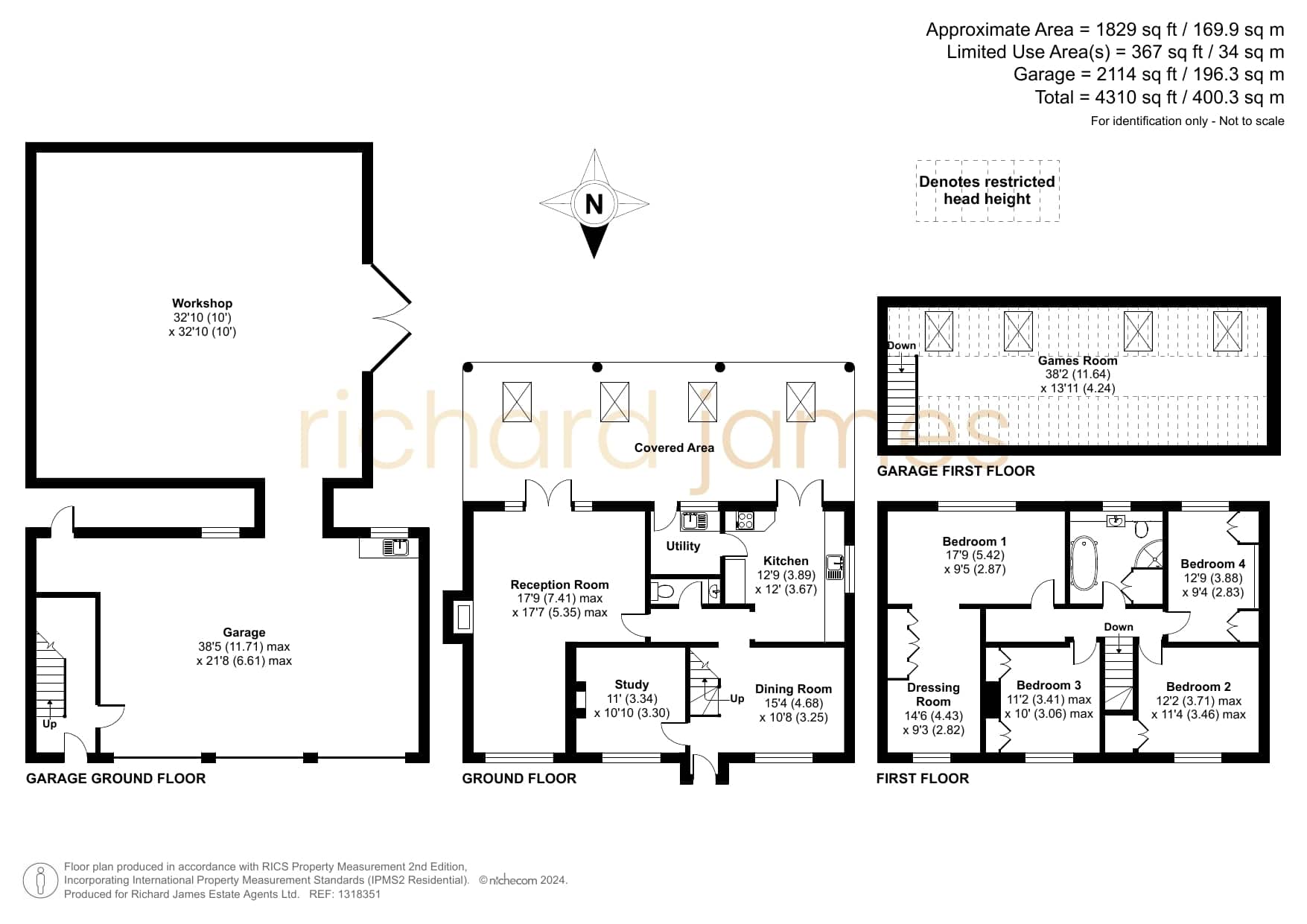
The Accommodation
This well-proportioned property provides a versatile layout arranged over two floors. The ground floor includes a welcoming reception room with feature fireplace, a separate dining area, a study or home office, a well-appointed kitchen, utility room, and covered access to the rear. Upstairs, there are four comfortable bedrooms, a family bathroom, and a separate WC, with the principal bedroom benefitting from a dressing area.

Outbuildings & Workshop
A particular highlight is the large detached garage and adjoining workshop, which features an inspection pit and has previously been used to operate a business. A spacious first floor storage room sits above the garage, providing further potential for a range of uses (subject to any necessary consents).

Outside
The property is approached via a substantial driveway offering ample off-road parking for numerous vehicles, along with a generous rear garden perfect for family enjoyment or further development potential (subject to planning permission).

Yew Tree Cottage enjoys a semi-rural setting on the edge of Brinkworth, reputedly England’s longest village, with excellent connections to nearby towns including Malmesbury, Wootton Bassett, and Chippenham. The property is ideally positioned for access to the M4 motorway, providing straightforward routes to Swindon, Bristol, Bath, and London.

There are well-regarded local schools within easy reach, including Brinkworth Earl Danby’s CE Primary School and Royal Wootton Bassett Academy, as well as independent schooling options in Malmesbury and Marlborough. For commuters, mainline rail services to London Paddington are available from Swindon and Chippenham stations.


Council Tax Band: E

Floor Plans

Floorplan
image

Description:

Contact Information

View Listings

Enquire About This Property

Mortgage Calculator

Monthly
  • Deposit
  • Loan Amount
  • Monthly Mortgage Payment
£
%
%

Compare listings

Compare
Alex Brown
  • Alex Brown

Book a valuation with us

Please fill in the simple form and we will contact you to arrange a no-obligation valuation on your property as soon as we receive the details.

Not quite ready for a valuation? 

Thank you for signing up and referring a friend

Your details have been submitted successfully.