East View, Broad Town Road, Broad Town, SN4

  • Guide Price £375,000
East View, Broad Town Road, Broad Town, SN4
Sold STC Village & Country Homes Royal Wootton Bassett and Surrounding Villages
East View, Broad Town Road, Broad Town, SN4
East View, Broad Town Road, Broad Town, SN4
  • Guide Price £375,000

Overview

  • House
  • Property Type
  • 4
  • Bedrooms
  • 1
  • Bathroom

what3words Logowhat3words Property Location: otters.gratitude.costs

Description

Located in the popular village of Broad Town, this spacious four-bedroom semi-detached home offers fantastic potential and sits on an impressive plot with a substantial rear garden. The property provides versatile accommodation including two reception rooms, a dining room, kitchen and utility/boot room, while upstairs offers four bedrooms, a family bathroom and separate WC. Externally there is ample driveway parking for several vehicles and a large garden backing onto open greenery, offering excellent scope for landscaping or extension (STPP). Broad Town offers a welcoming village community with convenient access to Royal Wootton Bassett and Swindon for a wider range of amenities and transport links.

Situated in the sought-after village of Broad Town, this attractive four-bedroom semi-detached home offers generous accommodation, extensive gardens and exceptional potential to further enhance and extend (subject to the necessary permissions).

The property is set back from the road with ample driveway parking for several vehicles, leading to the entrance porch. Inside, the ground floor provides a versatile layout including two reception rooms, a separate dining room, a kitchen, and a useful utility/boot room, offering flexible living space that could be adapted to suit a variety of lifestyles.

Upstairs, there are four bedrooms along with a family bathroom and additional WC to main bedroom, making the property ideal for growing families or those needing home office space.

One of the standout features of this home is the impressive rear garden, which extends a considerable distance and provides a wonderful outdoor space with enormous scope for landscaping, outdoor entertaining, or potential future extensions. The garden backs onto open greenery, creating a peaceful and semi-rural feel.

Located in the charming village of Broad Town, the property enjoys a strong community atmosphere, countryside walks on the doorstep, and convenient access to nearby towns including Royal Wootton Bassett and Swindon, which provide a wide range of shops, schools, and transport links. The village itself also benefits from local amenities including a well-regarded primary school and village pub, making it a popular choice for families seeking a balance of rural living and accessibility.

Offering space, character, a substantial garden and significant potential, this property represents a fantastic opportunity to create a wonderful long-term home in a desirable village setting.

Welcome…


Council Tax Band: D

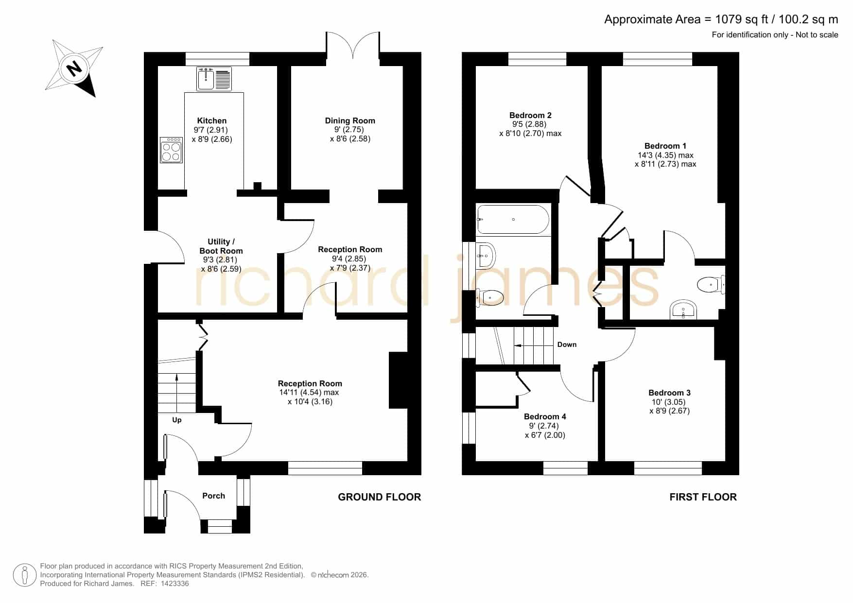
Floor Plans

Floorplan
image

Description:

Contact Information

View Listings

Enquire About This Property

Mortgage Calculator

Monthly
  • Deposit
  • Loan Amount
  • Monthly Mortgage Payment
£
%
%

Compare listings

Compare
Daisy Costin
  • Daisy Costin

Book a valuation with us

Please fill in the simple form and we will contact you to arrange a no-obligation valuation on your property as soon as we receive the details.

Not quite ready for a valuation? 

Thank you for signing up and referring a friend

Your details have been submitted successfully.