Eastcott Road, Old Town, Swindon, SN1

  • Offers Over £425,000
Eastcott Road, Old Town, Swindon, SN1
For Sale Old Town Swindon
Eastcott Road, Old Town, Swindon, SN1
Eastcott Road, Old Town, Swindon, SN1
  • Offers Over £425,000

Overview

  • House
  • Property Type
  • 4
  • Bedrooms
  • 3
  • Bathrooms

what3words Logowhat3words Property Location: joined.tribune.light

Description

Located at the top of Eastcott Road in the ever-desirable Old Town, this impressive extended four-bedroom semi‑detached home offers generous living space, charming period touches, and unbeatable convenience. With highly regarded schools such as Lethbridge Primary School and The Commonweal School just a short stroll away and Old Town’s vibrant mix of independent shops, cafes, bars, and pubs moments from the doorstep—this is the ideal setting for families and professionals alike.

Behind its attractive red‑brick façade, the home unfolds into a thoughtfully arranged and beautifully presented interior.

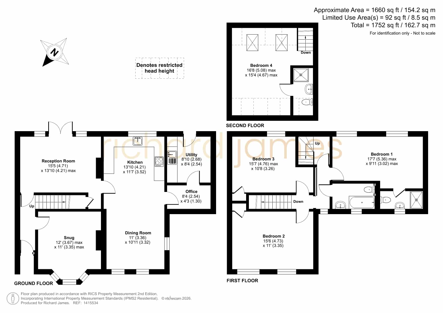
Ground Floor

Step into a welcoming entrance hall that sets the tone for the warmth and space found throughout. At the front sits a cosy bay‑fronted snug, perfect for relaxing evenings or a quiet reading space. A second generous reception room offers fantastic versatility—ideal as a formal lounge, playroom, or media room.
The heart of the home is the modern kitchen/dining room, designed for both everyday living and entertaining. This space flows effortlessly to a useful utility room and a dedicated office—perfect for those who work from home.

First Floor

The first-floor landing leads to three well-appointed bedrooms. The large main bedroom benefits from its own en-suite shower room, while a second spacious double bedroom and a comfortable third bedroom provide excellent accommodation. A stylish family bathroom completes this floor.

Second Floor

The top floor boasts another superbly sized bedroom with its own en-suite shower room—a brilliant guest suite, teenager’s retreat, or luxurious private space.

Outside

The rear garden is private and well‑proportioned, offering a mix of patio and lawn—ideal for summer barbecues, family playtime, or simply unwinding outdoors. The home also provides driveway parking for two vehicles ensuring practical convenience to match its charm and character.


Council Tax Band: C

Video

Floor Plans

Floorplan
image

Description:

Contact Information

View Listings
Old Town Estate Agents

Enquire About This Property

Mortgage Calculator

Monthly
  • Deposit
  • Loan Amount
  • Monthly Mortgage Payment
£
%
%

Similar Listings

Compare listings

Compare
Old Town Estate Agents
  • Old Town Estate Agents

Book a valuation with us

Please fill in the simple form and we will contact you to arrange a no-obligation valuation on your property as soon as we receive the details.

Not quite ready for a valuation? 

Thank you for signing up and referring a friend

Your details have been submitted successfully.