Fairview House, 43 Bath Road, Swindon, SN1

  • £1,000,000
Fairview House, 43 Bath Road, Swindon, SN1
For Sale Land & New Homes Swindon Town Centre
Fairview House, 43 Bath Road, Swindon, SN1
Fairview House, 43 Bath Road, Swindon, SN1
  • £1,000,000

Overview

  • Office
  • Property Type
  • 0
  • Bedroom
  • 0
  • Bathroom

what3words Logowhat3words Property Location: branch.sock.nest

Description

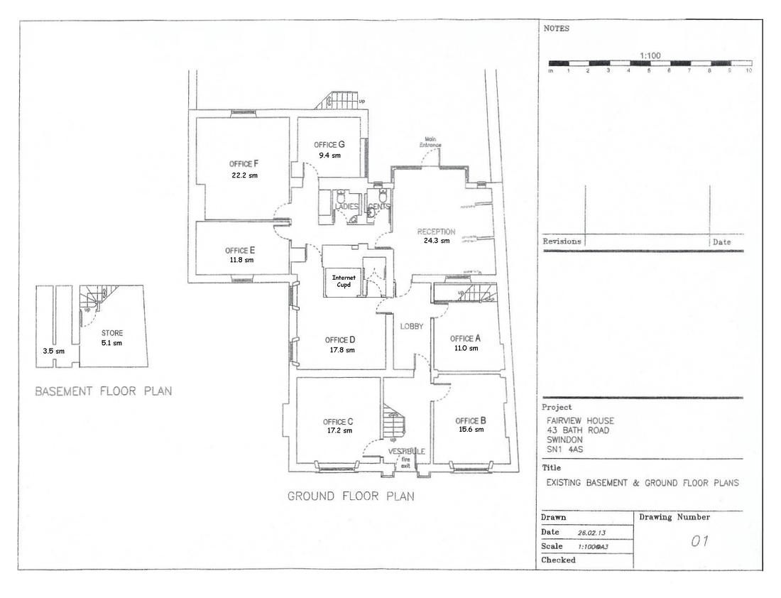
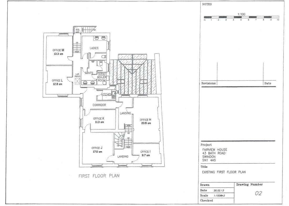
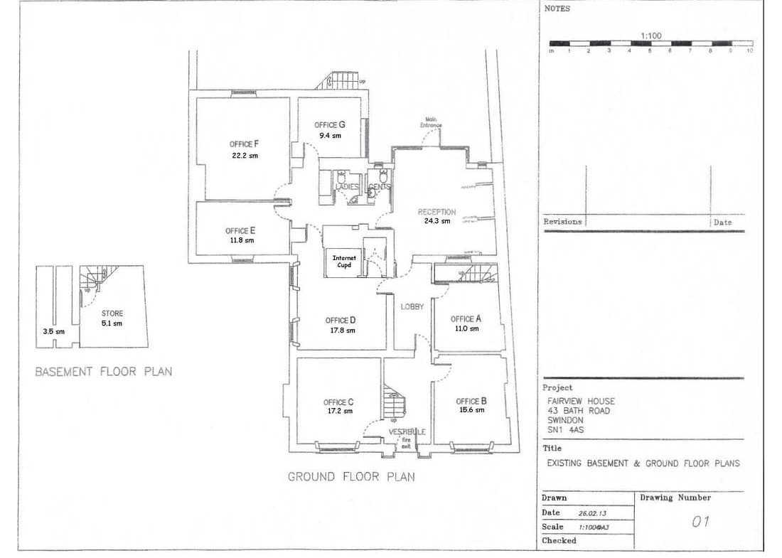
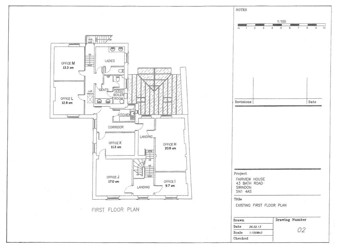
A fantastic commercial building offering a professional and welcoming environment, Fairview House comprises 13 offices across multiple floors. The property benefits from a spacious reception area and dedicated parking to the rear.

Situated on Bath Road in Oldtown, the building is easily accessible and well-connected, with the M4 motorway nearby providing swift links to Swindon town centre and the surrounding region.

The property is freehold and brings in c. £82,000 Gross per annum, with utilities included in the rents. It has a mix of tenancies, including periodic and fixed terms, with full lease details available on request.

Fairview House is a versatile office space, ideal for businesses seeking a professional setting in a convenient and well-established location.


Council Tax Band: TBC

Contact Information

View Listings

Enquire About This Property

Mortgage Calculator

Monthly
  • Deposit
  • Loan Amount
  • Monthly Mortgage Payment
£
%
%

Compare listings

Compare
Ellis Smith
  • Ellis Smith

Book a valuation with us

Please fill in the simple form and we will contact you to arrange a no-obligation valuation on your property as soon as we receive the details.

Not quite ready for a valuation? 

Thank you for signing up and referring a friend

Your details have been submitted successfully.