Fenland Close, Middleleaze, Swindon, SN5

  • Offers In The Region Of £175,000
Fenland Close, Middleleaze, Swindon, SN5
Sold STC West Swindon
Fenland Close, Middleleaze, Swindon, SN5
Fenland Close, Middleleaze, Swindon, SN5
  • Offers In The Region Of £175,000

Overview

  • House
  • Property Type
  • 1
  • Bedroom
  • 1
  • Bathroom

what3words Logowhat3words Property Location: goad.heightens.deliver

Description

1 BEDROOM CORNER PLOT HOUSE, GAS RADIATOR CENTRAL HEATING, NEW BOILER, NO ONWARD CHAIN

Situated in a quiet Middleleaze cul de sac, we are pleased to present this much improved 1 bedroom corner plot house. The property benefits from uPVC double glazing, gas radiator central heating, sitting room, fitted kitchen, bedroom, bathroom, corner plot garden & gravel driveway parking. The property is well located for all local amenities shops, schools etc Lydiard park & M4 J16. Viewing is highly recommended by the vendor’s sole agent.

NB, There is a uPVC double glazed lean to conservatory which requires attention.


Council Tax Band: TBC

Property Documents

fenlandcloseepc

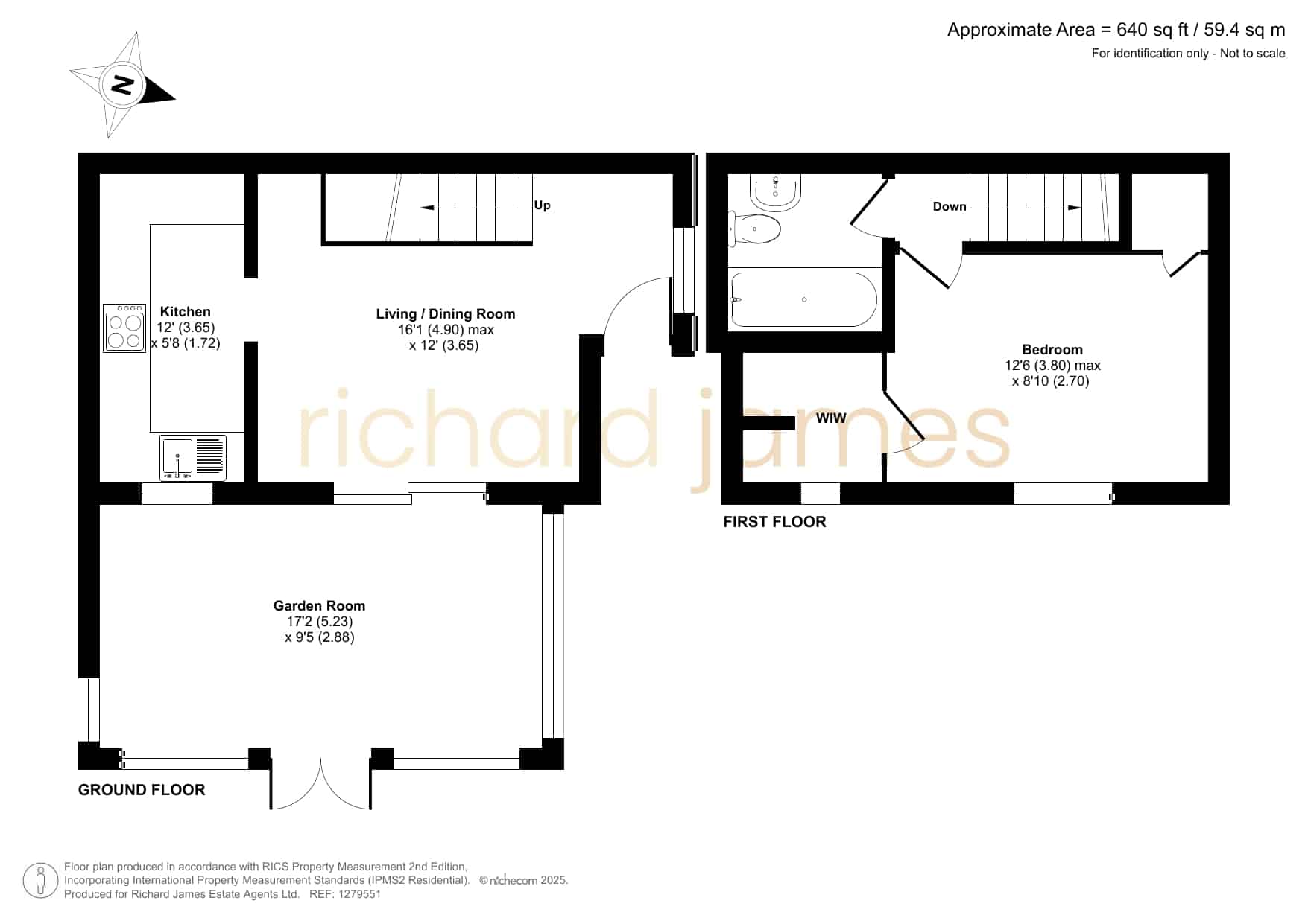
Floor Plans

Floorplan
image

Description:

Contact Information

View Listings

Enquire About This Property

This property has now sold subject to contract. To view my other listings, click here.

Mortgage Calculator

Monthly
  • Deposit
  • Loan Amount
  • Monthly Mortgage Payment
£
%
%

Similar Listings

Compare listings

Compare
Barrie Brocks
  • Barrie Brocks

Book a valuation with us

Please fill in the simple form and we will contact you to arrange a no-obligation valuation on your property as soon as we receive the details.

Not quite ready for a valuation? 

Thank you for signing up and referring a friend

Your details have been submitted successfully.