Greene Street, Tadpole Garden Village, Swindon, SN25

  • Guide Price ÂŁ350,000
Greene Street, Tadpole Garden Village, Swindon, SN25
Sold STC North Swindon
Greene Street, Tadpole Garden Village, Swindon, SN25
Greene Street, Tadpole Garden Village, Swindon, SN25
  • Guide Price ÂŁ350,000

Overview

  • House
  • Property Type
  • 4
  • Bedrooms
  • 2
  • Bathrooms

what3words Logowhat3words Property Location: trickled.festivity.soccer

Description

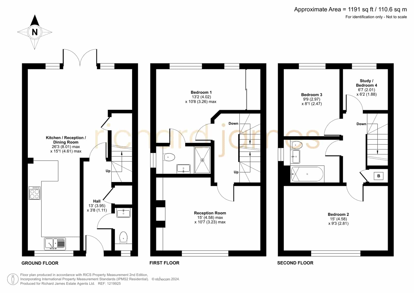
Situated in the desirable Tadpole Garden Village, this superb 4 bedroom end terrace home offers a flexible layout and stylish interiors, making it ideal for modern family living.

The ground floor is the heart of the home, featuring a bright and airy open-plan kitchen/dining/lounge area with French doors leading to the rear garden—perfect for entertaining or everyday living. A convenient cloakroom is also located on this level.

Situated in the desirable Tadpole Garden Village, this superb 4 bedroom end terrace home offers a flexible layout and stylish interiors, making it ideal for modern family living.

The ground floor is the heart of the home, featuring a bright and airy open-plan kitchen/dining/lounge area with French doors leading to the rear garden—perfect for entertaining or everyday living. A convenient cloakroom is also located on this level.

On the first floor, you’ll find the impressive master bedroom, complete with built-in wardrobes and an en suite shower room for added convenience. The lounge, currently utilized as an additional bedroom, showcases a sleek media wall with a built-in modern electric fire, offering both versatility and a contemporary touch.

The top floor provides further flexible accommodation with three bedrooms: a generous double, a good-sized single, and a smaller room ideal as a nursery, home office, or dressing room.

The rear garden is larger than average for a townhouse, providing ample outdoor space for relaxation or play. At the back of the property, there’s a single garage and driveway parking for one vehicle, adding practicality to this exceptional home.

Located in the thriving Tadpole Garden Village community, with its excellent local amenities, green spaces, and convenient access to Swindon and beyond, this property is a must-see for families and professionals alike. Arrange your viewing today to truly appreciate all this wonderful home has to offer!


Council Tax Band: TBC

Floor Plans

Floorplan
image

Description:

Contact Information

View Listings
Isobel Bowles

Enquire About This Property

This property has now sold subject to contract. To view my other listings, click here.

Mortgage Calculator

Monthly
  • Deposit
  • Loan Amount
  • Monthly Mortgage Payment
ÂŁ
%
%

Similar Listings

Compare listings

Compare
Isobel Bowles
  • Isobel Bowles

Book a valuation with us

Please fill in the simple form and we will contact you to arrange a no-obligation valuation on your property as soon as we receive the details.

Not quite ready for a valuation? 

Thank you for signing up and referring a friend

Your details have been submitted successfully.