Greenfields, South Marston, Swindon, SN3

  • Guide Price £240,000
Greenfields, South Marston, Swindon, SN3
Sold STC Village & Country Homes Highworth and Surrounding Villages
Greenfields, South Marston, Swindon, SN3
Greenfields, South Marston, Swindon, SN3
  • Guide Price £240,000

Overview

  • House
  • Property Type
  • 3
  • Bedrooms
  • 1
  • Bathroom

what3words Logowhat3words Property Location: sake.fries.formless

Description

GUIDE PRICE £240,000 TO £250,000

An extraordinary chance awaits in South Marston to acquire a three-bedroom family home with an impressive rear extension already in motion.

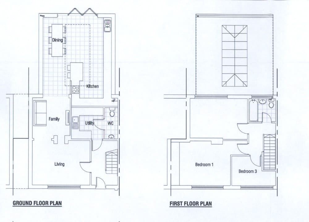
Step into the improved accommodation through the entrance porch, leading to a hallway with stairs ascending to the first floor.

To the right, discover a cozy living room adorned with a double-sided woodburning stove, seamlessly connected to the dining room.

At the rear, you’ll find the kitchen/breakfast room with a back door leading through to the expansive single-story rear extension currently underway, measuring 6m in length from the original rear wall, boasting a maximum height of 3.3m and an eaves height of 2.6m. (For more information visit: swindon.gov.uk/planning – S/PRIORH/18/0061)

Ascend to the first floor where two generously sized double bedrooms and a single bedroom await. Also on this floor is a modern, white, three-piece bathroom suite featuring a shower-over-bath.

Externally, the property boast ample driveway parking to the front, while the rear unveils a recently constructed large brick-built shed/workshop nestled within a sizable, enclosed, and secluded rear garden.

In summary, this property offers an exceptional opportunity to infuse your personal touch and bring to completion this remarkable project.


Council Tax Band: A

Property Documents

epcgraph

Floor Plans

Floorplan
image

Description:

Contact Information

View Listings

Enquire About This Property

Mortgage Calculator

Monthly
  • Deposit
  • Loan Amount
  • Monthly Mortgage Payment
£
%
%

Compare listings

Compare
Mark Stacey
  • Mark Stacey

Book a valuation with us

Please fill in the simple form and we will contact you to arrange a no-obligation valuation on your property as soon as we receive the details.

Not quite ready for a valuation? 

Thank you for signing up and referring a friend

Your details have been submitted successfully.