Grosmont Drive, Toothill, Swindon, SN5

  • Guide Price £450,000
Grosmont Drive, Toothill, Swindon, SN5
Sold STC West Swindon
Grosmont Drive, Toothill, Swindon, SN5
Grosmont Drive, Toothill, Swindon, SN5
  • Guide Price £450,000

Overview

  • House
  • Property Type
  • 4
  • Bedrooms
  • 2
  • Bathrooms

what3words Logowhat3words Property Location: bland.escalated.orchids

Description

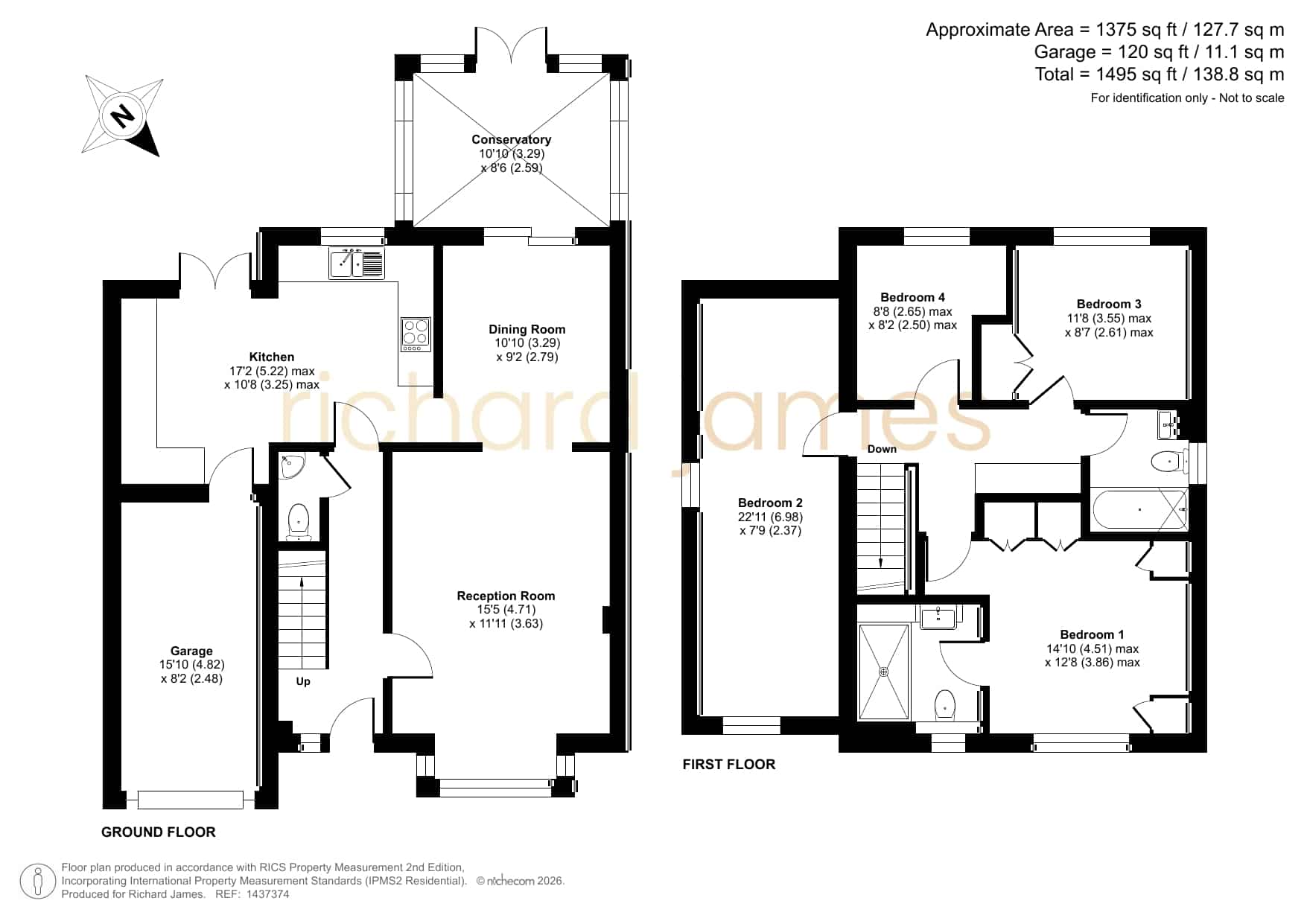
This spacious four-bedroom detached house is nestled at the end of a quiet cul-de-sac near Kiln Park, Swindon, offering peaceful living with convenient access to local amenities. Featuring an entrance hall, two reception rooms, conservatory, and a kitchen/breakfast room, the property boasts a principal bedroom with ensuite, two further doubles, and a single bedroom. Recently fitted bathroom and gas boiler enhance its appeal. Outside, an extended driveway and integral garage ensure ample parking, while the enclosed mature garden with patio is perfect for enjoying sunny days.

Situated at the end of a cul-de-sac, this well-presented four-bedroom detached home offers an idyllic family lifestyle and neighbours Kiln Park, a lovely green space with paths giving access to other parts of West Swindon. The inviting entrance hall, complete with practical understairs storage, sets the tone for the bright and spacious interiors beyond. The ground floor is thoughtfully configured, featuring a cosy sitting room and a separate dining area extending into a light-filled conservatory, perfect for hosting or relaxing. The kitchen/breakfast room boasts ample space for family meals and culinary endeavours, while a convenient downstairs W.C. completes the ground floor layout.

Upstairs, the principal bedroom serves as a tranquil retreat with its fitted wardrobes and modern ensuite shower room. Two further double bedrooms provide generous accommodation, alongside a versatile single bedroom currently utilised as a home office. The refitted family bathroom exudes contemporary elegance, offering a haven for relaxation with its high-quality finishes. Additionally, the property benefits from a refitted gas boiler, ensuring efficient heating, and is enhanced with durable uPVC windows and doors throughout, delivering energy efficiency and low maintenance.

Externally, the property excels with a thoughtfully extended driveway, offering ample parking space for multiple vehicles, leading to an integral garage fitted with an electric roller door for ease of access. The garage also benefits from internal pedestrian access into the house. The rear garden is a picturesque and private oasis, featuring a sunny patio area for alfresco dining, a neatly maintained lawn, and storage sheds, all enclosed within mature borders. Perfectly positioned within walking distance of both Freshbrook Village Centre and the bustling amenities of the West Swindon District Centre, the area offers abundant leisure options including parks, shops, eateries, and a cinema, alongside local schools, making it an enviable choice for families seeking convenience and community.


Council Tax Band: E

Video

Floor Plans

Floorplan
image

Description:

Contact Information

View Listings
Emma Middleton

Enquire About This Property

This property has now sold subject to contract. To view my other listings, click here.

Mortgage Calculator

Monthly
  • Deposit
  • Loan Amount
  • Monthly Mortgage Payment
£
%
%

Similar Listings

Compare listings

Compare
Emma Middleton
  • Emma Middleton

Book a valuation with us

Please fill in the simple form and we will contact you to arrange a no-obligation valuation on your property as soon as we receive the details.

Not quite ready for a valuation? 

Thank you for signing up and referring a friend

Your details have been submitted successfully.