Highdown Way, St Andrews Ridge, Swindon, SN25

  • Guide Price £315,000
Highdown Way, St Andrews Ridge, Swindon, SN25
For Sale North Swindon
Highdown Way, St Andrews Ridge, Swindon, SN25
Highdown Way, St Andrews Ridge, Swindon, SN25
  • Guide Price £315,000

Description

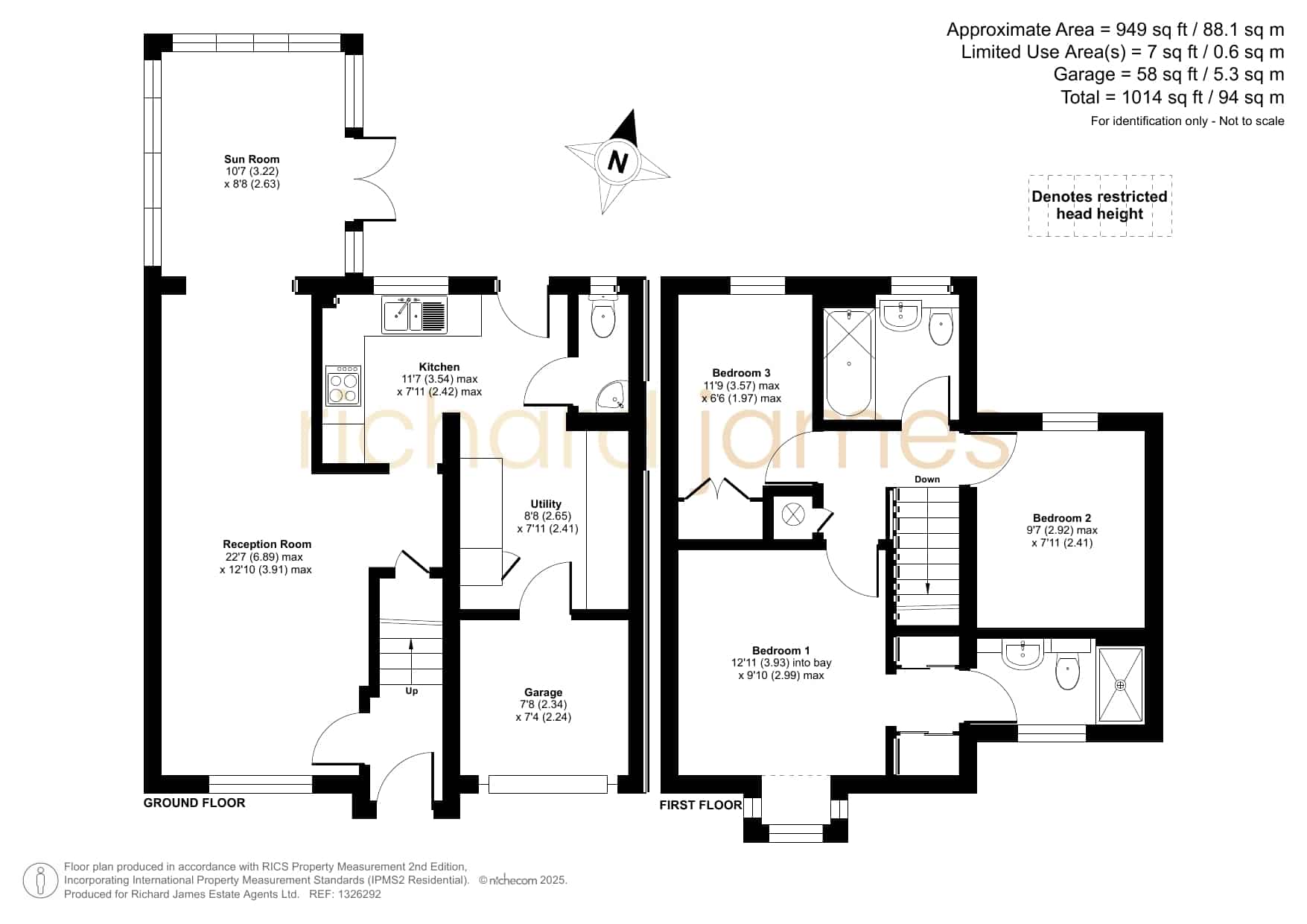
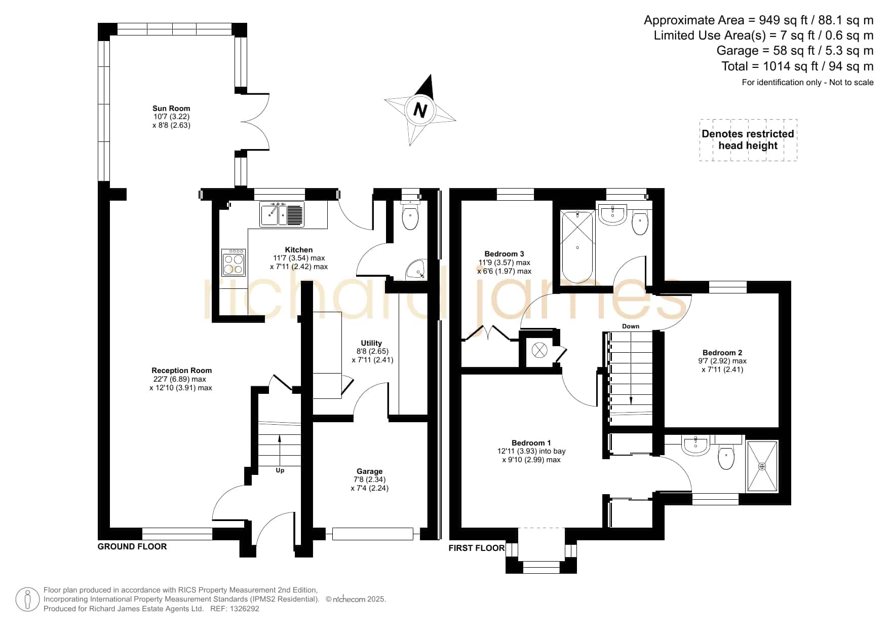
Located on the ever-popular Highdown Way in St Andrews Ridge, this beautifully presented three-bedroom semi-detached home offers spacious, modern living in a quiet and family-friendly setting.

The ground floor features a welcoming entrance hallway, a generous living room that flows into a bright sun room extension, and a stylish modern kitchen. The kitchen has been extended into part of the garage to provide a handy utility area and also benefits from a downstairs WC.

Upstairs, there are two double bedrooms and a third single bedroom with fitted wardrobes. The principal bedroom boasts its own en-suite shower room, while a modern family bathroom serves the remaining rooms.

Outside, you’ll find a well-maintained rear garden, ideal for relaxing or entertaining. The property also includes driveway parking and a partially converted garage, perfect for storage or additional space. There are also solar panels (owned, not leased!) that heat the water in the house, with the surplus being sold back to the grid.

A fantastic opportunity to secure a versatile family home in a desirable location close to schools, shops, and green spaces.


Council Tax Band: D

Property Documents

epc.png

Floor Plans

Floorplan
image

Description:

Contact Information

View Listings
North Swindon Estate Agents

Enquire About This Property

Mortgage Calculator

Monthly
  • Deposit
  • Loan Amount
  • Monthly Mortgage Payment
£
%
%

Similar Listings

Compare listings

Compare
North Swindon Estate Agents
  • North Swindon Estate Agents

Book a valuation with us

Please fill in the simple form and we will contact you to arrange a no-obligation valuation on your property as soon as we receive the details.

Not quite ready for a valuation? 

Thank you for signing up and referring a friend

Your details have been submitted successfully.