Hungerford Close, The Prinnels, Swindon, SN5

  • Offers Over £425,000
Hungerford Close, The Prinnels, Swindon, SN5
For Sale West Swindon
Hungerford Close, The Prinnels, Swindon, SN5
Hungerford Close, The Prinnels, Swindon, SN5
  • Offers Over £425,000

Overview

  • House
  • Property Type
  • 5
  • Bedrooms
  • 3
  • Bathrooms

what3words Logowhat3words Property Location: accented.rant.dummy

Description

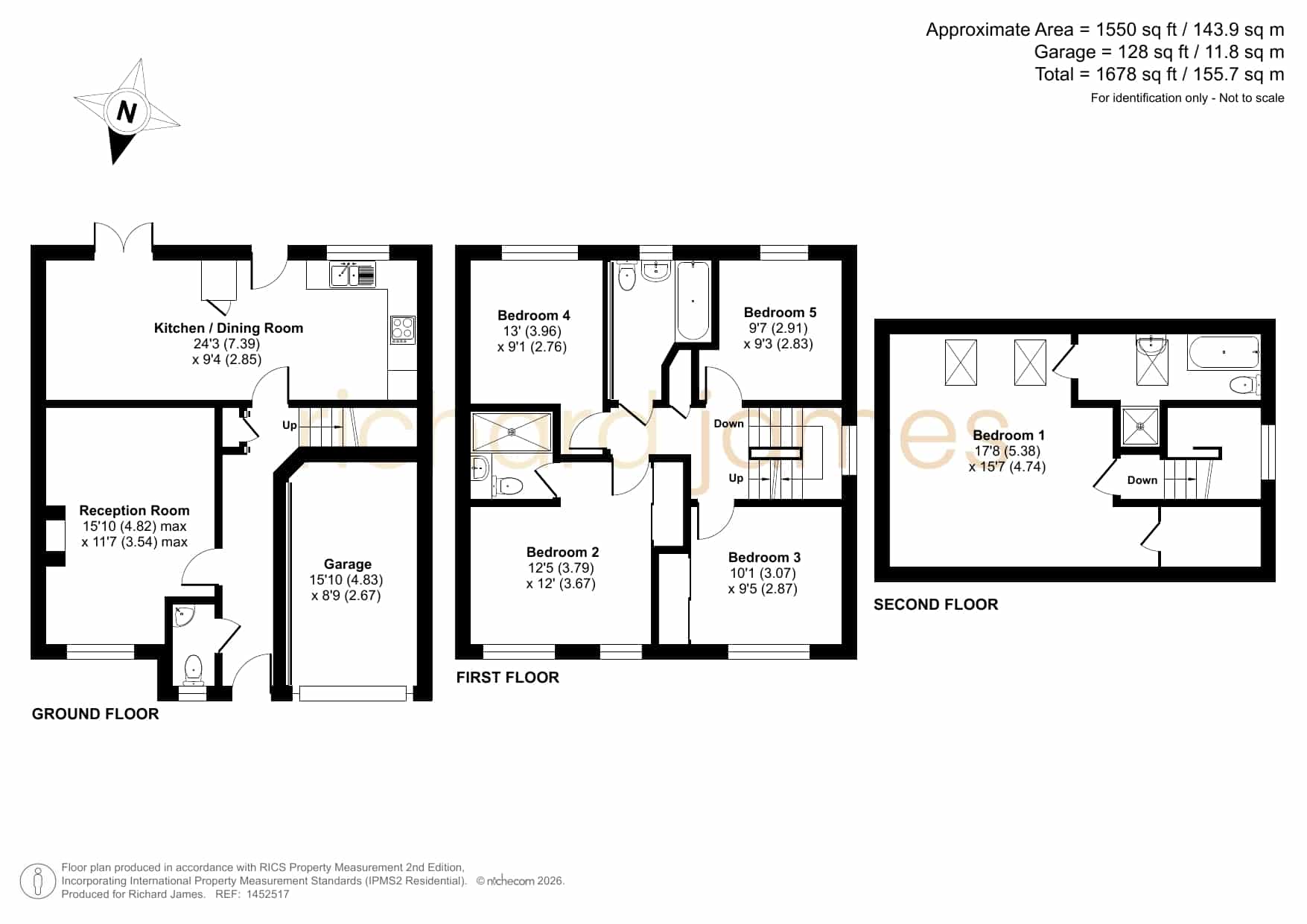
Tucked away in a peaceful corner position and fronting onto a pleasant green, this substantial five bedroom detached family home enjoys an enviable setting in Hungerford Close, within the highly sought-after area of The Prinnels, West Swindon. Perfectly suited for growing families, the property is ideally located just a short walk from Lydiard Park, Lydiard Park Academy, local shops and amenities, while also offering excellent access to Junction 16 of the M4.

The accommodation is both generous and versatile throughout. On the ground floor, a welcoming entrance hall leads to a convenient cloakroom/W.C, a spacious living room, and an impressive kitchen/dining room positioned at the rear of the property. This fantastic family space enjoys views over the garden and direct access outside, making it ideal for everyday living and entertaining alike.
The first floor continues to impress, featuring a large second bedroom complete with fitted wardrobes and a private en-suite shower room. There is a further double bedroom with fitted wardrobes, two additional well-proportioned bedrooms, and a modern family bathroom.

Occupying the entire second floor is the standout main bedroom suite, offering excellent space, and a luxurious en-suite shower room with a four-piece bathroom suite, creating a perfect private retreat.

Externally, the property boasts a spacious and thoughtfully designed rear garden, ideal for family life and social gatherings. The garden includes a patio seating and barbecue area, a generous lawn, a shed/summerhouse, a pergola with additional seating, and gated side access.

To the front, a good-sized driveway provides off-road parking for multiple vehicles, along with access to the garage.

This is a superb opportunity to acquire a large, well-located family home in one of West Swindon’s most desirable residential areas.


Council Tax Band: F

Video

Floor Plans

Floorplan
image

Description:

Contact Information

View Listings

Enquire About This Property

Mortgage Calculator

Monthly
  • Deposit
  • Loan Amount
  • Monthly Mortgage Payment
£
%
%

Similar Listings

Compare listings

Compare
Jack Rogers
  • Jack Rogers

Book a valuation with us

Please fill in the simple form and we will contact you to arrange a no-obligation valuation on your property as soon as we receive the details.

Not quite ready for a valuation? 

Thank you for signing up and referring a friend

Your details have been submitted successfully.