Hylder Close, Woodhall Park, Swindon, SN2

  • Guide Price £175,000
Hylder Close, Woodhall Park, Swindon, SN2
Sold STC North Swindon
Hylder Close, Woodhall Park, Swindon, SN2
Hylder Close, Woodhall Park, Swindon, SN2
  • Guide Price £175,000

Description

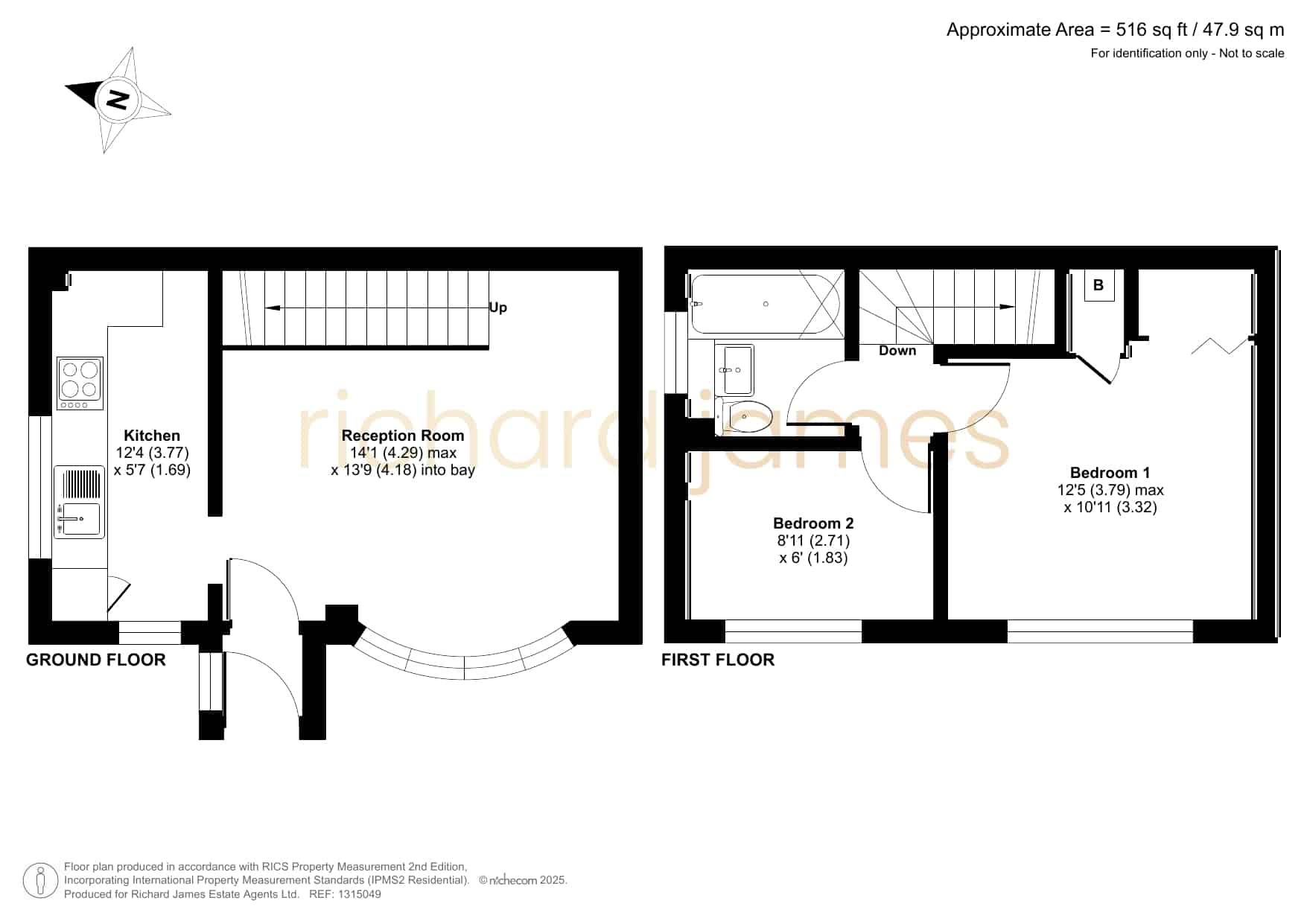
A delightful two-bedroom terraced house offering 516 sq. ft. of well-designed living space, this property is set within a peaceful location surrounded by attractive green field views, creating a sense of space and tranquility while still being close to local amenities and transport links.

A delightful two-bedroom terraced offering 516 sq. ft. of well-designed living space, this property is set within a peaceful location surrounded by attractive green field views, creating a sense of space and tranquility while still being close to local amenities and transport links. Arranged over two floors, the ground floor comprises a welcoming reception room with a charming bay window that fills the space with natural light, and a modern kitchen fitted with practical storage and appliance space. Upstairs, the property offers a generous main bedroom, a versatile second bedroom that can be used as a study or guest room, and a contemporary bathroom. With its thoughtful layout, character features, and the added appeal of its open green surroundings, this home is an excellent choice for first-time buyers, professionals, or investors seeking a property with both charm and convenience.


Council Tax Band: TBC

Floor Plans

Floorplan
image

Description:

Contact Information

View Listings
North Swindon Estate Agents

Enquire About This Property

This property has now sold subject to contract. To view my other listings, click here.

Mortgage Calculator

Monthly
  • Deposit
  • Loan Amount
  • Monthly Mortgage Payment
£
%
%

Similar Listings

Compare listings

Compare
North Swindon Estate Agents
  • North Swindon Estate Agents

Book a valuation with us

Please fill in the simple form and we will contact you to arrange a no-obligation valuation on your property as soon as we receive the details.

Not quite ready for a valuation? 

Thank you for signing up and referring a friend

Your details have been submitted successfully.