Kingshill Road, Old Town, Swindon, SN1

  • Offers Over £270,000
Kingshill Road, Old Town, Swindon, SN1
Sold STC Old Town Swindon
Kingshill Road, Old Town, Swindon, SN1
Kingshill Road, Old Town, Swindon, SN1
  • Offers Over £270,000

Overview

  • House
  • Property Type
  • 3
  • Bedrooms
  • 1
  • Bathroom

what3words Logowhat3words Property Location: highs.called.successes

Description

This bay fronted, three bedroom terrace home is well located on Kingshill Road in Old Town and would suit a range of buyers from professional couples to families due to its good condition throughout, its generous living space, its three bedrooms plus its fantastic rear garden.

This property is located just a short walk from Swindon Train Station and provides easy access to J16 of the M4 aswell as easy access to Wood Street in Old Town and Commonweal School.

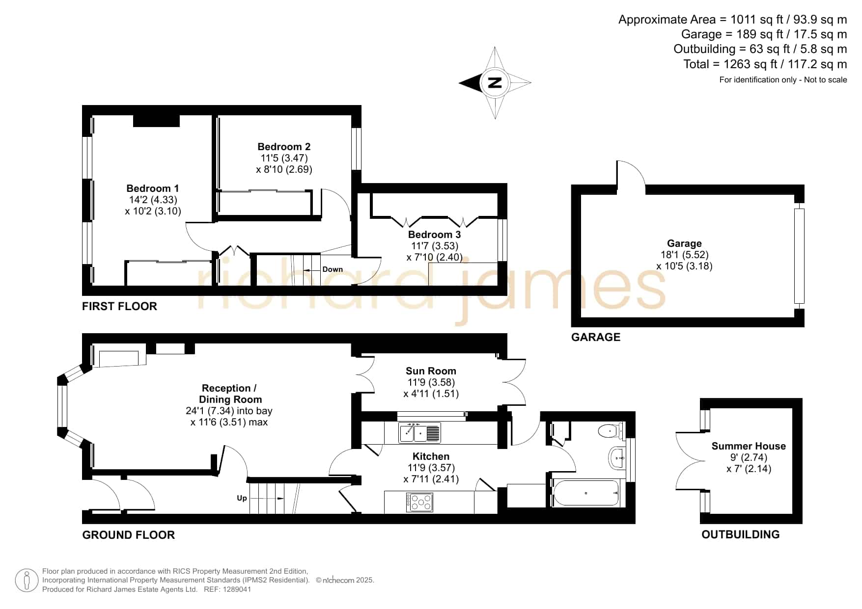
The ground floor living accommodation comprises; Entrance hall ,a bay fronted living room which is open to the dining room, sun room, a modern kitchen, inner lobby plus a modern bathroom.

The first floor offers; first floor landing, a generous main bedroom with fitted wardrobes, bedroom two also with fitted wardrobes and bedroom three which is currently being used as a dressing room and again has fitted wardrobes.

To the rear is an enclosed landscaped rear garden with a patio seating and barbecue area with an artificial lawn with a summer house looking onto it. There is also a detached garage at the rear of the garden accessed via rear lane.


Council Tax Band: TBC

Floor Plans

Floorplan
image

Description:

Contact Information

View Listings

Enquire About This Property

This property has now sold subject to contract. To view my other listings, click here.

Mortgage Calculator

Monthly
  • Deposit
  • Loan Amount
  • Monthly Mortgage Payment
£
%
%

Similar Listings

Compare listings

Compare
Jack Rogers
  • Jack Rogers

Book a valuation with us

Please fill in the simple form and we will contact you to arrange a no-obligation valuation on your property as soon as we receive the details.

Not quite ready for a valuation? 

Thank you for signing up and referring a friend

Your details have been submitted successfully.