Land West Of Happy Acre, Kingsdown Lane

  • Guide Price £300,000
Land West Of Happy Acre, Kingsdown Lane
For Sale Land & New Homes Swindon Town Centre
Land West Of Happy Acre, Kingsdown Lane
Land West Of Happy Acre, Kingsdown Lane
  • Guide Price £300,000

Description

A rare opportunity to acquire 0.64 acres of land with full planning permission for two detached dwellings (S/25/0086), offering an excellent development opportunity on Kingsdown Lane, Blunsdon.

Blunsdon is a well-regarded village situated to the north of Swindon, offering a strong sense of community alongside excellent connectivity. The site benefits from convenient access to local amenities, reputable schools, and major transport routes including the A419.

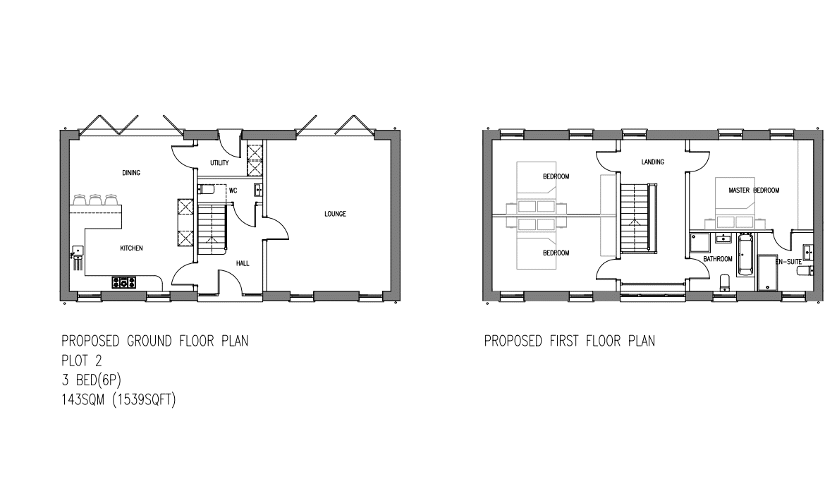
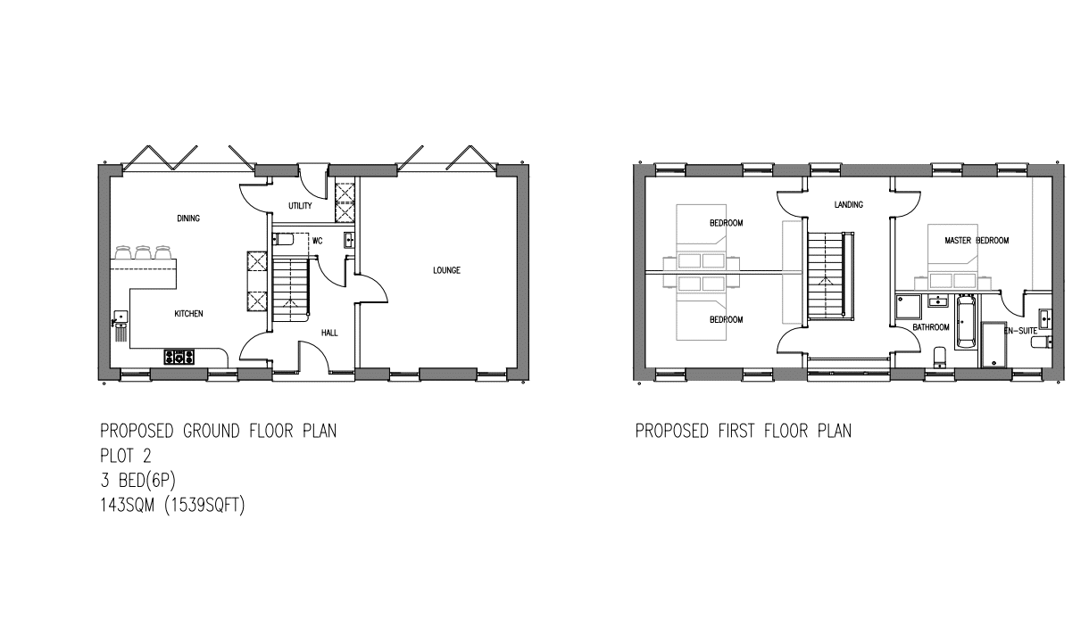
Accommodation Overview.

Plot 1:

• 5‑bedroom detached home
• Approx. 2,325 sq ft
• Double carport

Plot 2:

• 3‑bedroom detached home
• Approx. 1,539 sq ft
• Single carport

Agent Note; Site visits are to be accompanied via the selling agent. All bids must be submitted in writing by 12 noon on 10th April to Ellis Smith.


Council Tax Band: TBC

Contact Information

View Listings

Enquire About This Property

Mortgage Calculator

Monthly
  • Deposit
  • Loan Amount
  • Monthly Mortgage Payment
£
%
%

Similar Listings

Compare listings

Compare
Ellis Smith
  • Ellis Smith

Book a valuation with us

Please fill in the simple form and we will contact you to arrange a no-obligation valuation on your property as soon as we receive the details.

Not quite ready for a valuation? 

Thank you for signing up and referring a friend

Your details have been submitted successfully.