Longcot Road, Shrivenham, Swindon, SN6

  • Guide Price £375,000
Longcot Road, Shrivenham, Swindon, SN6
For Sale Village & Country Homes Highworth and Surrounding Villages
Longcot Road, Shrivenham, Swindon, SN6
Longcot Road, Shrivenham, Swindon, SN6
  • Guide Price £375,000

Description

**GUIDE PRICE £375,000 – £385,000 **
Charming Grade II Listed cottage in Shrivenham, blending period character with modern updates. Features two bedrooms, spacious lounge, extended ground floor, and the largest garden on the row with summer house, workshop & studio. Steps from the High Street’s shops, cafés, pubs & amenities.

**GUIDE PRICE £375,000 – £385,000 **
Tucked away just off Shrivenham’s lively High Street, this picture-perfect Grade II Listed thatched cottage combines all the period charm you would expect with thoughtful modern updates and a cleverly extended ground floor. Inside, the home has been beautifully restored, blending traditional character with contemporary comfort.

The spacious lounge, with its exposed beams, inglenook fireplace and unmistakable heritage feel, flows seamlessly into a well-fitted kitchen and pantry. The extended ground floor—complete with underfloor heating throughout—also offers a flexible second bedroom and a stylish shower room. Upstairs, the principal bedroom provides a cosy retreat, complete with its own bathroom and built-in storage. The loft is easily accessed with fitted ladder and boarding.

One of the cottage’s standout features is its unusually large rear garden for this central location, offering a peaceful setting for entertaining, gardening or simply unwinding outdoors. A workshop, studio and summer house add extra versatility—ideal as a reading nook, home office, or a space to enjoy evenings with friends by the pizza oven.

Practical details have been carefully addressed too: the thatch is scheduled for renewal next summer, already paid for by the current owner. On-street parking is available to the front, and the property sits just a short stroll from Shrivenham’s array of shops, cafés, pubs and local services.

The village itself offers a rich selection of amenities, from everyday essentials such as a post office and GP surgery to leisure highlights including a golf club, St Andrew’s historic church, the Royal Army Chaplains’ Museum and beautiful countryside walks. A new primary school and strong community spirit further add to its appeal.

Key Features:

Accessible boarded loft space
Gas central heating
Mains drainage, water and electricity
On-street parking
Grade II Listed
Freehold

This enchanting home presents a rare opportunity to enjoy the best of village life in one of Shrivenham’s most sought-after settings.


Council Tax Band: D

Property Documents

epc.png

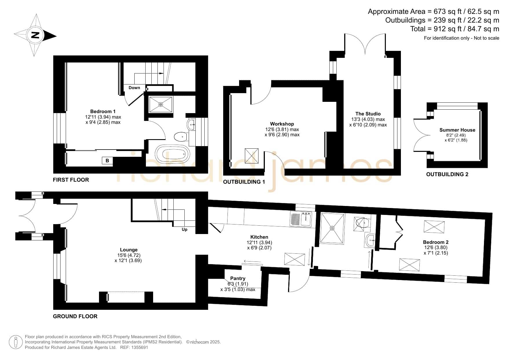
Floor Plans

Floorplan
image

Description:

Contact Information

View Listings
Charlotte Oxley-Partington

Enquire About This Property

Mortgage Calculator

Monthly
  • Deposit
  • Loan Amount
  • Monthly Mortgage Payment
£
%
%

Compare listings

Compare
Charlotte Oxley-Partington
  • Charlotte Oxley-Partington

Book a valuation with us

Please fill in the simple form and we will contact you to arrange a no-obligation valuation on your property as soon as we receive the details.

Not quite ready for a valuation? 

Thank you for signing up and referring a friend

Your details have been submitted successfully.