Manor Orchard, Cricklade, SN6

  • Offers In The Region Of £375,000
Manor Orchard, Cricklade, SN6
For Sale Village & Country Homes Highworth and Surrounding Villages
Manor Orchard, Cricklade, SN6
Manor Orchard, Cricklade, SN6
  • Offers In The Region Of £375,000

Overview

  • House
  • Property Type
  • 3
  • Bedrooms
  • 1
  • Bathroom

what3words Logowhat3words Property Location: submerge.nibbled.pods

Description

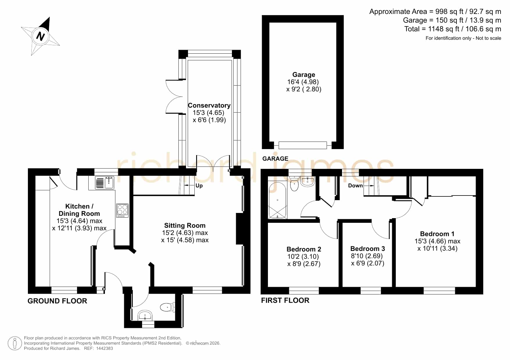
Three-bedroom detached home with single garage and driveway, located in a quiet cul-de-sac within walking distance of Cricklade’s bustling high street.

This attractive detached home offers well-balanced accommodation, combining comfortable living spaces with a practical layout ideally suited to modern lifestyles.

The kitchen/dining room is a bright and versatile space, perfect for everyday living. The kitchen is fitted with a range of units, providing ample storage and worktop space for cooking and preparation. Open to the kitchen, the dining area comfortably accommodates a family-sized table, creating an ideal setting for both casual meals and entertaining. With a pleasant outlook and plenty of natural light, this room forms a welcoming and sociable hub of the home.

The sitting room is a generous and inviting space, ideal for relaxing or hosting guests, with ample room for furnishings. Its connection to the conservatory enhances the natural light and creates a lovely sense of openness throughout.

Upstairs, the principal bedroom is well-proportioned and bright, offering plenty of space for bedroom furniture and providing a comfortable retreat. Two further bedrooms and the family bathroom suite complete this floor.

Overall, the property presents an excellent opportunity for those seeking a spacious home with a layout well suited to both everyday living and entertaining.

The property further benefits from a single garage and driveway parking, gated rear garden access, gas central heating, and mains utilities.

Situated in the historic town of Cricklade, this property enjoys a charming setting on the edge of the Cotswolds and within easy reach of the beautiful surrounding countryside. Cricklade offers a range of local amenities including shops, pubs, and everyday services, while more extensive facilities can be found in nearby Swindon.

The area is well regarded for its schooling, with options such as St Sampson’s Church of England Primary School and The Deanery Church of England Academy serving the local community. The town also benefits from good transport links, making it a popular choice for commuters and families alike.

Accompanied viewings by appointment only. Contact selling agent to arrange your visit…


Council Tax Band: TBC

Property Documents

epc.png

Floor Plans

Floorplan
image

Description:

Contact Information

View Listings

Enquire About This Property

Mortgage Calculator

Monthly
  • Deposit
  • Loan Amount
  • Monthly Mortgage Payment
£
%
%

Compare listings

Compare
Barrie Brocks
  • Barrie Brocks

Book a valuation with us

Please fill in the simple form and we will contact you to arrange a no-obligation valuation on your property as soon as we receive the details.

Not quite ready for a valuation? 

Thank you for signing up and referring a friend

Your details have been submitted successfully.