Marlborough Gardens, Faringdon, SN7

  • Guide Price £350,000
Marlborough Gardens, Faringdon, SN7
Sold STC Village & Country Homes Faringdon and Surrounding Villages
Marlborough Gardens, Faringdon, SN7
Marlborough Gardens, Faringdon, SN7
  • Guide Price £350,000

Overview

  • House
  • Property Type
  • 5
  • Bedrooms
  • 1
  • Bathroom

what3words Logowhat3words Property Location: grumbling.meals.dads

Description

A well proportioned, five bedroom semi-detached family home situated within walking distance to various amenities.

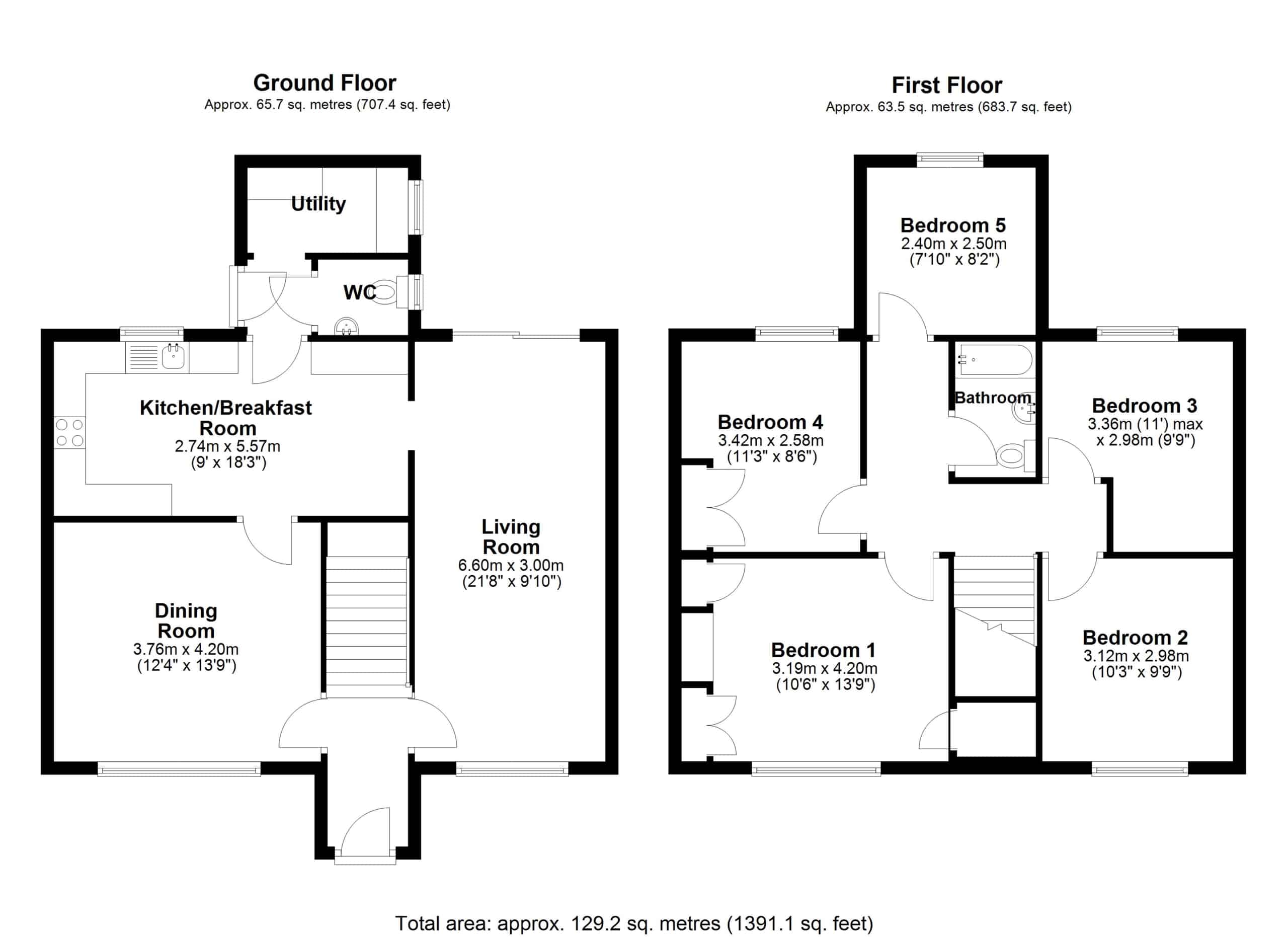
Offered to the market is this spacious five bedroom family home, which has been extended, offering flexible living accommodation throughout comprising of five bedrooms of which four are doubles, a spacious kitchen/breakfast room, separate dining room, spacious lounge, utility, WC and a family bathroom.

Externally, the property benefits from a generous enclosed rear garden featuring both lawn and patio areas, alongside gated access to the side. Various amenities such as supermarkets, doctors, cafes and schools are all within walking distance making this an ideal family home.

The property is connected to mains gas, electricity and water. Maximum broadband speeds available approx. 2000mbps.


Council Tax Band: C

Floor Plans

Floorplan
image

Description:

Contact Information

View Listings
Dominic Mullen

Enquire About This Property

Mortgage Calculator

Monthly
  • Deposit
  • Loan Amount
  • Monthly Mortgage Payment
£
%
%

Compare listings

Compare
Dominic Mullen
  • Dominic Mullen

Book a valuation with us

Please fill in the simple form and we will contact you to arrange a no-obligation valuation on your property as soon as we receive the details.

Not quite ready for a valuation? 

Thank you for signing up and referring a friend

Your details have been submitted successfully.