Marlborough Road, Swindon, SN3

  • Guide Price £300,000
Marlborough Road, Swindon, SN3
For Sale Old Town Swindon
Marlborough Road, Swindon, SN3
Marlborough Road, Swindon, SN3
  • Guide Price £300,000

Overview

  • House
  • Property Type
  • 3
  • Bedrooms
  • 3
  • Bathrooms

what3words Logowhat3words Property Location: expose.banks.save

Description

**NO ONWARD CHAIN**
Welcome to Marlborough Road – A great opportunity for any first time buyer, investor looking for a great rental property or someone downsizing and staying local.

**NO ONWARD CHAIN**
Situated in the highly sought-after Old Town area of Swindon, this well-presented three-bedroom terraced home is offered to the market with No Onward Chain, making it an ideal purchase for first-time buyers, families, or investors alike.

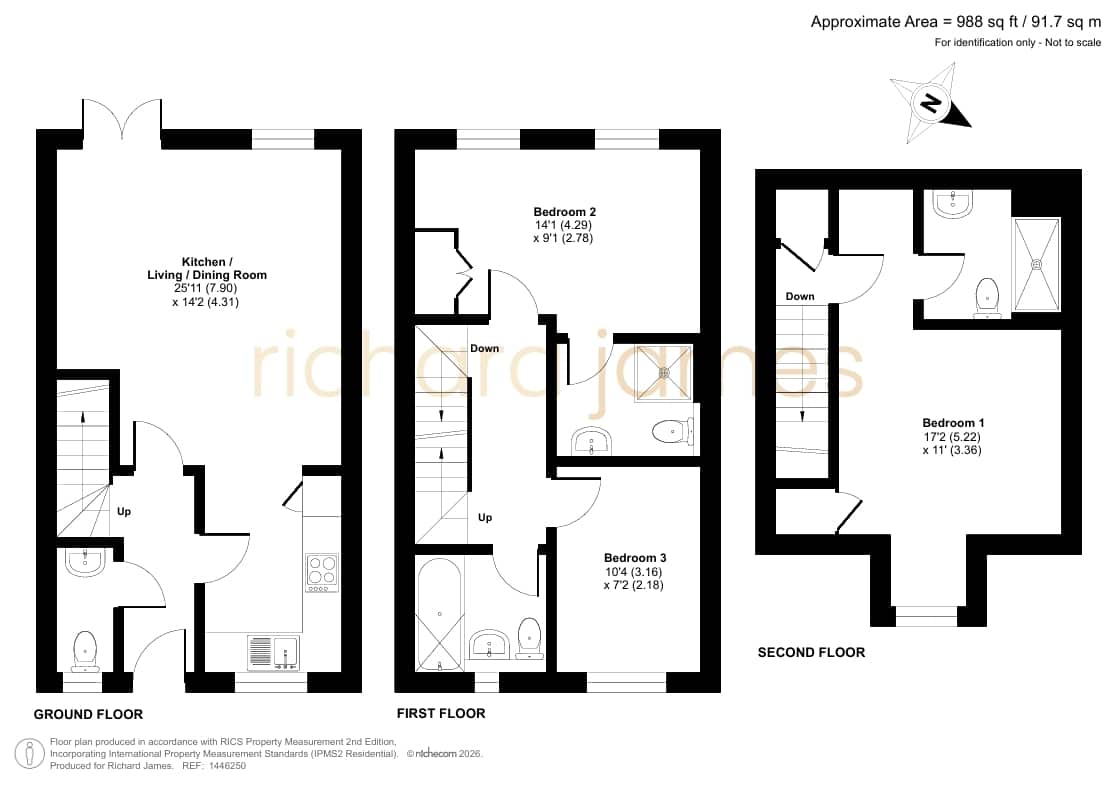
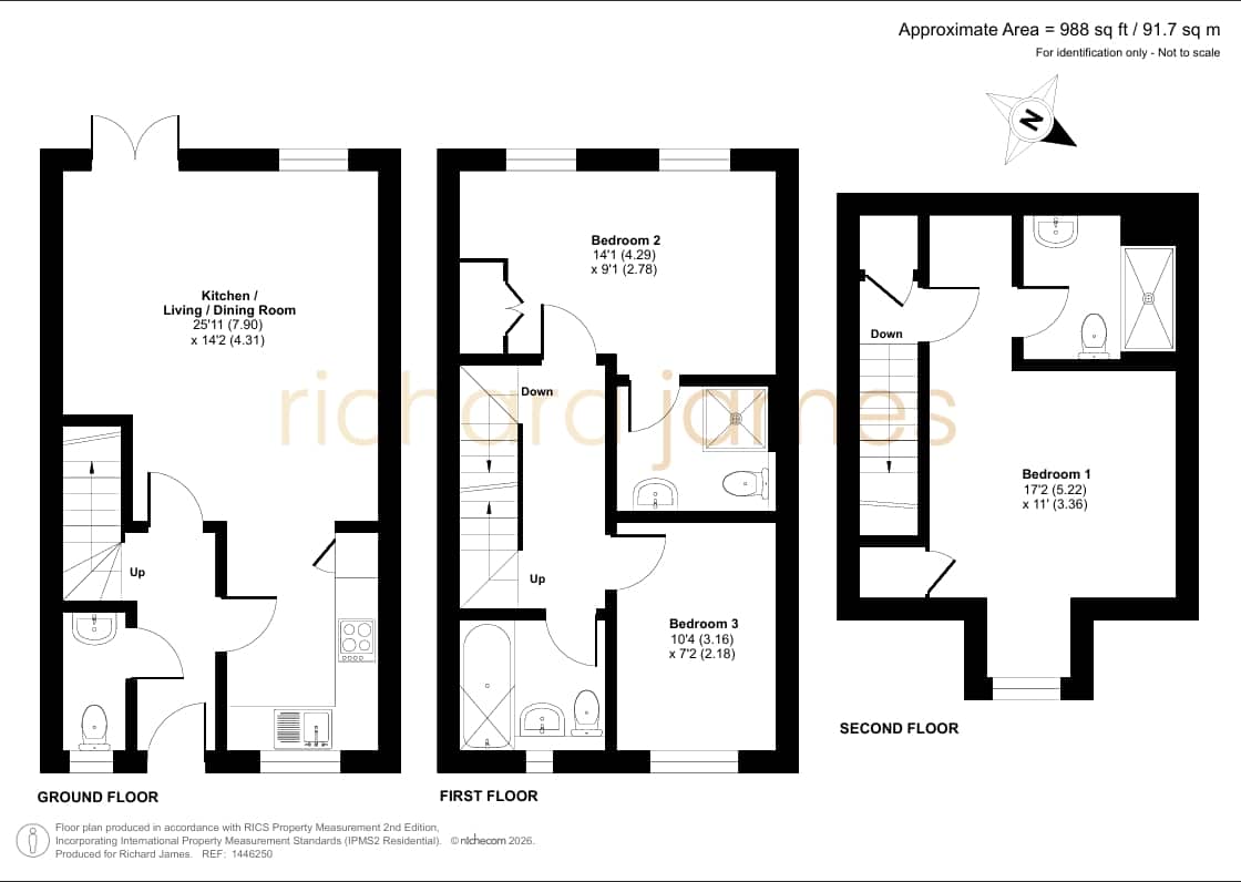
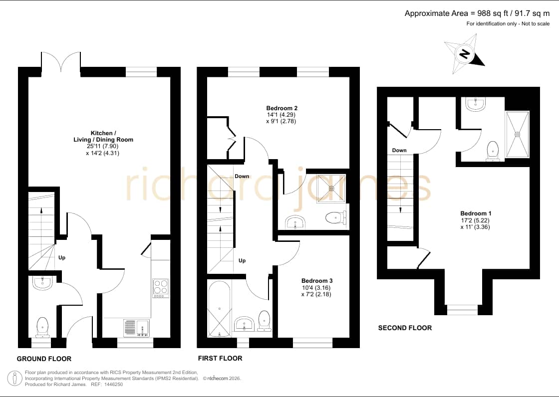
The property offers a well-balanced layout, featuring a comfortable living space and a modern kitchen/dining area, perfect for both everyday living and entertaining. Upstairs, there are three generously sized bedrooms, including a spacious master bedroom benefiting from its own private ensuite, providing a touch of convenience and privacy.

Externally, the property enjoys the added advantage of off-road parking to the rear, a valuable feature in this popular location.

Marlborough Road is ideally positioned within walking distance of Old Town’s vibrant range of shops, cafes, bars, and amenities, as well as offering excellent access to local schools and transport links.

An excellent opportunity to acquire a chain-free home in a prime location—early viewing is highly recommended.


Council Tax Band: TBC

Property Documents

epc.png

Floor Plans

Floorplan
image

Description:

Contact Information

View Listings
Old Town Estate Agents

Enquire About This Property

Mortgage Calculator

Monthly
  • Deposit
  • Loan Amount
  • Monthly Mortgage Payment
£
%
%

Similar Listings

Compare listings

Compare
Old Town Estate Agents
  • Old Town Estate Agents

Book a valuation with us

Please fill in the simple form and we will contact you to arrange a no-obligation valuation on your property as soon as we receive the details.

Not quite ready for a valuation? 

Thank you for signing up and referring a friend

Your details have been submitted successfully.