Nore Marsh Road, Royal Wootton Bassett, Swindon, SN4

  • Guide Price £650,000
Nore Marsh Road, Royal Wootton Bassett, Swindon, SN4
For Sale Village & Country Homes Royal Wootton Bassett and Surrounding Villages
Nore Marsh Road, Royal Wootton Bassett, Swindon, SN4
Nore Marsh Road, Royal Wootton Bassett, Swindon, SN4
  • Guide Price £650,000

Overview

  • House
  • Property Type
  • 4
  • Bedrooms
  • 3
  • Bathrooms

what3words Logowhat3words Property Location: attic.lies.caller

Description

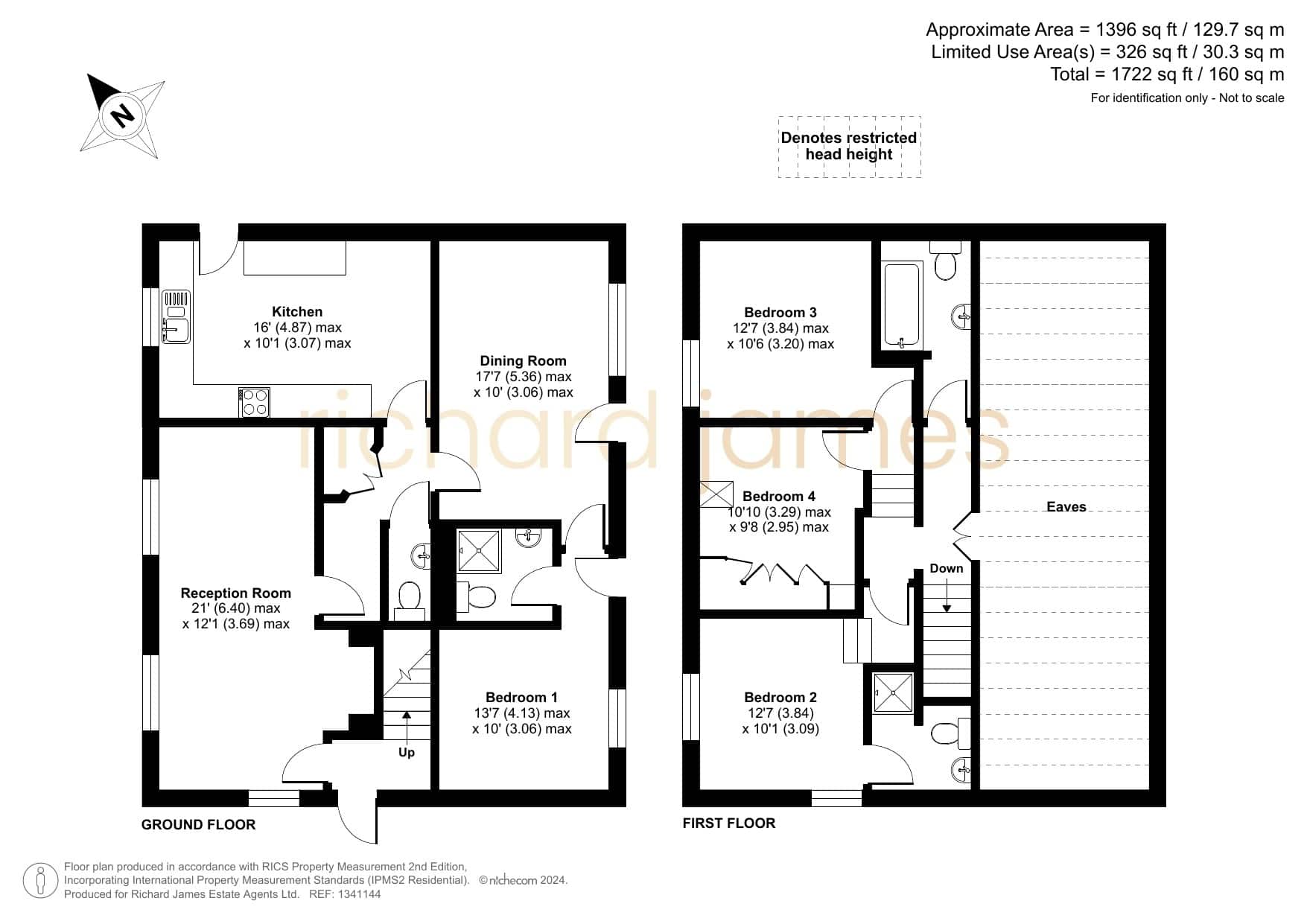
A rare and character-filled home, once part of the neighbouring Manor House, blending period charm with modern comfort. Set behind a long private gated driveway, this spacious and flexible residence offers four double bedrooms, three bathrooms, three reception areas, and a generous kitchen/breakfast room. Features include vaulted ceilings, exposed beams, and extensive storage. The private rear garden is complemented by ample driveway parking. The property sits in a fantastic location within walking distance of the towns shops and amenities. Offered with no onward chain for a smooth move.

The Coach House is a rare and truly individual residence, steeped in history and charm, originally forming part of the neighbouring Manor House. The property is within walking distance of the towns shops and amenities. Every corner of this exceptional property tells a story, with character features beautifully blended with modern comforts. Offering remarkably spacious and adaptable accommodation, it is perfectly suited to a variety of lifestyles — from growing families to those seeking an impressive home to entertain in. Offered with no onward chain for a smooth move. The property sits in a fantastic location within walking distance of the towns shops and amenities

Inside, the property unfolds across two levels, beginning with a welcoming entrance hallway that immediately hints at the warmth and elegance within. The dual-aspect living room is a showpiece in itself — flooded with natural light. A separate formal dining room offers the perfect setting for hosting, while the kitchen/breakfast room is generously proportioned, complete with integrated appliances and ample space for informal family meals.

Also on the ground floor, a highly versatile double bedroom with a beautifully refitted en-suite bathroom offers flexibility for use as a guest suite, office, or hobby room — ideal for multi-generational living or visiting friends. A cloakroom completes this level.

Upstairs, the sense of space and charm continues with three further generous double bedrooms, all showcasing stunning vaulted ceilings and exposed beams. The principal bedroom benefits from its own en-suite, while a stylish family bathroom serves the remaining rooms. Bedroom four includes fitted storage, and there is also extensive eaves storage, ensuring practicality matches beauty.

Externally, the property occupies a wonderful plot, with the frontage making an unforgettable first impression — a long, private, gated driveway leads you towards the home, creating a true sense of arrival. The rear garden is both private and expansive, predominantly laid to lawn with a patio area perfect for summer dining. Additional parking to the side complements the off-road driveway parking for multiple vehicles at the front.

A home of this calibre, with such history, presence, and flexibility, rarely becomes available. Situated in the vibrant market town of Royal Wootton Bassett and within easy reach of the M4 and Swindon railway station, providing direct links to London Paddington, the property is perfectly positioned for modern family life. Excellent local schools, including Lydiard Millicent CofE Primary and Bradon Forest, along with Cirencester College, are nearby. The town also offers a range of shops, cafes, restaurants, and leisure facilities, all set within a friendly and welcoming community. The Coach House is more than just a place to live. Welcome Home…


Council Tax Band: E

Property Documents

thecoachhousebrochure
epc.png

Floor Plans

Floorplan
image

Description:

Contact Information

View Listings

Enquire About This Property

Mortgage Calculator

Monthly
  • Deposit
  • Loan Amount
  • Monthly Mortgage Payment
£
%
%

Compare listings

Compare
Daisy Costin
  • Daisy Costin

Book a valuation with us

Please fill in the simple form and we will contact you to arrange a no-obligation valuation on your property as soon as we receive the details.

Not quite ready for a valuation? 

Thank you for signing up and referring a friend

Your details have been submitted successfully.