Northern Road, Rodbourne Cheney, Swindon, SN2

  • Guide Price £190,000
Northern Road, Rodbourne Cheney, Swindon, SN2
Sold STC Old Town Swindon
Northern Road, Rodbourne Cheney, Swindon, SN2
Northern Road, Rodbourne Cheney, Swindon, SN2
  • Guide Price £190,000

Overview

  • House
  • Property Type
  • 3
  • Bedrooms
  • 1
  • Bathroom

what3words Logowhat3words Property Location: loves.chips.nail

Description

** GUIDE PRICE £190,000 – £210,000 **

This three bedroom semi-detached home is well located on Northern Road and would suit a range of buyers from first time buyers to families. Why not come take a look?

** THIS PROPERTY IS OF A NON-STANDARD CONSTRUCTION** **Chat with our Mortgage Team for more details**

** GUIDE PRICE £190,000 – £210,000 ***

This three bedroom semi-detached home is well located on the popular Northern Road in Rodbourne Cheney and would suit a range of buyers from first time buyers to families.

This generously sized home offers good living space, spacious bedrooms plus a large rear garden.

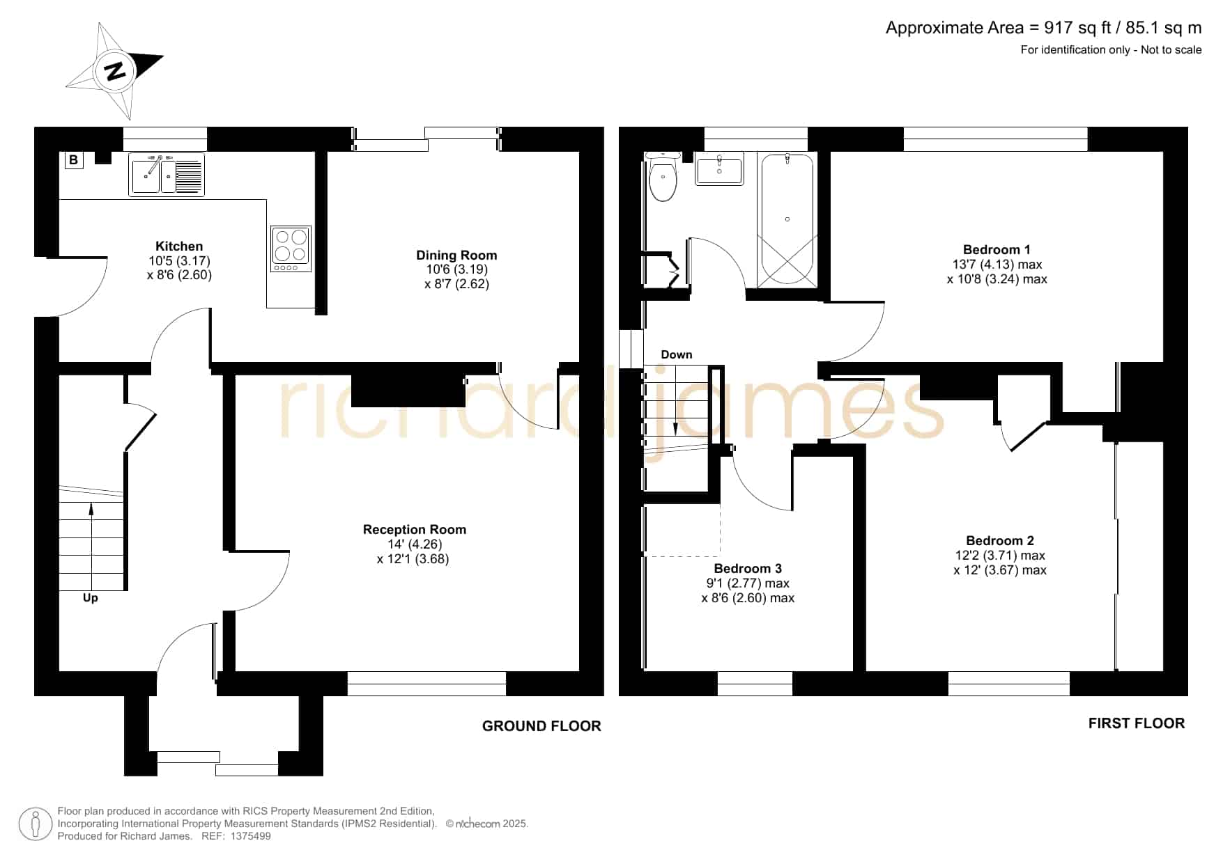
The ground floor living accommodation comprises; Entrance porch, entrance hall, a good size living room, the kitchen with new boiler and the dining room which offer potential to knock through to create a kitchen/dining room.

The first floor offers; first floor landing, a good sized bedroom with fitted wardrobe, bedroom two which also has fitted wardrobes, bedroom three plus the family bathroom.

To the rear is an enclosed rear garden with a patio seating area leading to a good sized lawn and shed.

To the front is the driveway which offers parking for multiple vehicles.


Council Tax Band: TBC

Property Documents

epc.png

Floor Plans

Floorplan
image

Description:

Contact Information

View Listings
Old Town Estate Agents

Enquire About This Property

This property has now sold subject to contract. To view my other listings, click here.

Mortgage Calculator

Monthly
  • Deposit
  • Loan Amount
  • Monthly Mortgage Payment
£
%
%

Similar Listings

Compare listings

Compare
Old Town Estate Agents
  • Old Town Estate Agents

Book a valuation with us

Please fill in the simple form and we will contact you to arrange a no-obligation valuation on your property as soon as we receive the details.

Not quite ready for a valuation? 

Thank you for signing up and referring a friend

Your details have been submitted successfully.