Northern Road, Rodbourne Cheney, Swindon, SN2

  • Guide Price £310,000
Northern Road, Rodbourne Cheney, Swindon, SN2
For Sale Old Town Swindon
Northern Road, Rodbourne Cheney, Swindon, SN2
Northern Road, Rodbourne Cheney, Swindon, SN2
  • Guide Price £310,000

Overview

  • House
  • Property Type
  • 3
  • Bedrooms
  • 1
  • Bathroom

what3words Logowhat3words Property Location: loads.summer.banks

Description

GUIDE PRIDE £310,000-£325,000

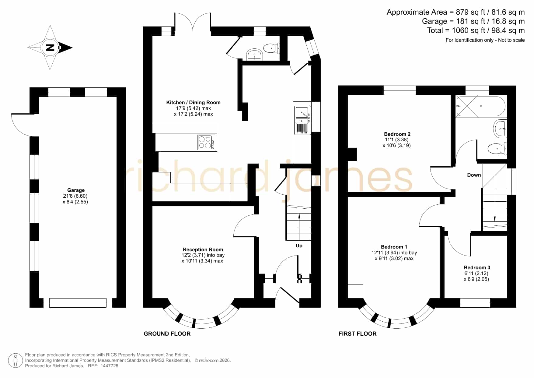
This fully renovated bayfronted home set on the ever popular Northern Road is one not to be missed, offered to the market with no onward chain.

Upon entry the porch area will lead on to a welcoming entrance hall with a beautiful new black steel and oak banister/balustrade adding bold contrast and flow, softened by oak for a balanced contemporary look setting the tone for the rest of the property. The lounge is located on your left and boasts new carpets alongside the bay window. The rear of the property is very impressive with a newly fitted kitchen with breakfast bar and plenty of space for a dining table alongside. A utility cupboard has conveniently been created just off the kitchen. The modern w/c completes the downstairs space.

GUIDE PRIDE £310,000-£325,000

This fully renovated bayfronted home set on the ever popular Northern Road is one not to be missed, offered to the market with no onward chain.

Upon entry the porch area will lead on to a welcoming entrance hall with a beautiful new black steel and oak banister/balustrade adding bold contrast and flow, softened by oak for a balanced contemporary look setting the tone for the rest of the property. The lounge is located on your left and boasts new carpets alongside the bay window. The rear of the property is very impressive with a newly fitted kitchen with breakfast bar and plenty of space for a dining table alongside. A utility cupboard has conveniently been created just off the kitchen. The modern w/c completes the downstairs space.

Upstairs is home to two double bedrooms, the master again with the benefit of the bay window allowing plenty of light to flow through the upstairs space. The third room is a good size single or perfect office space. All of the bedrooms, stairs and landing have been newly carpeted. The main bathroom like the rest of the home has been recently upgraded allowing for a simple move.

Externally there is ample driveway parking to the front. The rear garden is of great size and has the added benefit of the garage.

Please get in touch to book your viewings.


Council Tax Band: D

Property Documents

epc.png

Floor Plans

Floorplan
image

Description:

Contact Information

View Listings

Enquire About This Property

Mortgage Calculator

Monthly
  • Deposit
  • Loan Amount
  • Monthly Mortgage Payment
£
%
%

Similar Listings

Compare listings

Compare
Jordan Cobb
  • Jordan Cobb

Book a valuation with us

Please fill in the simple form and we will contact you to arrange a no-obligation valuation on your property as soon as we receive the details.

Not quite ready for a valuation? 

Thank you for signing up and referring a friend

Your details have been submitted successfully.