Old Town, Swindon, SN1

  • Guide Price £470,000
Old Town, Swindon, SN1

Overview

  • Flat/Apartment
  • Property Type
  • 4
  • Bedrooms
  • 4
  • Bathrooms

what3words Logowhat3words Property Location: nods.dads.fuels

Description

An excellent opportunity to acquire a fully let freehold block, well-positioned on a prominent corner plot along Victoria Road. The property is being sold subject to tenancies, with management via Richard James.

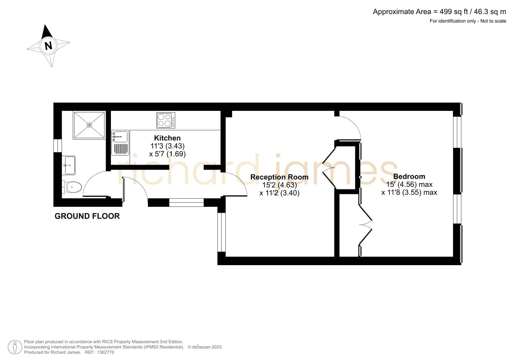
The accommodation comprises four self-contained apartments:

Two one-bedroom apartments on the ground floor, each with private access.

Two split-level two-bedroom apartments arranged across the first floor and loft space, providing spacious layouts and good natural light.

To the rear, the property benefits from off-street parking, enhancing tenant appeal and long-term rental stability.

This is a turnkey investment generating immediate income, with strong demand in the local rental market and future potential for uplift through refurbishment or reconfiguration (subject to planning).


Council Tax Band: TBC

Floor Plans

Floorplan
image

Description:

Floorplan
image

Description:

Floorplan
image

Description:

Floorplan
image

Description:

Floorplan
image

Description:

Contact Information

View Listings

Enquire About This Property

Mortgage Calculator

Monthly
  • Deposit
  • Loan Amount
  • Monthly Mortgage Payment
£
%
%

Similar Listings

Compare listings

Compare
Ellis Smith
  • Ellis Smith

Book a valuation with us

Please fill in the simple form and we will contact you to arrange a no-obligation valuation on your property as soon as we receive the details.

Not quite ready for a valuation? 

Thank you for signing up and referring a friend

Your details have been submitted successfully.