Pavenhill Courtyard, Upper Pavenhill, Purton, SN5

  • Offers In Excess Of £425,000
Pavenhill Courtyard, Upper Pavenhill, Purton, SN5
For Sale Village & Country Homes West Swindon
Pavenhill Courtyard, Upper Pavenhill, Purton, SN5
Pavenhill Courtyard, Upper Pavenhill, Purton, SN5
  • Offers In Excess Of £425,000

Overview

  • House
  • Property Type
  • 3
  • Bedrooms
  • 2
  • Bathrooms

what3words Logowhat3words Property Location: crumble.houseboat.swerves

Description

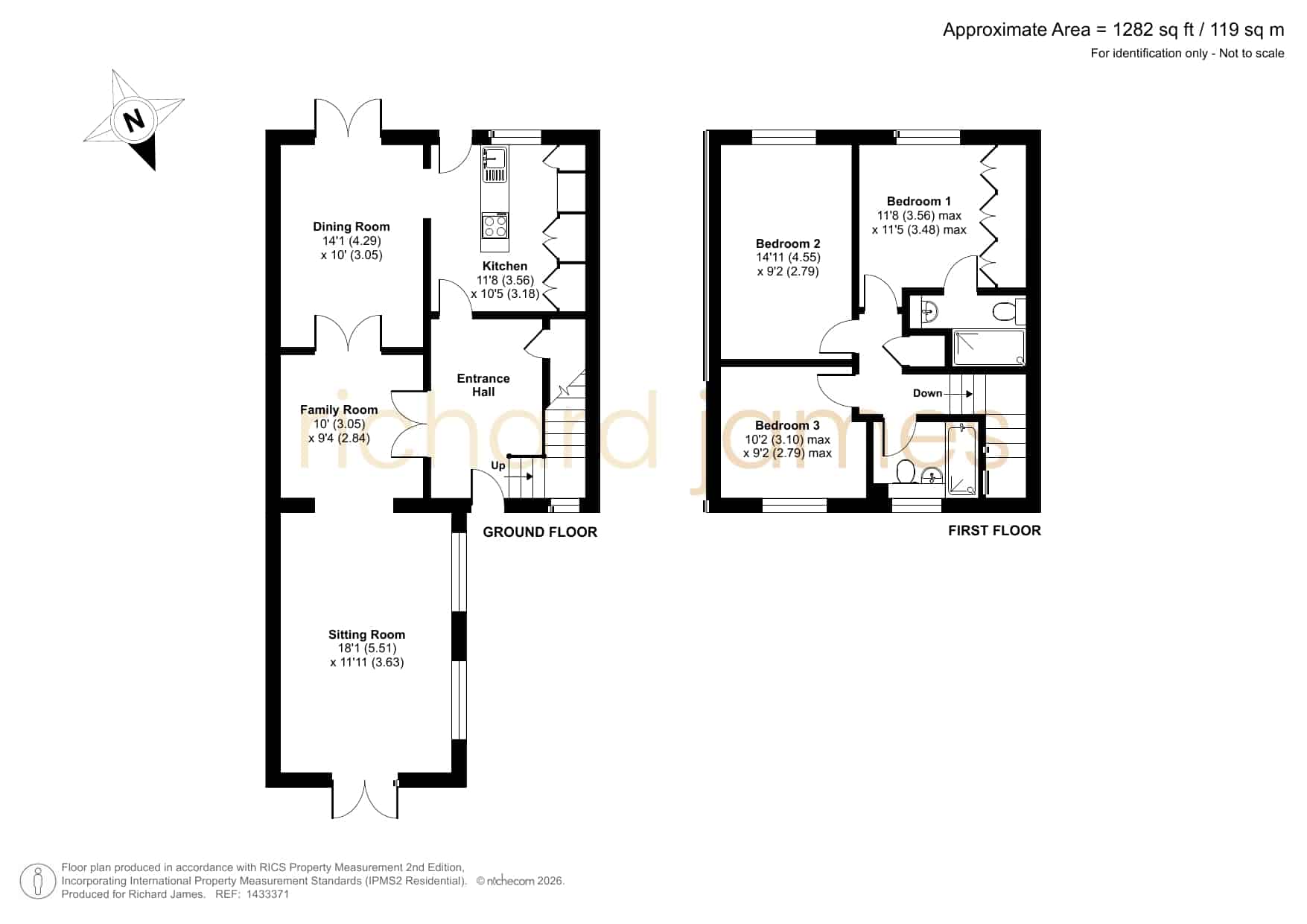
Nestled within the highly sought-after Pavenhill Courtyard in Purton, this beautifully presented three-bedroom semi-detached family home offers the perfect blend of style, privacy and modern living. Tucked away in a quiet, exclusive setting, the property has been finished to the highest of standards throughout, making it a truly move‑in‑ready home.

Upon entering, you’re greeted by a spacious and welcoming entrance hall that sets the tone for the exceptional accommodation ahead. The stunning contemporary kitchen sits proudly at the heart of the home — a true centrepiece — offering sleek design, high-quality finishes and an ideal space for cooking and entertaining. Flowing from the kitchen is a well‑proportioned dining room, perfect for family meals, along with a family room that can be adapted to suit your lifestyle.

To the rear, the large living room provides a warm and inviting space to relax, featuring French doors opening directly onto the garden, flooding the room with natural light and creating a seamless indoor–outdoor connection.

Upstairs, the first-floor landing leads to three generous bedrooms. The main bedroom boasts fitted wardrobes and a stylish en‑suite shower room, offering a touch of luxury. Bedroom two is also an excellent size, making it ideal for guests or growing families, while bedroom three serves beautifully as a child’s room, guest room or home office. A modern family bathroom completes the upper floor.

Outside, the home continues to impress. The private wrap‑around garden is fully enclosed and thoughtfully designed for year-round enjoyment. It features a patio seating area perfect for barbecues, a decked and covered pergola area ideal for relaxed evening drinks, and a large lawn offering plenty of space for play or outdoor lounging.

Further enhancing this fantastic home is the generous parking, including a carport with tandem parking for multiple vehicles—a rare and valuable benefit in such a sought‑after location.


Council Tax Band: D

Video

Floor Plans

Floorplan
image

Description:

Contact Information

View Listings

Enquire About This Property

Mortgage Calculator

Monthly
  • Deposit
  • Loan Amount
  • Monthly Mortgage Payment
£
%
%

Similar Listings

Compare listings

Compare
Barrie Brocks
  • Barrie Brocks

Book a valuation with us

Please fill in the simple form and we will contact you to arrange a no-obligation valuation on your property as soon as we receive the details.

Not quite ready for a valuation? 

Thank you for signing up and referring a friend

Your details have been submitted successfully.