Phoebe Way, Oakhurst, Swindon, SN25

  • Guide Price £315,000
Phoebe Way, Oakhurst, Swindon, SN25
Sold STC North Swindon
Phoebe Way, Oakhurst, Swindon, SN25
Phoebe Way, Oakhurst, Swindon, SN25
  • Guide Price £315,000

Overview

  • House
  • Property Type
  • 4
  • Bedrooms
  • 3
  • Bathrooms

what3words Logowhat3words Property Location: kickbacks.kick.perfected

Description

**GUIDE PRICE £315,000 – £335,000**

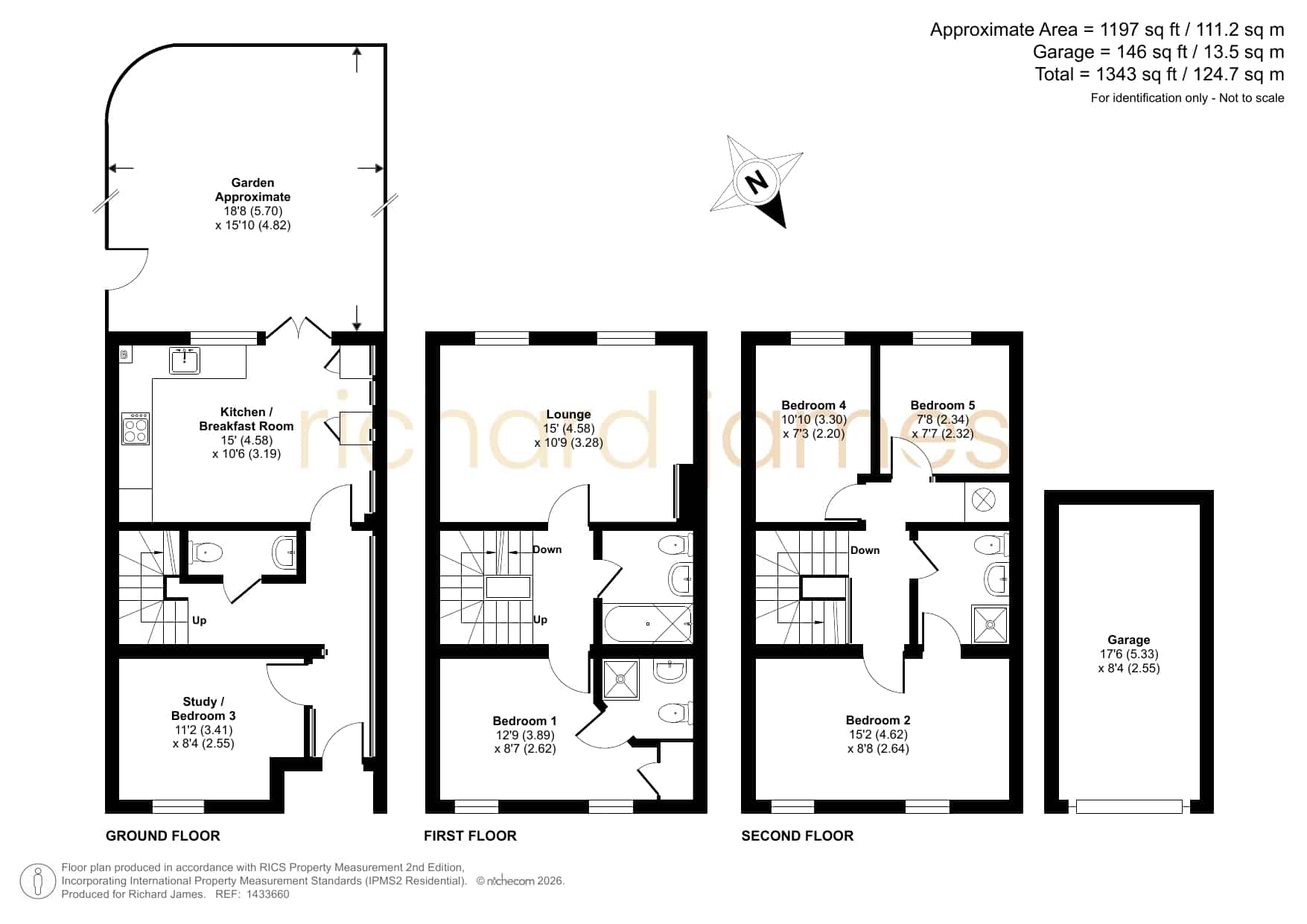
Tucked away in a quieter part of Oakhurst, this four bedroom semi detached townhouse offers a really practical layout that works well for modern family life.

As you come in, the ground floor gives you a flexible space is currently set up as a bedroom but could easily be used as a study if needed. To the rear, there’s a modern re fitted kitchen/breakfast room with space to sit and eat, along with a downstairs cloakroom.

**GUIDE PRICE £315,000 – £335,000**

Tucked away in a quieter part of Oakhurst, this four bedroom semi detached townhouse offers a really practical layout that works well for modern family life.

As you come in, the ground floor gives you a flexible space is currently set up as a bedroom but could easily be used as a study if needed. To the rear, there’s a modern re fitted kitchen/breakfast room with space to sit and eat, along with a downstairs cloakroom.

The middle floor is where the main living space sits, with a good sized lounge that feels separate from the rest of the house. The main bedroom is also on this level and benefits from its own en suite, alongside a family bathroom.

Up on the top floor, there’s a larger double bedroom with a Jack and Jill en suite that also connects to the landing, plus two further single rooms. It’s a layout that works really well if you’ve got children and want to keep that space together on one level.

Outside, the rear garden is set out as a courtyard with patio, so it’s easy to maintain and ideal if you don’t want the upkeep of a bigger garden. The property also comes with a garage and driveway parking.

Overall, it’s a well-balanced home in a tucked away spot, offering plenty of flexibility depending on how you want to use the space.
Call now to arrange your viewing!


Council Tax Band: D

Property Documents

Floor Plans

Floorplan
image

Description:

Contact Information

View Listings
Isobel Bowles

Enquire About This Property

This property has now sold subject to contract. To view my other listings, click here.

Mortgage Calculator

Monthly
  • Deposit
  • Loan Amount
  • Monthly Mortgage Payment
£
%
%

Similar Listings

Compare listings

Compare
Isobel Bowles
  • Isobel Bowles

Book a valuation with us

Please fill in the simple form and we will contact you to arrange a no-obligation valuation on your property as soon as we receive the details.

Not quite ready for a valuation? 

Thank you for signing up and referring a friend

Your details have been submitted successfully.