Piernik Close, Haydon End, Swindon, SN25

  • Guide Price £270,000
Piernik Close, Haydon End, Swindon, SN25
Sold STC North Swindon
Piernik Close, Haydon End, Swindon, SN25
Piernik Close, Haydon End, Swindon, SN25
  • Guide Price £270,000

Overview

  • House
  • Property Type
  • 3
  • Bedrooms
  • 2
  • Bathrooms

what3words Logowhat3words Property Location: circle.novelists.dorm

Description

– GUIDE PRICE – £270,000 – £280,000 –

A well-presented and proportioned town house located in Haydon End, North Swindon. With versatile accommodation over three levels this home offers ample space for families.

– GUIDE PRICE – £270,000 – £280,000 –

A well-presented and proportioned town house located in Haydon End, North Swindon. With versatile accommodation over three levels this home offers ample space for families.
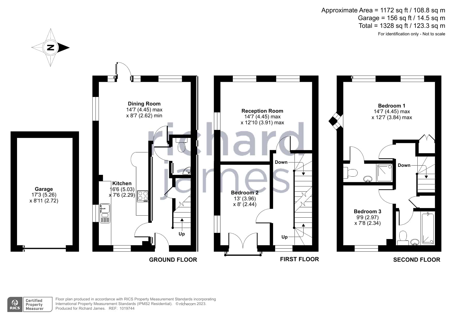
On the ground floor there is an open plan kitchen/ diner with separate entrance hall and cloakroom.
To the first floor, you’ll find a generous dual aspect lounge and the second bedroom, complete with Juliet balcony.
At the top of the home, the family bathroom and a further two bedrooms. One of which is the master, also boasting the luxury of an en-suite shower room.
Externally the rear garden is mostly decking, making for simple maintenance. There is also a single garage and allocated parking.
Haydon End is a fantastic location, with schools and local amenities such as the ever popular Orbital retail park just a short distance away, you couldn’t be better placed!

EPC: C
COUNCIL TAX: D


Council Tax Band: D

Property Documents

Floor Plans

Floorplan
image

Description:

Contact Information

View Listings
North Swindon Estate Agents

Enquire About This Property

This property has now sold subject to contract. To view my other listings, click here.

Mortgage Calculator

Monthly
  • Deposit
  • Loan Amount
  • Monthly Mortgage Payment
£
%
%

Similar Listings

Compare listings

Compare
North Swindon Estate Agents
  • North Swindon Estate Agents

Book a valuation with us

Please fill in the simple form and we will contact you to arrange a no-obligation valuation on your property as soon as we receive the details.

Not quite ready for a valuation? 

Thank you for signing up and referring a friend

Your details have been submitted successfully.