Description

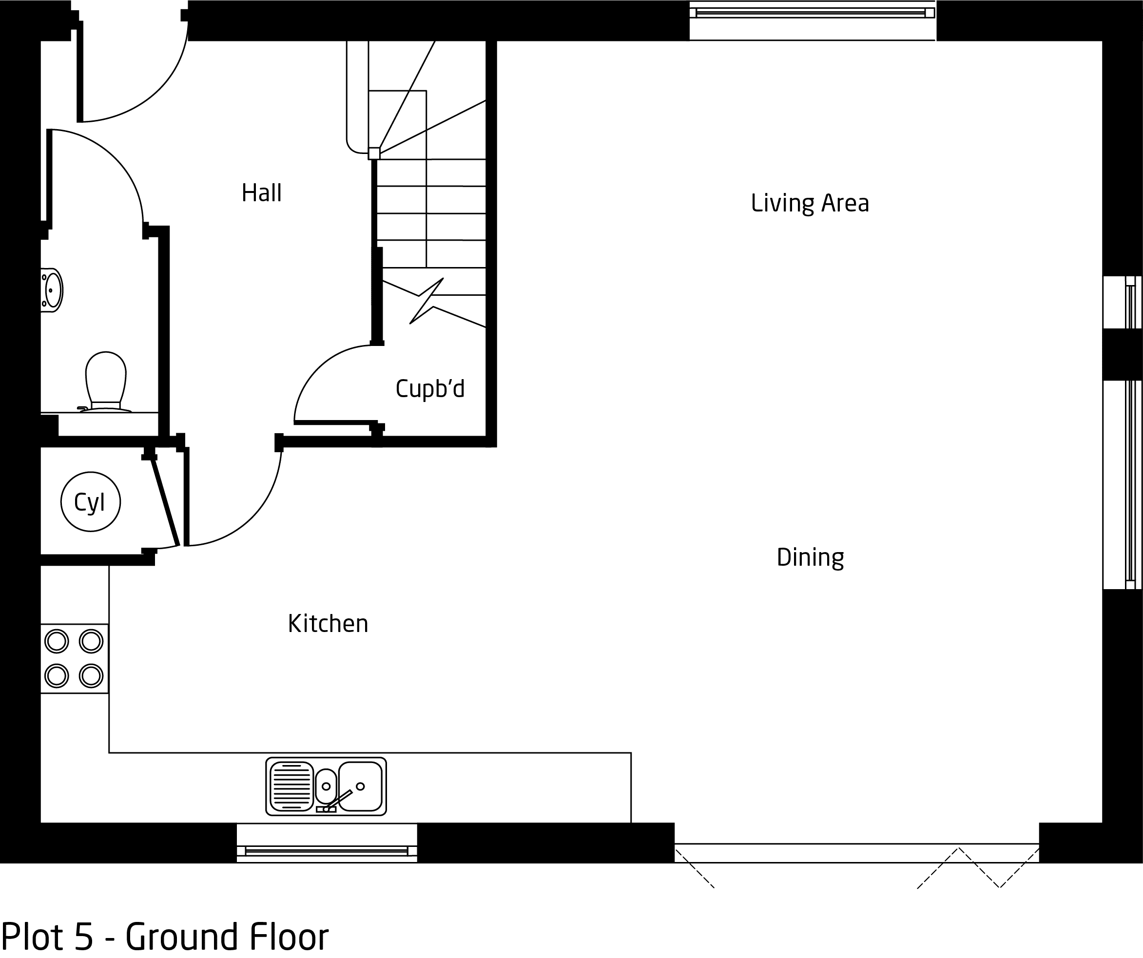
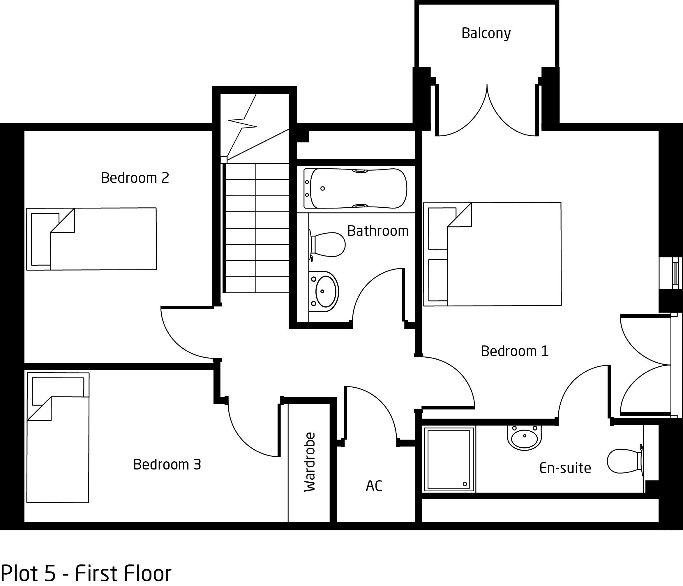
These three bed plots deliver charm, light, and flexibility across their mirrored layouts. Downstairs, the open-plan kitchen/dining/living spaces flow seamlessly to the private garden, offering an ideal setting for relaxing or entertaining. A cloakroom and built-in storage complete the ground floor in both plots. Upstairs, the standout feature are the private balconies accessed via the principal bedrooms – a tranquil space to start or end your day. The main bedrooms also benefit from ensuites. Two further bedrooms, a family bathroom, and useful airing cupboard round off these stylish, versatile homes. Plot 5 also benefits from it’s own car port.

*Imagery used for display only.


Council Tax Band: TBC

Floor Plans

Floorplan
image

Description:

Floorplan
image

Description:

Contact Information

View Listings
Land & New Homes Office
  • Land & New Homes Office

Enquire About This Property

Mortgage Calculator

Monthly
  • Deposit
  • Loan Amount
  • Monthly Mortgage Payment
£
%
%

Compare listings

Compare
Land & New Homes Office
  • Land & New Homes Office

Book a valuation with us

Please fill in the simple form and we will contact you to arrange a no-obligation valuation on your property as soon as we receive the details.

Not quite ready for a valuation? 

Thank you for signing up and referring a friend

Your details have been submitted successfully.