Rawdon Way, Faringdon, SN7

  • Guide Price £375,000
Rawdon Way, Faringdon, SN7

Overview

  • House
  • Property Type
  • 3
  • Bedrooms
  • 2
  • Bathrooms

what3words Logowhat3words Property Location: scary.optimists.workflow

Description

A unique opportunity to acquire a well presented, extended three bedroom family home with no onward chain, offering a garage & driveway parking, with a wrap around garden and plenty of potential.

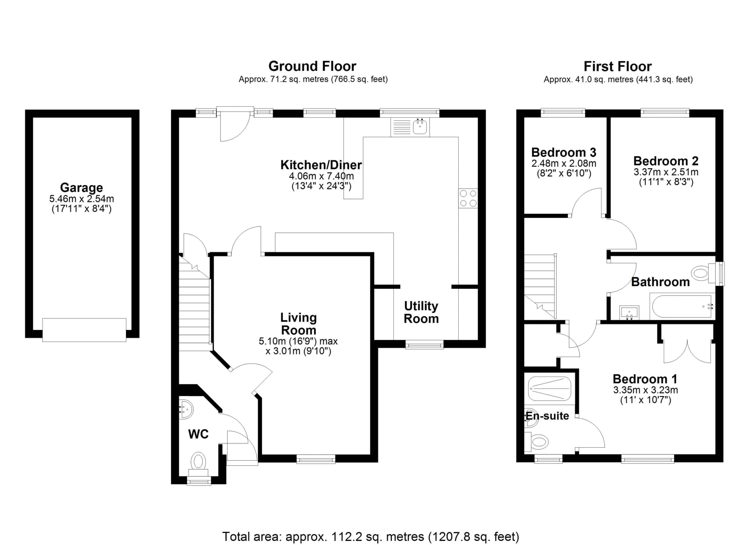
Offered with no onward chain is this spacious, three bedroom family home. Tucked away in a cul-de-sac location in Faringdon, within walking distance to various amenities including doctors, schools, cafe’s, supermarkets, public transport links and various other amenities, make this an ideal prospect for a wide variety of people. The internal accommodation comprises of an entrance hall, WC, living room, extended kitchen/diner, utility, family bathroom and three bedrooms of which the main bedroom accommodates an en-suite shower room. Externally, the property further benefits from a garage, driveway parking for two and a wrap around garden, featuring plenty of potential for extensions (STPP) or sheds/outbuildings to suit.

Faringdon is situated approx. 30 minute drive from Oxford, along with various bus routes including the S6 providing direct access to both Oxford and Swindon, of which both provide wider transport links to London Paddington via Oxford & Swindon Train stations.


Council Tax Band: TBC

Property Documents

epc.png

Floor Plans

Floorplan
image

Description:

Contact Information

View Listings
Dominic Mullen

Enquire About This Property

Mortgage Calculator

Monthly
  • Deposit
  • Loan Amount
  • Monthly Mortgage Payment
£
%
%

Compare listings

Compare
Dominic Mullen
  • Dominic Mullen

Book a valuation with us

Please fill in the simple form and we will contact you to arrange a no-obligation valuation on your property as soon as we receive the details.

Not quite ready for a valuation? 

Thank you for signing up and referring a friend

Your details have been submitted successfully.