Rawlins Park, Swindon Road, Avebury, SN8

  • Guide Price £170,000
Rawlins Park, Swindon Road, Avebury, SN8
For Sale Village & Country Homes Marlborough and Surrounding Villages
Rawlins Park, Swindon Road, Avebury, SN8
Rawlins Park, Swindon Road, Avebury, SN8
  • Guide Price £170,000

Overview

  • House
  • Property Type
  • 2
  • Bedrooms
  • 2
  • Bathrooms

what3words Logowhat3words Property Location: reward.latches.activates

Description

A spacious and well-situated park home, this property offers far more than just accommodation. With generous rooms, established gardens and a conservatory that brings the outside in, it provides the perfect canvas for buyers looking to add their own touch. Set within the calm and community-driven surroundings of Rawlins Park, yet with excellent links to nearby towns and countryside, it combines comfort, convenience and potential — a rare opportunity to create a home to enjoy for years to come.

Located within the peaceful and well-regarded Rawlins Park, this detached park home offers a spacious and flexible layout with plenty of scope to update and make your own. Set within mature surroundings, it provides a wonderful opportunity for those seeking a quieter pace of life while still being within easy reach of Marlborough and the surrounding Wiltshire countryside.

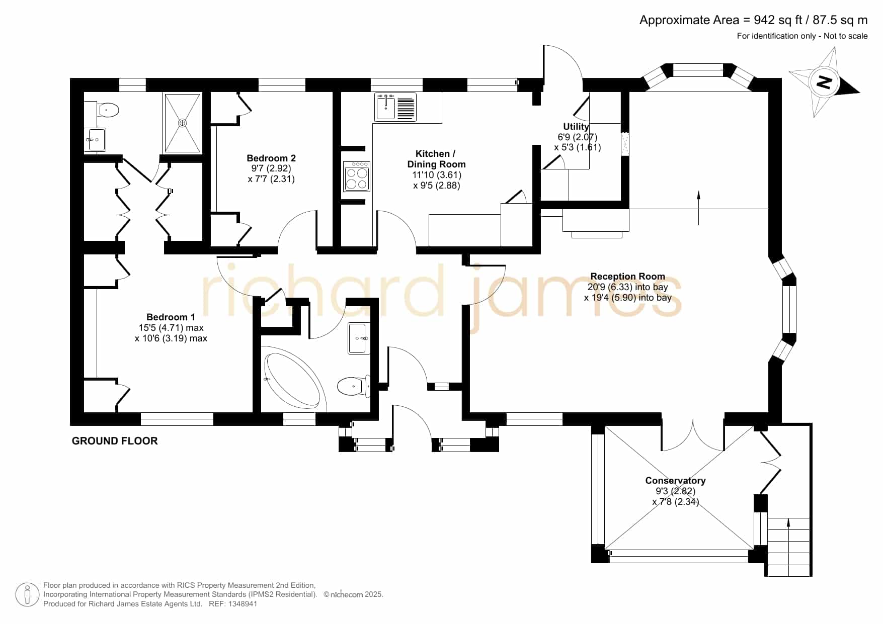
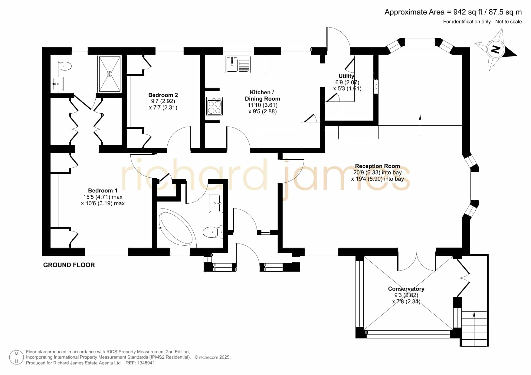
The accommodation includes a welcoming reception room with bay windows that fill the space with natural light, flowing nicely into a conservatory that overlooks the garden — a perfect spot to enjoy throughout the seasons. The kitchen/dining room sits at the heart of the home and is supported by a separate utility room. There are two bedrooms, with the main bedroom benefiting from fitted storage, alongside a well-sized bathroom.

Outside, the home is set within attractive gardens that provide both privacy and greenery. With some attention, the outdoor space could be transformed into a lovely retreat, ideal for relaxing or gardening. Parking is available within the development, adding to the practicality.

Rawlins Park itself is well established and offers a welcoming community feel, with residents enjoying a calm environment set away from the hustle and bustle. The location offers excellent access to Marlborough, Hungerford and Swindon, along with surrounding villages, countryside walks and local amenities.

This home presents a fantastic chance to secure a generous park home in a desirable setting, with the potential to refresh and create a property that perfectly matches your lifestyle.


Council Tax Band: TBC

Floor Plans

Floorplan
image

Description:

Contact Information

View Listings

Enquire About This Property

Mortgage Calculator

Monthly
  • Deposit
  • Loan Amount
  • Monthly Mortgage Payment
£
%
%

Compare listings

Compare
Alex Hornby
  • Alex Hornby

Book a valuation with us

Please fill in the simple form and we will contact you to arrange a no-obligation valuation on your property as soon as we receive the details.

Not quite ready for a valuation? 

Thank you for signing up and referring a friend

Your details have been submitted successfully.