Rodbourne, Swindon, SN2

  • Guide Price £150,000
Rodbourne, Swindon, SN2

Overview

  • Flat/Apartment
  • Property Type
  • 2
  • Bedrooms
  • 1
  • Bathroom

what3words Logowhat3words Property Location: lend.slug.vent

Description

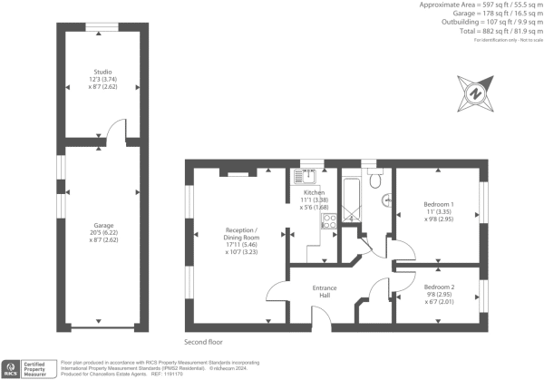
This property offers a well-planned layout with comfortable living spaces and practical features. The accommodation includes two bedrooms, a spacious lounge and dining room, and a separate kitchen. The bathroom is conveniently located near the bedrooms, with a hallway connecting all rooms for ease of access.

The lounge and dining room provide a generous open-plan space, ideal for both relaxation and entertaining. The kitchen is positioned off the living space, offering a practical area for cooking and everyday use.

Both bedrooms are well-proportioned, with the main bedroom offering extra space. The second bedroom is versatile, making it suitable for a guest room, study, or child’s bedroom.

In addition to the main living accommodation, the property benefits from garage and extra room, providing excellent storage, space for a home office or parking space.

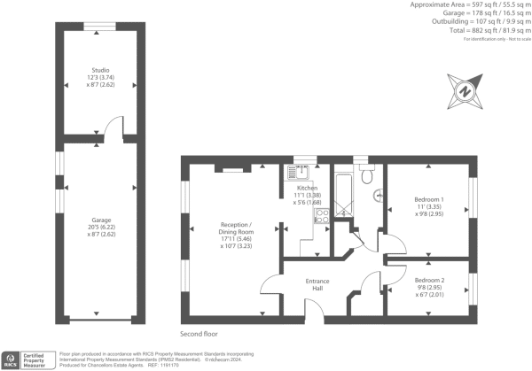
This property offers a well-planned layout with comfortable living spaces and practical features. The accommodation includes two bedrooms, a spacious lounge and dining room, and a separate kitchen. The bathroom is conveniently located near the bedrooms, with a hallway connecting all rooms for ease of access.

The lounge and dining room provide a generous open-plan space, ideal for both relaxation and entertaining. The kitchen is positioned separately, offering a practical area for cooking and everyday use.

Both bedrooms are well-proportioned, with the main bedroom offering extra space. The second bedroom is versatile, making it suitable for a guest room, study, or child’s bedroom.

In addition to the main living accommodation, the property benefits from garage and extra room, providing excellent storage, space for a home office or parking space.

This home combines functionality with comfortable living, making it a great option for a variety of buyers!

The property is a stone throw from the Swindon Designer outlet and nearby bus stops. Its also a ten minute walk to the Swindon Train Station, Town Center and Swindon’s Old Town.

Commuting wise its a short drive to the M4 and the A419.

Service charge – £1700 pa
Ground rent – £0
Lease length remaining – 131 years
EPC – C
Council tax – C


Council Tax Band: TBC

Property Documents

epc.png

Features

Floor Plans

Floorplan
image

Description:

Contact Information

View Listings

Enquire About This Property

This property has now sold subject to contract. To view my other listings, click here.

Mortgage Calculator

Monthly
  • Deposit
  • Loan Amount
  • Monthly Mortgage Payment
£
%
%

Similar Listings

Compare listings

Compare
Kelly Hucker
  • Kelly Hucker

Book a valuation with us

Please fill in the simple form and we will contact you to arrange a no-obligation valuation on your property as soon as we receive the details.

Not quite ready for a valuation? 

Thank you for signing up and referring a friend

Your details have been submitted successfully.