Russ Avenue, Faringdon, SN7

  • Guide Price £170,000
Russ Avenue, Faringdon, SN7

Overview

  • Flat/Apartment
  • Property Type
  • 1
  • Bedroom
  • 1
  • Bathroom

what3words Logowhat3words Property Location: trucked.irritable.openly

Description

A unique opportunity to purchase this spacious one bedroom, semi-detached Coach House, being sold with no onward chain and benefiting from a communal garden.

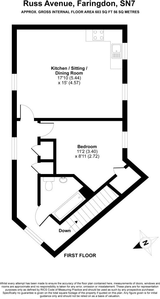
A rarely available, one bedroom, semi-detached coach house situated within a popular residential area of Faringdon. The internal accommodation comprises of over 600sq ft of bright and airy living space comprising of your own entrance to the ground floor, providing stairs up to the first floor accommodation featuring a spacious open plan living/dining area alongside a bathroom and spacious double bedroom with storage. Externally, the property benefits from a communal garden, alongside an allocated parking space.

Faringdon is situated approx. 30 minute drive from Oxford, along with various bus routes including the S6 providing direct access to both Oxford and Swindon, of which both provide wider transport links to London Paddington via Oxford & Swindon Train stations. Local amenities can be found within walking distance including Faringdon Market Place providing all your needs in approx a 10/15 minute walk away.


Council Tax Band: B

Property Documents

epc.png

Floor Plans

Floorplan
image

Description:

Contact Information

View Listings
Dominic Mullen

Enquire About This Property

Mortgage Calculator

Monthly
  • Deposit
  • Loan Amount
  • Monthly Mortgage Payment
£
%
%

Compare listings

Compare
Dominic Mullen
  • Dominic Mullen

Book a valuation with us

Please fill in the simple form and we will contact you to arrange a no-obligation valuation on your property as soon as we receive the details.

Not quite ready for a valuation? 

Thank you for signing up and referring a friend

Your details have been submitted successfully.