Sandbourne Road, Haydon End, Swindon, SN25

  • Guide Price £350,000
Sandbourne Road, Haydon End, Swindon, SN25
Sold STC North Swindon
Sandbourne Road, Haydon End, Swindon, SN25
Sandbourne Road, Haydon End, Swindon, SN25
  • Guide Price £350,000

Overview

  • House
  • Property Type
  • 4
  • Bedrooms
  • 2
  • Bathrooms

what3words Logowhat3words Property Location: costumed.fills.tweed

Description

A well-presented four-bedroom family home with driveway, garage and private rear garden, featuring a spacious sitting/dining room, kitchen/breakfast room and ensuite to the main bedroom.

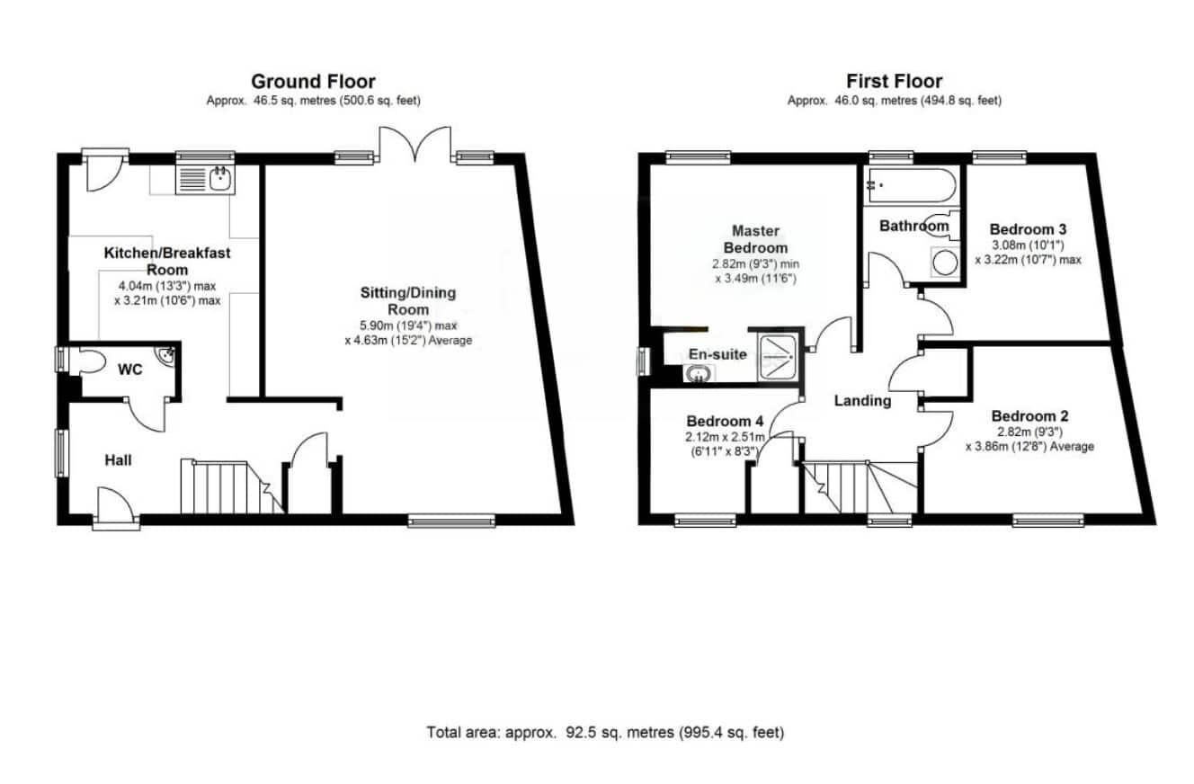
A well-presented and thoughtfully laid-out four-bedroom family home set in a small courtyard setting, offering approximately 995 sq. ft. (92.5 sq. m.) of accommodation, set within a pleasant residential location with driveway parking, a single garage, and an enclosed rear garden.

Internally, the ground floor opens into a welcoming entrance hall with a convenient cloakroom/WC. The house features a fitted kitchen/breakfast room, providing a practical and sociable space for everyday living, and a generous sitting/dining room enjoying excellent natural light and benefiting from double doors opening directly onto the southerly facing garden, creating a seamless indoor-outdoor flow ideal for entertaining.

The first floor offers four bedrooms, including a well-proportioned main bedroom with ensuite shower room. There are three further bedrooms, one of which would work equally well as a home office, nursery or dressing room, all served by a modern family bathroom.

Externally, the rear garden is mainly laid to lawn with established planting and patio areas, offering a private and attractive space for relaxation and outdoor dining. The detached garage and driveway provide ample parking and storage.

This attractive home combines practical family accommodation with a bright, neutral finish throughout, making it an ideal choice for families, professionals, or those seeking a well-balanced modern home.


Council Tax Band: D

Property Documents

epc.png

Floor Plans

Floorplan
image

Description:

Contact Information

View Listings

Enquire About This Property

This property has now sold subject to contract. To view my other listings, click here.

Mortgage Calculator

Monthly
  • Deposit
  • Loan Amount
  • Monthly Mortgage Payment
£
%
%

Similar Listings

Compare listings

Compare
Paul Lewis
  • Paul Lewis

Book a valuation with us

Please fill in the simple form and we will contact you to arrange a no-obligation valuation on your property as soon as we receive the details.

Not quite ready for a valuation? 

Thank you for signing up and referring a friend

Your details have been submitted successfully.