Sandhill, Shrivenham, Swindon, SN6

  • Offers In Excess Of £300,000
Sandhill, Shrivenham, Swindon, SN6
Sold STC Village & Country Homes Highworth and Surrounding Villages
Sandhill, Shrivenham, Swindon, SN6
Sandhill, Shrivenham, Swindon, SN6
  • Offers In Excess Of £300,000

Overview

  • House
  • Property Type
  • 3
  • Bedrooms
  • 1
  • Bathroom

what3words Logowhat3words Property Location: career.trapdoor.feelers

Description

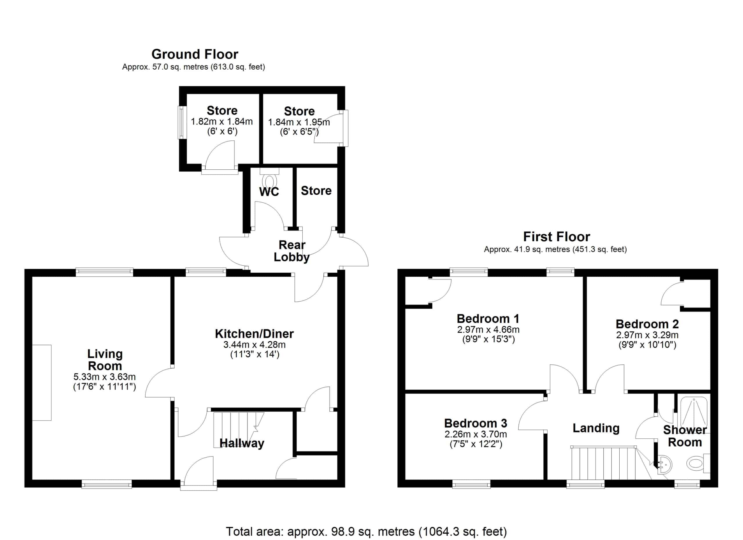
Offered with no onward chain is this three bedroom semi-detached family home, occupying a generous plot, offering ample driveway parking and being situated within walking distance to various amenities.

The internal accommodation comprises of: a spacious living room, kitchen/breakfast room, three bedrooms, an adapted shower room, WC, a rear lobby and two further stores/outbuildings to the rear which can be used as storage or are ideal for conversion to a utility. Externally, the generous rear garden boasts lawn areas, patio areas and access to the side/driveway.

Shrivenham is conveniently located just off the A420, providing easy access to both Swindon and Oxford via public transport, along with local amenities including a co-op, doctors, schools, takeaways and cafes. The bustling village really provides a sense of community, whilst also being close to larger towns and cities providing the best of both worlds.

The property is connected to mains gas, electricity and water. Please note there is a restrictive covenant for the first five years of ownership regarding extensions on the property. Please enquire to find out more.


Council Tax Band: C

Property Documents

epc.png

Floor Plans

Floorplan
image

Description:

Contact Information

View Listings
Dominic Mullen

Enquire About This Property

Mortgage Calculator

Monthly
  • Deposit
  • Loan Amount
  • Monthly Mortgage Payment
£
%
%

Compare listings

Compare
Dominic Mullen
  • Dominic Mullen

Book a valuation with us

Please fill in the simple form and we will contact you to arrange a no-obligation valuation on your property as soon as we receive the details.

Not quite ready for a valuation? 

Thank you for signing up and referring a friend

Your details have been submitted successfully.