Sevenfields, Highworth, Swindon, SN6

  • £389,950
Sevenfields, Highworth, Swindon, SN6

Overview

  • House
  • Property Type
  • 4
  • Bedrooms
  • 2
  • Bathrooms

what3words Logowhat3words Property Location: stunt.nails.weddings

Description

*OFFERS INVITED*Vendor suited*A very well presented four bedroom link-detached home situated in a quiet and sought-after cul-de-sac within Highworth. Recently updated by the current owners, this spacious property offers excellent family accommodation and a sunny southerly facing garden.

A very well presented four bedroom link-detached home situated in a quiet and sought-after cul-de-sac within Highworth. Recently updated by the current owners, this spacious property offers excellent family accommodation and a sunny southerly facing garden.

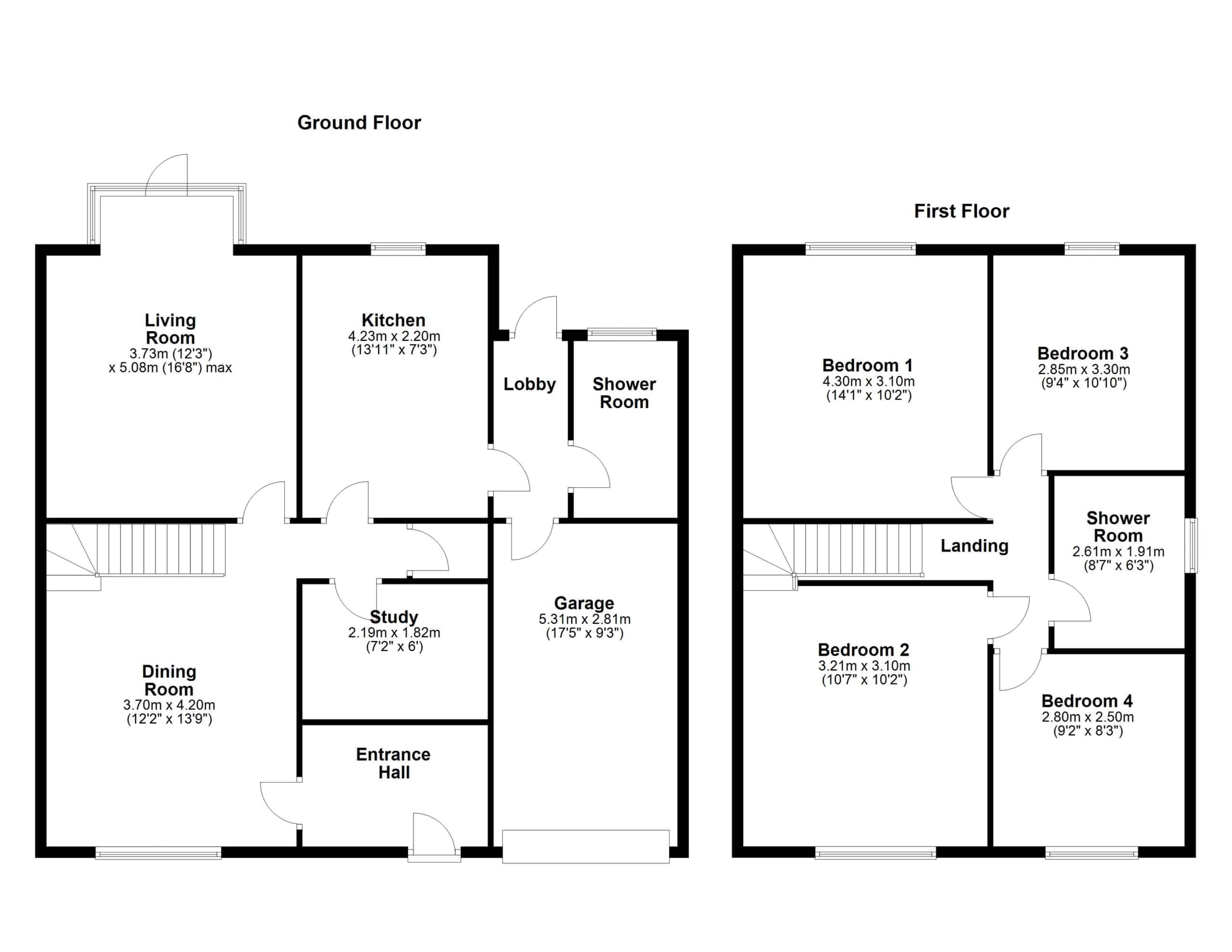
The ground floor comprises an entrance hall, dining room, generous living room with wood-burning stove and French doors to the rear garden, study, modern fitted kitchen with built-in double oven and hob, ground floor shower room, and a rear lobby providing access to the garden and garage.

Upstairs, there are four well-proportioned bedrooms two with built-in wardrobes and a luxury fully tiled shower room featuring a large walk-in shower, remote comfort WC, and vanity wash basin.

Outside, the private south-facing rear garden is mainly laid to lawn with flower and shrub borders and a patio area. To the front, a blocked pavior driveway provides parking for multiple vehicles and access to the attached garage (with power and light).

Additional features include:
Newly fitted double glazing throughout, including front and French doors, Gas radiator central heating and a newly installed combination boiler.
Freehold, Council Tax Band: E
EPC: D (59)
Early viewing is highly recommended.


Council Tax Band: TBC

Property Documents

epc.png

Floor Plans

Floorplan
image

Description:

Contact Information

View Listings

Enquire About This Property

Mortgage Calculator

Monthly
  • Deposit
  • Loan Amount
  • Monthly Mortgage Payment
£
%
%

Compare listings

Compare
Paul Lewis
  • Paul Lewis

Book a valuation with us

Please fill in the simple form and we will contact you to arrange a no-obligation valuation on your property as soon as we receive the details.

Not quite ready for a valuation? 

Thank you for signing up and referring a friend

Your details have been submitted successfully.