Spa Close, Highworth, Swindon, SN6

  • Guide Price £575,000
Spa Close, Highworth, Swindon, SN6
For Sale Village & Country Homes Highworth and Surrounding Villages
Spa Close, Highworth, Swindon, SN6
Spa Close, Highworth, Swindon, SN6
  • Guide Price £575,000

Description

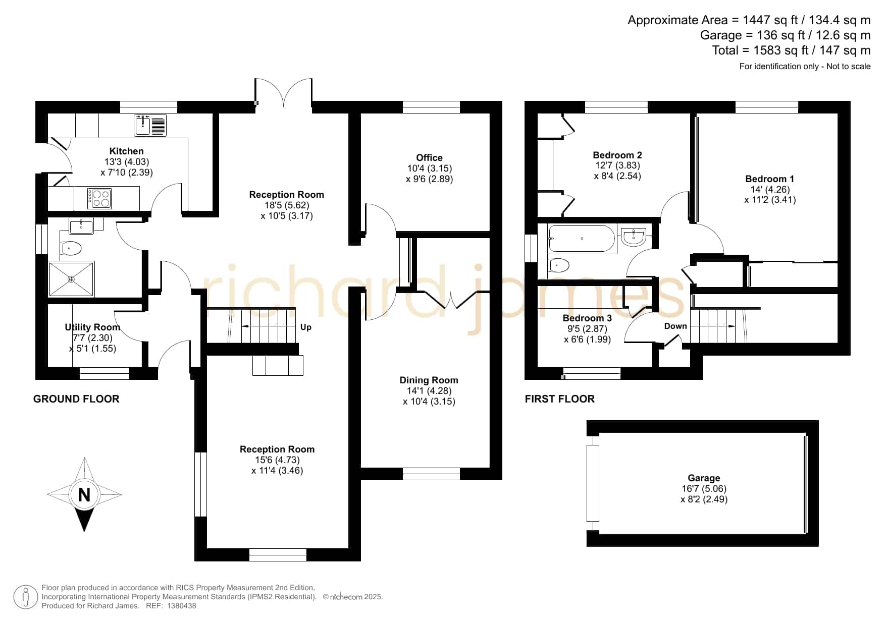
*NO ONWARD CHAIN* Beautifully extended four-bedroom detached home in one of Highworth’s most desirable cul-de-sacs, offering a unique layout, vaulted lounge, striking stone chimney breast and abundant natural light. Recently upgraded with new windows, doors and high-quality bathroom suites, it features flexible living spaces including a dining room, office, kitchen and utility. Mature south-facing wrap-around gardens provide privacy and stunning countryside views towards the White Horse, also enjoyed from rear bedrooms. With parking, a garage and easy access to Highworth’s shops, schools and Cotswold scenery, this is a rare and characterful family home.

Tucked away in an enviable elevated position within one of Highworth’s most sought-after cul-de-sacs, this beautifully extended four-bedroom, two-bathroom detached home offers a rare blend of architectural interest, modern comfort and breath-taking rural outlooks.

Cherished by the same owners since it was built over 30 years ago, the property exudes warmth, care and an unmistakable sense of home.

Behind its understated façade lies a wonderfully unique internal layout, where design and light take centre stage. The two principal reception spaces are particularly impressive: the lounge features a dramatic vaulted ceiling and a striking floor-to-ceiling stone chimney breast, while the open oak staircase rises elegantly through the heart of the home, establishing a statement of craftsmanship and style.

Large windows and recently replaced doors frame charming views of the gardens and flood the living areas with natural light.

Both bathroom suites have been newly fitted to a high standard, complementing the fresh windows and doors installed throughout. The kitchen is accompanied by a useful utility room, while the ground-floor office and generous dining room create flexible spaces for modern living, whether working from home or entertaining.

The mature wrap-around south-facing gardens are a true
highlight—private, tranquil and thoughtfully planted over the years to create colour and interest across the seasons.

From the rear, the setting opens into uninterrupted panoramas of rolling countryside, stretching all the way to the famous White Horse. These far-reaching views can also be admired from both rear bedrooms, providing a picturesque start and end to each day.

Practical benefits include private parking and a single garage, yet it’s the authenticity, warmth and lifestyle on offer here that truly set this property apart. A striking family home in a peaceful location, with countryside on the doorstep and Highworth’s vibrant market-town amenities just moments away—this is a rare opportunity to secure something special.

Highworth is a charming historic market town on the edge of the Cotswolds in Wiltshire. Set on a hilltop, it enjoys sweeping views over the surrounding countryside. The nearby countryside also provides abundant opportunities for walking, cycling, and other outdoor pursuits.

The town centre features an appealing blend of period architecture, independent shops, cafés, and useful amenities, while the weekly market in the square enhances its traditional English character. Highworth is well served by local schools, making it a popular choice for families, and it offers excellent road links to Swindon, Oxford, and the M4—ideal for commuters.

Gas Central Heating via Combi Boiler
Mains Utilities; Water, Drainage, Gas & Electricity
uPVC Double Glazing


Council Tax Band: E

Video

Contact Information

View Listings
Charlie Berry

Enquire About This Property

Mortgage Calculator

Monthly
  • Deposit
  • Loan Amount
  • Monthly Mortgage Payment
£
%
%

Compare listings

Compare
Charlie Berry
  • Charlie Berry

Book a valuation with us

Please fill in the simple form and we will contact you to arrange a no-obligation valuation on your property as soon as we receive the details.

Not quite ready for a valuation? 

Thank you for signing up and referring a friend

Your details have been submitted successfully.